
Middle Street, Thriplow, Royston
- PROPERTY TYPE
- Plot 
- SIZE
- Ask agent 
Description
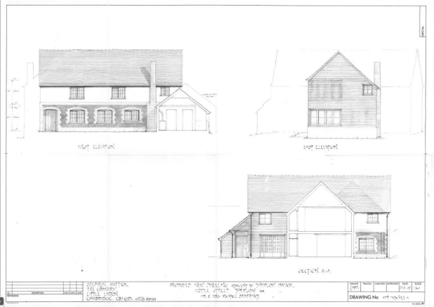
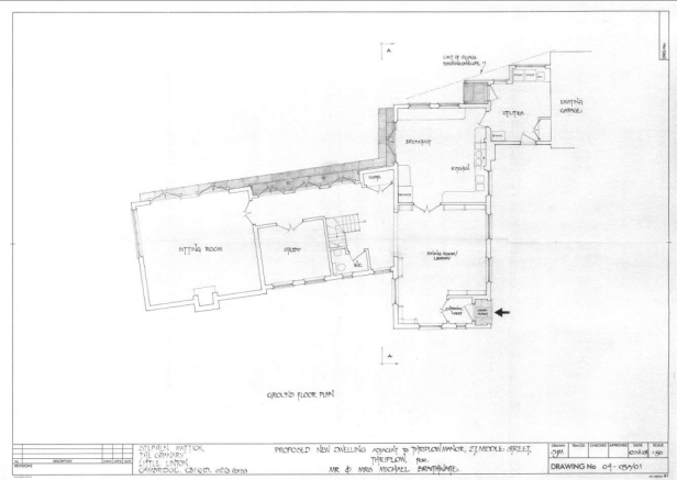
Planning Consent - Planning consent granted for a Dwelling and Garage (Ref. S/1805/04/F) that has been implemented. CLUED confirming this dated 23/05/2025 with reference 25/00871/CLUED available on the planning portal.
Brochures
Middle Street, Thriplow, RoystonMiddle Street, Thriplow, Royston
NEAREST STATIONS
Distances are straight line measurements from the centre of the postcode- Foxton Station2.3 miles
- Whittlesford Station2.9 miles
- Shepreth Station3.1 miles
Notes
Disclaimer - Property reference 34273618. The information displayed about this property comprises a property advertisement. Rightmove.co.uk makes no warranty as to the accuracy or completeness of the advertisement or any linked or associated information, and Rightmove has no control over the content. This property advertisement does not constitute property particulars. The information is provided and maintained by Cheffins Residential, Cambridge. Please contact the selling agent or developer directly to obtain any information which may be available under the terms of The Energy Performance of Buildings (Certificates and Inspections) (England and Wales) Regulations 2007 or the Home Report if in relation to a residential property in Scotland.
Map data ©OpenStreetMap contributors.








