Land for sale
Land On The West Side Of, North Walsham Road, Trunch, North Walsham, Norfolk, NR28 0PL
- SIZE AVAILABLE
1,406 sq ft
131 sq m
- SECTOR
Land for sale
Key features
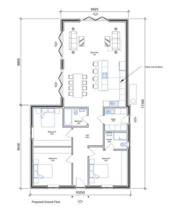
- GENEROUS BUNGALOW DEVELOPMENT PLOT WITH RESERVED MATTERS APPROVED
- IDEAL SELF-BUILD OPPORTUNITY
- 2.5 MILES FROM THE COAST
- THREE BEDROOM SCHEME OF 1,406SQFT
- LOCATED WITHIN POPULAR NORTH NORFOLK VILLAGE
Description
The approved scheme provides for a three-bedroom family home, offering open-plan living accommodation. Connections to mains services are available nearby, purchasers are advised to undertake their own due diligence and further investigations.
Brochures
Land On The West Side Of, North Walsham Road, Trunch, North Walsham, Norfolk, NR28 0PL
NEAREST STATIONS
Distances are straight line measurements from the centre of the postcode- Gunton Station2.0 miles
- North Walsham Station3.1 miles
- Roughton Road Station5.4 miles
Notes
Disclaimer - Property reference 336566FH. The information displayed about this property comprises a property advertisement. Rightmove.co.uk makes no warranty as to the accuracy or completeness of the advertisement or any linked or associated information, and Rightmove has no control over the content. This property advertisement does not constitute property particulars. The information is provided and maintained by Arnolds Keys, Norwich - Commercial. Please contact the selling agent or developer directly to obtain any information which may be available under the terms of The Energy Performance of Buildings (Certificates and Inspections) (England and Wales) Regulations 2007 or the Home Report if in relation to a residential property in Scotland.
Map data ©OpenStreetMap contributors.




