170 High Street, Ecclesfield, Sheffield, South Yorkshire, S35 9XF

- PROPERTY TYPE
Terraced
- BEDROOMS
2
- BATHROOMS
1
- SIZE
Ask agent
- TENUREDescribes how you own a property. There are different types of tenure - freehold, leasehold, and commonhold.Read more about tenure in our glossary page.
Ask agent
Key features
- TO BE SOLD BY PUBLIC ONLINE AUCTION ON 26TH NOVEMBER 2025.
- PLEASE BE AWARE THAT THESE DETAILS ARE OFTEN UPDATED AND SUBJECT TO CHANGE ANY TIME BEFORE THE AUCTION.
- YOU MUST NOT RELY ON THE INFORMATION BELOW AND SHOULD VIEW FULL PARTICULARS AND ANY ADDENDUMS ON THE AUCTIONEER'S WEBSITE.
Description
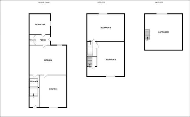
OF INTEREST TO BUILDERS AND INVESTORS - A stone built end of terrace house in the popular village of Ecclesfield which is well served by local facilities and a short drive from the M1 at junction 35. The property has a ground floor rear extension and on the whole, the accommodation is in need of refurbishment, thus offering potential to modernise for own occupation, letting or resale. There are two first floor double bedrooms in addiction to a good size attic room with a access off the front that provides additional potential as an occasional third bedroom, study or dressing room.
General
1. All the information provided on our website is for indicative purposes only and interested parties should refer to the contents of the legal pack and rely upon their own due diligence as a prudent bidder.
2. PLEASE NOTE BIDDING COMMENCES ON TUESDAY 25TH NOVEMBER AND CLOSES ON WEDNESDAY 26TH NOVEMBER.
3. The property is listed with a Council Tax assessment in Band A.
4. Energy Performance Certificate = E.
Costs
Details of the Buyer's Premium and any additional fees payable are contained within the legal documents.
Outside
Raised forecourt and rear garden area.
- COUNCIL TAXA payment made to your local authority in order to pay for local services like schools, libraries, and refuse collection. The amount you pay depends on the value of the property.Read more about council Tax in our glossary page.
- Band: A
- PARKINGDetails of how and where vehicles can be parked, and any associated costs.Read more about parking in our glossary page.
- On street
- GARDENA property has access to an outdoor space, which could be private or shared.
- Yes
- ACCESSIBILITYHow a property has been adapted to meet the needs of vulnerable or disabled individuals.Read more about accessibility in our glossary page.
- Ask agent
Energy performance certificate - ask agent
170 High Street, Ecclesfield, Sheffield, South Yorkshire, S35 9XF
Add an important place to see how long it'd take to get there from our property listings.
__mins driving to your place
Get an instant, personalised result:
- Show sellers you’re serious
- Secure viewings faster with agents
- No impact on your credit score



Your mortgage
Notes
Staying secure when looking for property
Ensure you're up to date with our latest advice on how to avoid fraud or scams when looking for property online.
Visit our security centre to find out moreDisclaimer - Property reference 120578FH. The information displayed about this property comprises a property advertisement. Rightmove.co.uk makes no warranty as to the accuracy or completeness of the advertisement or any linked or associated information, and Rightmove has no control over the content. This property advertisement does not constitute property particulars. The information is provided and maintained by Pugh and Company, Manchester. Please contact the selling agent or developer directly to obtain any information which may be available under the terms of The Energy Performance of Buildings (Certificates and Inspections) (England and Wales) Regulations 2007 or the Home Report if in relation to a residential property in Scotland.
Auction Fees: The purchase of this property may include associated fees not listed here, as it is to be sold via auction. To find out more about the fees associated with this property please call Pugh and Company, Manchester on 01942 368361.
*Guide Price: An indication of a seller's minimum expectation at auction and given as a Guide Price or a range of Guide Prices. This is not necessarily the figure a property will sell for and is subject to change prior to the auction.
Reserve Price: Each auction property will be subject to a Reserve Price below which the property cannot be sold at auction. Normally the Reserve Price will be set within the range of Guide Prices or no more than 10% above a single Guide Price.
*This is the average speed from the provider with the fastest broadband package available at this postcode. The average speed displayed is based on the download speeds of at least 50% of customers at peak time (8pm to 10pm). Fibre/cable services at the postcode are subject to availability and may differ between properties within a postcode. Speeds can be affected by a range of technical and environmental factors. The speed at the property may be lower than that listed above. You can check the estimated speed and confirm availability to a property prior to purchasing on the broadband provider's website. Providers may increase charges. The information is provided and maintained by Decision Technologies Limited. **This is indicative only and based on a 2-person household with multiple devices and simultaneous usage. Broadband performance is affected by multiple factors including number of occupants and devices, simultaneous usage, router range etc. For more information speak to your broadband provider.
Map data ©OpenStreetMap contributors.



