3 bedroom terraced house for sale
East Street, Market Harborough

- PROPERTY TYPE
Terraced
- BEDROOMS
3
- BATHROOMS
1
- SIZE
Ask agent
- TENUREDescribes how you own a property. There are different types of tenure - freehold, leasehold, and commonhold.Read more about tenure in our glossary page.
Freehold
Key features
- Three Bedroomed Victorian Mid-Terraced & No Forward Chain
- Ideal First Time Buy/Investment Property
- Walking Distance of The Town Centre & Near to Parks
- Two Reception Rooms
- Re-Fitted Kitchen & Re-Fitted Ground Floor Bathroom
- Newly Replaced boiler and Electrical Consumer Unit
- Two Double Bedrooms & Single Bedroom
- Upstairs Cloakroom/W.C
- Enclosed Private Rear Garden
- Replacement Windows & Internal Doors
Description
Property in Detail
A bay fronted mid terraced property located within walking distance of the town centre and local recreational parks.
Location
Situated on the Western perimeter of the historic market town of Market Harborough, the property is within walking distance of the town's extensive facilities.
Market Harborough has an excellent range of local shops and supermarkets, bars, restaurants, a theatre and leisure centre. The town is well catered with local schools for all ages. For the commuter, there are mainline rail services to London St Pancras in about an hour, with links to the Eurostar service, and the nearby motorways include the M1 accessible at Junction 20, with the A14 lying to the south.
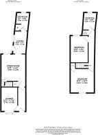
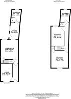
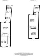
Ground Floor
The property is approached via a double glazed entrance door that leads through into a entrance hallway.
Doors provide access to a front reception room complete with a bayed window to the front elevation and beautiful stripped floorboards. The room also boasts a fireplace with wood-burning stove.
The dining room is located to the rear and has a fireplace with an electric fire, a window to the rear elevation and a door provides access to the stairs that lead up to the first floor. A large under-stairs storage cupboard is also available and a further opening leads to the kitchen.
Kitchen
The kitchen is fitted with a range of base and wall units complete with worktops anfd with appliances to include a freestanding oven complete with hob, fridge freezer and space for washing machine. There is an exterior door to the garden and a connecting door leads into the bathroom.
First Floor
To the first floor a central landing gives access to two doubles and a single bedroom which houses the newly replaced boiler (under warranty), both bedroom 1 and 2 have ornate cast iron fireplace surrounds.
There is also a useful seperate cloakroom/W.C complete with a wash hand basin.
Bathroom
The bathroom of good size and comprises of a bath with mixer taps and a seperate shower, a vanity basin within a unit and a close coupled w/c. A large storage cupboard housing the central heating boiler.There is an obscured glazed window to the rear elevation.
Outside
To the front a hand gate accesses a small courtyard garden and to the rear is a delightful rear garden that is of good size and mainly laid to astro-turf with a paved pathway and further paved seating area to the bottom of the garden. There is also a timber play shed/store.
Viewings
To be arranged via Sarah Rees- Mccallum-Marsh
Important Notice
Whilst every care has been taken in the preparation of these particulars, all parties should note:
i The description and photographs are for guidance only and are not a complete representation of the property.
ii Plans are not to scale; are for guidance only and do not form part of the contract.
iii Services and any appliances referred to have not been tested and cannot be verified as being in working order. iv No survey of any part of the property has been carried out by the Vendor or McCallum Marsh.
V. Measurements are approximate and must not be relied upon. Maximum appropriate room sizes are generally given to the nearest 0.1 metres. Outbuildings are measured externally (unless otherwise stated) to the nearest 0.5 metres; an approximate Imperial equivalent is also given.
Vi. Only those items referred to in the text of these particulars are included. vii Nothing in these particulars or any related discussions forms part of any contract unless expressly incorporated...
Fixtures & Fittings
Fixtures and fittings mentioned in these particulars are included in the sale - all other items regarded as owners fixtures and fittings may be removed.
Brochures
Full Details- COUNCIL TAXA payment made to your local authority in order to pay for local services like schools, libraries, and refuse collection. The amount you pay depends on the value of the property.Read more about council Tax in our glossary page.
- Band: A
- PARKINGDetails of how and where vehicles can be parked, and any associated costs.Read more about parking in our glossary page.
- Ask agent
- GARDENA property has access to an outdoor space, which could be private or shared.
- Yes
- ACCESSIBILITYHow a property has been adapted to meet the needs of vulnerable or disabled individuals.Read more about accessibility in our glossary page.
- Ask agent
Energy performance certificate - ask agent
East Street, Market Harborough
Add an important place to see how long it'd take to get there from our property listings.
__mins driving to your place
Get an instant, personalised result:
- Show sellers you’re serious
- Secure viewings faster with agents
- No impact on your credit score
Your mortgage
Notes
Staying secure when looking for property
Ensure you're up to date with our latest advice on how to avoid fraud or scams when looking for property online.
Visit our security centre to find out moreDisclaimer - Property reference 12781823. The information displayed about this property comprises a property advertisement. Rightmove.co.uk makes no warranty as to the accuracy or completeness of the advertisement or any linked or associated information, and Rightmove has no control over the content. This property advertisement does not constitute property particulars. The information is provided and maintained by McCallum Marsh, Tur Langton. Please contact the selling agent or developer directly to obtain any information which may be available under the terms of The Energy Performance of Buildings (Certificates and Inspections) (England and Wales) Regulations 2007 or the Home Report if in relation to a residential property in Scotland.
*This is the average speed from the provider with the fastest broadband package available at this postcode. The average speed displayed is based on the download speeds of at least 50% of customers at peak time (8pm to 10pm). Fibre/cable services at the postcode are subject to availability and may differ between properties within a postcode. Speeds can be affected by a range of technical and environmental factors. The speed at the property may be lower than that listed above. You can check the estimated speed and confirm availability to a property prior to purchasing on the broadband provider's website. Providers may increase charges. The information is provided and maintained by Decision Technologies Limited. **This is indicative only and based on a 2-person household with multiple devices and simultaneous usage. Broadband performance is affected by multiple factors including number of occupants and devices, simultaneous usage, router range etc. For more information speak to your broadband provider.
Map data ©OpenStreetMap contributors.




