
Woodacres Way, Hailsham

- PROPERTY TYPE
Detached
- BEDROOMS
3
- BATHROOMS
2
- SIZE
944 sq ft
88 sq m
- TENUREDescribes how you own a property. There are different types of tenure - freehold, leasehold, and commonhold.Read more about tenure in our glossary page.
Freehold
Key features
- Modern Development
- Lounge-Diner
- Kitchen
- Integral Appliances
- Ensuite Shower Room
- Easy To Manage Garden
- Nearby Bus Route
- Energy Efficient
- Remainder Of Warranty
Description
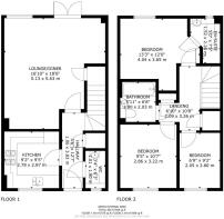
A modern three bedroom detached house tucked away in a quiet cul-de-sac on Woodacres Way, Hailsham, ideal for families or anyone seeking a low traffic, neighbourly location. Inside, the accommodation is arranged with an entrance hall leading to a light and airy lounge diner that opens onto a compact, easy to maintain garden. The kitchen comes fitted with integral appliances and there is a convenient ground floor WC and understairs cupboard that houses the tumble dryer. Stairs rise to the first floor where you’ll find two handy cupboards and three well proportioned bedrooms; the principal bedroom benefits from an ensuite shower room and there is a separate family bathroom.
The area forms part of a modern residential development close to Hailsham town centre amenities, supermarkets and leisure facilities, with regular bus services linking to Eastbourne, Lewes and Brighton, making it ideal for commuters and day trips alike. Local schools and health services are within easy reach, making this a practical and comfortable choice for everyday living.
Brochures
Woodacres Way, Hailsham- COUNCIL TAXA payment made to your local authority in order to pay for local services like schools, libraries, and refuse collection. The amount you pay depends on the value of the property.Read more about council Tax in our glossary page.
- Band: D
- PARKINGDetails of how and where vehicles can be parked, and any associated costs.Read more about parking in our glossary page.
- Driveway
- GARDENA property has access to an outdoor space, which could be private or shared.
- Yes
- ACCESSIBILITYHow a property has been adapted to meet the needs of vulnerable or disabled individuals.Read more about accessibility in our glossary page.
- Ask agent
Woodacres Way, Hailsham
Add an important place to see how long it'd take to get there from our property listings.
__mins driving to your place
Get an instant, personalised result:
- Show sellers you’re serious
- Secure viewings faster with agents
- No impact on your credit score



Your mortgage
Notes
Staying secure when looking for property
Ensure you're up to date with our latest advice on how to avoid fraud or scams when looking for property online.
Visit our security centre to find out moreDisclaimer - Property reference 34276837. The information displayed about this property comprises a property advertisement. Rightmove.co.uk makes no warranty as to the accuracy or completeness of the advertisement or any linked or associated information, and Rightmove has no control over the content. This property advertisement does not constitute property particulars. The information is provided and maintained by Stevens & Carter, Hailsham. Please contact the selling agent or developer directly to obtain any information which may be available under the terms of The Energy Performance of Buildings (Certificates and Inspections) (England and Wales) Regulations 2007 or the Home Report if in relation to a residential property in Scotland.
*This is the average speed from the provider with the fastest broadband package available at this postcode. The average speed displayed is based on the download speeds of at least 50% of customers at peak time (8pm to 10pm). Fibre/cable services at the postcode are subject to availability and may differ between properties within a postcode. Speeds can be affected by a range of technical and environmental factors. The speed at the property may be lower than that listed above. You can check the estimated speed and confirm availability to a property prior to purchasing on the broadband provider's website. Providers may increase charges. The information is provided and maintained by Decision Technologies Limited. **This is indicative only and based on a 2-person household with multiple devices and simultaneous usage. Broadband performance is affected by multiple factors including number of occupants and devices, simultaneous usage, router range etc. For more information speak to your broadband provider.
Map data ©OpenStreetMap contributors.





