
Castle Street, Ludlow, Shropshire

- PROPERTY TYPE
Apartment
- BEDROOMS
1
- BATHROOMS
1
- SIZE
Ask agent
Description
Introduction
Castle Street is located in the very heart of historic Ludlow overlooking Castle Square and with a lovely view of St Laurence's Church. CAstle Square is renowned for its open air markets selling local produce and goods. Ludlow, one of England’s most sought-after Market Towns, is famed for its range of independent shops, cafes, and variety of pubs and restaurants. The nearby Assembly Rooms is a wonderful entertainment venue with live theatre, a cinema and many events throughout the year. A Grade II Listed Building, 3 Castle Street has Apartments on the first, second and third floors. Flat D is a third floor Apartment which has been much improved by the current owners and offers tastefully presented, light and airy accommodation. The building is managed by a professional management company and the residents all own an equal share of the Freehold. A communal entrance door with intercom opens to the communal Hallway. Stairs rise to the third floor and an entrance door (truncated)
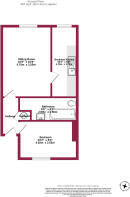
Hall
With access to roof space, airing cupboard off housing immersion heater and doors opening to
Sitting Room
4.7m x 3.2m
A light and airy room with paned window to front enjoying views over Castle Square, exposed timbers, two electric wall panel heaters and door opening to
Breakfast Kitchen
4.69m x 1.88m
The Kitchen is newly fitted with a range of contemporary units with wooden work surface. With inset one and half bowl sink unit, space for full height fridge freezer, space for cooker with fitted extractor hood over and space and plumbing for washing machine. With vinyl flooring, space for table and chairs and paned window to front enjoying lovely views. Wall mounted electric panel heater.
Bathroom
Appointed with a white suite of panelled bath with central tap, electric shower over and fitted shower screen. Wash basin with mirror light over and WC. Part tiled walls and chrome heated towel radiator.
Bedroom
4.02m x 2.55m
A lovely room with full height paned window to rear enjoying far reaching views and wall mounted electric panel heater.
Service Charge
An annual service charge is payable for the maintenance, and management on the building and communal areas, buildings insurance and fire safety. The charge for 1st January 2025 to 31st December 2025 is £1791.13. The building is managed by Colmore Gaskell managing agents for the Freeholder 3 Castle Street RTM Company Limited.
Tenure - Leasehold Share of Freehold
The property is of leasehold tenure with a 999 year lease from 1st January 1989. The owners of the apartments in the building all own an equal share of the Freehold. The Freehold is owned by 3 Castle Street RTM Company Limited. A sare of the Freehold will be transferred to the purchaser upon completion.
Restrictive Covenants
A copy of the lease is available from the selling agents. The following restrictive covenants should be noted. No trade, manufacture or business shall be carried on upon the flat. Not to use the flat or permit the same to be used for any purposes whatsoever other than as a private dwelling. No livestock other than domestic dogs, cats and caged birds or fish in aquaria shall be kept in the flat and no such livestock shall be kept for breeding or rearing purposes. No signs, hoardings or erections for advertisements shall be erected nor notices posted upon any part of the flat.
Mobile and Internet Coverage
Please refer to Ofcom by using the following link;
Anti Money Laundering Checks
Anti Money Laundering Checks - AML checks will be undertaken for successful buyers and there is a fee of £15 plus vat per person payable.
Brochures
Particulars- COUNCIL TAXA payment made to your local authority in order to pay for local services like schools, libraries, and refuse collection. The amount you pay depends on the value of the property.Read more about council Tax in our glossary page.
- Band: A
- PARKINGDetails of how and where vehicles can be parked, and any associated costs.Read more about parking in our glossary page.
- Ask agent
- GARDENA property has access to an outdoor space, which could be private or shared.
- Ask agent
- ACCESSIBILITYHow a property has been adapted to meet the needs of vulnerable or disabled individuals.Read more about accessibility in our glossary page.
- Ask agent
Castle Street, Ludlow, Shropshire
Add an important place to see how long it'd take to get there from our property listings.
__mins driving to your place
Get an instant, personalised result:
- Show sellers you’re serious
- Secure viewings faster with agents
- No impact on your credit score
Your mortgage
Notes
Staying secure when looking for property
Ensure you're up to date with our latest advice on how to avoid fraud or scams when looking for property online.
Visit our security centre to find out moreDisclaimer - Property reference LUD250340. The information displayed about this property comprises a property advertisement. Rightmove.co.uk makes no warranty as to the accuracy or completeness of the advertisement or any linked or associated information, and Rightmove has no control over the content. This property advertisement does not constitute property particulars. The information is provided and maintained by McCartneys LLP, Ludlow. Please contact the selling agent or developer directly to obtain any information which may be available under the terms of The Energy Performance of Buildings (Certificates and Inspections) (England and Wales) Regulations 2007 or the Home Report if in relation to a residential property in Scotland.
*This is the average speed from the provider with the fastest broadband package available at this postcode. The average speed displayed is based on the download speeds of at least 50% of customers at peak time (8pm to 10pm). Fibre/cable services at the postcode are subject to availability and may differ between properties within a postcode. Speeds can be affected by a range of technical and environmental factors. The speed at the property may be lower than that listed above. You can check the estimated speed and confirm availability to a property prior to purchasing on the broadband provider's website. Providers may increase charges. The information is provided and maintained by Decision Technologies Limited. **This is indicative only and based on a 2-person household with multiple devices and simultaneous usage. Broadband performance is affected by multiple factors including number of occupants and devices, simultaneous usage, router range etc. For more information speak to your broadband provider.
Map data ©OpenStreetMap contributors.






