
Kings Road, Old Trafford, M16 0FH

- PROPERTY TYPE
Semi-Detached
- BEDROOMS
3
- BATHROOMS
1
- SIZE
Ask agent
- TENUREDescribes how you own a property. There are different types of tenure - freehold, leasehold, and commonhold.Read more about tenure in our glossary page.
Freehold
Key features
- Loft conversion
- Close to Metrolink
Description
Three Bedroom Extended Semi-Detached Home.
Key Features:
- Extended three-bedroom semi-detached property
- Bay-fronted sitting room & additional lounge
- Spacious extended breakfast kitchen
- Converted loft space with natural light.
- Converted garage with utility/storage options.
- Driveway with wrought iron gates
- Low-maintenance, sunny rear garden
- Popular residential location
- Freehold – Council Tax Band C
Full Description:
Welcome to this much-loved and well-presented extended three-bedroom semi-detached family home located on the ever-popular Kings Road. Ideal for growing families or those seeking additional living space, the property offers a blend of traditional charm and modern convenience.
The accommodation comprises:
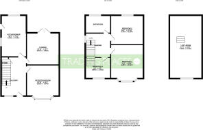
Ground Floor:
- Entrance Porch: uPVC double glazed on three sides with entrance to hallway.
- Hallway: Welcoming space with glazed front door, picture rail, wood-effect flooring, radiator, and stairs to the first floor.
- Sitting Room (3.90m x 3.50m): Bay-fronted with uPVC windows, wood-effect flooring, radiator, and feature fireplace with living flame gas fire.
- Lounge (3.50m x 3.94m): Overlooks the rear garden through patio doors, complete with coved ceiling, radiator dado rail, feature fireplace, and gas fire.
- Extended Breakfast Kitchen (5.05m x 2.42m): Fitted with a range of wall/base units and breakfast bar. Includes a one-and-a-half sink, space for appliances, splash tiling, radiator, and gas boiler. Dual aspect with uPVC windows and side door access.
First Floor:
- Shaped Landing: Features open balustrade, side window, and loft access via pull-down ladder.
- Bedroom One (4.55m x 3.37m): Bay window to front, wood-effect flooring, radiator, and full-width built-in wardrobes.
- Bedroom Two (3.30m x 3.70m): Rear aspect, matching built-in wardrobes, wood-effect flooring, and radiator.
- Bedroom Three (2.95m x 2.02m): Front facing with fitted wardrobes and radiator.
- Bathroom: Modern three-piece suite with bath & shower over, low-level WC, basin, full tiling, ladder radiator, and side window.
Loft Conversion:
A versatile space with eaves storage, uPVC window to rear, and radiator – perfect for a home office, hobby room, or occasional guest area.
Garage:
Detached and fully plastered with lighting and power. Currently used for storage and utility purposes, but with excellent potential for conversion into a home office, gym, or garden room. Includes fitted base units with sink.
Outside:
Gated, paved driveway offering parking for multiple vehicles, continuing along the side to the detached garage. The rear garden enjoys a sunny aspect and features ornate paving, privacy fencing, and low-maintenance landscaping.
Tenure: Freehold
Council Tax Band: C
Disclaimer * (While every effort has been made to ensure the accuracy and completeness of the information, Trading Places and the seller makes no representations or warranties of any kind, express or implied, about the completeness, accuracy, reliability, or suitability of the information contained in this advertisement for any purpose and any reliance you place on such information is strictly at your own risk. All information should be confirmed by your Legal representative) *
Roof type: Slate tiles.
Flooded in the last 5 years: No.
Construction materials used: Brick and block.
Water source: Direct mains water.
Electricity source: National Grid.
Sewerage arrangements: Standard UK domestic.
Heating Supply: Central heating (gas).
Does the property have required access (easements, servitudes, or wayleaves)?
No.
Do any public rights of way affect your your property or its grounds?
No.
Parking Availability: Yes.
Brochures
Brochure 1- COUNCIL TAXA payment made to your local authority in order to pay for local services like schools, libraries, and refuse collection. The amount you pay depends on the value of the property.Read more about council Tax in our glossary page.
- Ask agent
- PARKINGDetails of how and where vehicles can be parked, and any associated costs.Read more about parking in our glossary page.
- Driveway
- GARDENA property has access to an outdoor space, which could be private or shared.
- Yes
- ACCESSIBILITYHow a property has been adapted to meet the needs of vulnerable or disabled individuals.Read more about accessibility in our glossary page.
- Ask agent
Kings Road, Old Trafford, M16 0FH
Add an important place to see how long it'd take to get there from our property listings.
__mins driving to your place
Get an instant, personalised result:
- Show sellers you’re serious
- Secure viewings faster with agents
- No impact on your credit score

Your mortgage
Notes
Staying secure when looking for property
Ensure you're up to date with our latest advice on how to avoid fraud or scams when looking for property online.
Visit our security centre to find out moreDisclaimer - Property reference trading_1405256931. The information displayed about this property comprises a property advertisement. Rightmove.co.uk makes no warranty as to the accuracy or completeness of the advertisement or any linked or associated information, and Rightmove has no control over the content. This property advertisement does not constitute property particulars. The information is provided and maintained by Trading Places, Stretford. Please contact the selling agent or developer directly to obtain any information which may be available under the terms of The Energy Performance of Buildings (Certificates and Inspections) (England and Wales) Regulations 2007 or the Home Report if in relation to a residential property in Scotland.
*This is the average speed from the provider with the fastest broadband package available at this postcode. The average speed displayed is based on the download speeds of at least 50% of customers at peak time (8pm to 10pm). Fibre/cable services at the postcode are subject to availability and may differ between properties within a postcode. Speeds can be affected by a range of technical and environmental factors. The speed at the property may be lower than that listed above. You can check the estimated speed and confirm availability to a property prior to purchasing on the broadband provider's website. Providers may increase charges. The information is provided and maintained by Decision Technologies Limited. **This is indicative only and based on a 2-person household with multiple devices and simultaneous usage. Broadband performance is affected by multiple factors including number of occupants and devices, simultaneous usage, router range etc. For more information speak to your broadband provider.
Map data ©OpenStreetMap contributors.





