
4 bedroom house for sale
6 Bridge Street, Musselburgh, EH21 6AG

- PROPERTY TYPE
House
- BEDROOMS
4
- BATHROOMS
2
- SIZE
Ask agent
- TENUREDescribes how you own a property. There are different types of tenure - freehold, leasehold, and commonhold.Read more about tenure in our glossary page.
Freehold
Description
Generous, versatile two storey property offering great potential.
Requiring modernisation, this well-proportioned property offers the opportunity to create a bespoke home arranged over two levels. The property is B listed and in a conservation area. Particular features are the private walled entrance with its gated carport and the lovely enclosed, well stocked wall garden and patio. The versatile accommodation comprises; an entrance vestibule, a spacious and welcoming reception hall, rear facing sitting room with almost wall to wall double glazed sliding doors leading to the garden, family room, large dining kitchen with a staircase leading to two good sized cellar rooms, two ground floor bedrooms with built-in furniture – one with a sliding door to the rear garden, bathroom with shower over bath plus a separate shower room. Upstairs has two further bedrooms. The property has gas central heating and partial double glazing.
The property is centrally located within the popular coastal town of Musselburgh with delightful walks along the river, promenade and links. Leisure facilities are varied including the famous Musselburgh Racecourse, choice of golf courses, theatre, harbour, sailing, cycling, swimming pool/sports centre and modern private gymnasium. The town retains its original market town shape, which is now lined with numerous shops. There is a choice of supermarkets including Tesco and Lidl. Fort Kinnaird Retail Park is just a short drive away. There are excellent educational facilities within the town including the Queen Margaret University. Transport links to Edinburgh include a choice of railway stations (Musselburgh & Newcraighall) and regular bus services. Fast main roads link easily with the A1, which in turn provides access to the City Bypass, major motorway connections and Edinburgh International Airport.
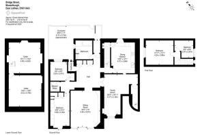
Reception Hall
Sitting room
4.57m x 5.56m
Family room
5.16m x 6.17m
Dining kitchen
3.68m x 4.7m
Bathroom
Shower room
Bedroom 1
3m x 5.08m
Bedroom 2
2.57m x 2.9m
Bedroom 3
2.68m x 4.24m
Bedroom 4
2.67m x 2.87m
Cellar 1
4.62m x 4.55m
Cellar 2
4.78m x 5.03m
Brochures
Brochure- COUNCIL TAXA payment made to your local authority in order to pay for local services like schools, libraries, and refuse collection. The amount you pay depends on the value of the property.Read more about council Tax in our glossary page.
- Band: E
- PARKINGDetails of how and where vehicles can be parked, and any associated costs.Read more about parking in our glossary page.
- Yes
- GARDENA property has access to an outdoor space, which could be private or shared.
- Rear garden
- ACCESSIBILITYHow a property has been adapted to meet the needs of vulnerable or disabled individuals.Read more about accessibility in our glossary page.
- Ask agent
Energy performance certificate - ask agent
6 Bridge Street, Musselburgh, EH21 6AG
Add an important place to see how long it'd take to get there from our property listings.
__mins driving to your place
Get an instant, personalised result:
- Show sellers you’re serious
- Secure viewings faster with agents
- No impact on your credit score
Your mortgage
Notes
Staying secure when looking for property
Ensure you're up to date with our latest advice on how to avoid fraud or scams when looking for property online.
Visit our security centre to find out moreDisclaimer - Property reference 266472. The information displayed about this property comprises a property advertisement. Rightmove.co.uk makes no warranty as to the accuracy or completeness of the advertisement or any linked or associated information, and Rightmove has no control over the content. This property advertisement does not constitute property particulars. The information is provided and maintained by Campbell Smith LLP, Edinburgh. Please contact the selling agent or developer directly to obtain any information which may be available under the terms of The Energy Performance of Buildings (Certificates and Inspections) (England and Wales) Regulations 2007 or the Home Report if in relation to a residential property in Scotland.
*This is the average speed from the provider with the fastest broadband package available at this postcode. The average speed displayed is based on the download speeds of at least 50% of customers at peak time (8pm to 10pm). Fibre/cable services at the postcode are subject to availability and may differ between properties within a postcode. Speeds can be affected by a range of technical and environmental factors. The speed at the property may be lower than that listed above. You can check the estimated speed and confirm availability to a property prior to purchasing on the broadband provider's website. Providers may increase charges. The information is provided and maintained by Decision Technologies Limited. **This is indicative only and based on a 2-person household with multiple devices and simultaneous usage. Broadband performance is affected by multiple factors including number of occupants and devices, simultaneous usage, router range etc. For more information speak to your broadband provider.
Map data ©OpenStreetMap contributors.





