
Summerlands, Kellythorpe, YO25

- PROPERTY TYPE
- Detached 
- BEDROOMS
- 5 
- BATHROOMS
- 2 
- SIZE
- Ask agent 
- TENUREDescribes how you own a property. There are different types of tenure - freehold, leasehold, and commonhold.Read more about tenure in our glossary page.
- Freehold 
Key features
- JUST OVER 1.4 ACRES
- BENEFIT FROM SOME UPDATING
- UNIQUE PROPERTY
- ON THE OUTSKIRTS OF TOWN
- Garden
- En-suite
- Full Double Glazing
- Oven/Hob
- Gas Central Heating
Description
Location
Summerlands is located on the southern side of Driffield and is accessed of the A164. The private access drive is opposite the Driffield Showground. Driffield offers an outstanding array of amenities, including shops, restaurants, public houses, quality sports facilities dedicated to Rugby, Golf, Football, Bowls, Cricket and many others, as well as a very highly regarded Secondary School. It also provides excellent road and public transport connections to Hull, Beverley, Bridlington and Scarborough.
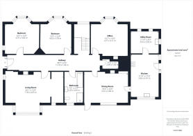
Accommodation
Ground Floor
Entrance Hall
With two radiators, picture rail, staircase leading off and an understairs cupboard.
Living Room
This nicely proportioned room features a living flame gas fire set in an Adam Style fireplace, dado and picture rail, TV aerial point, deep bay window, three radiators and a large alcove that serves as a library and music room.
Dining Room
Another nicely proportioned reception room that features a log burner, dado and picture rail, TV aerial point and coving to the ceiling.
Kitchen
Fitted with a range of high gloss modern kitchen units including base, wall and glazed display units, two over oil-fired Aga, plumbing for an automatic dishwasher, radiator, integrated fridge, tiled floor and a telephone point.
Utility Room
With pine base and wall units, plumbing for an automatic washing machine, sink unit, wall-mounted LPG central heating boiler, tiled flooring and a radiator.
Office/Snug
Featuring a living flame gas fire, part panelled walls, bay window, radiator and a picture rail.
Bedroom Four
With a bay window, fitted wardrobes, radiator and picture rail. Sealed corner fireplace.
Bedroom Five
With a bay window, radiator and picture rail. Sealed corner fireplace.
Bathroom
With a four-piece suite including a roll-top bath, shower cubicle, vanity, wash-hand basin, low-level WC, radiator, and a chrome heated towel rail.
On the First Floor
Landing
With access to the roof space.
Master Bedroom
With a south-facing dormer window overlooking the garden, radiator and doors off to:
Dressing Room/Nursery
Currently used as a bedroom, but there is ample room for use as a walk-in dressing room. Radiator and Velux window.
En-Suite Bathroom
With an enclosed bath, a low-level WC and a vanity wash hand basin. Radiator.
Bedroom Two
With a dormer window and a radiator.
Bedroom Three
A small single bedroom with a radiator and a Velux window.
Outside
Garage
The property benefits from a detached outbuilding that provides a double and a single garage, along with a garden store and a fuel store.
Gardens
The gardens cover approximately 1.4 acres, and mature trees create a very private setting. There is a large parking and turning area to the front, and a large lawn to the south of the house. There is also a large greenhouse, a patio, and a further garden shed..
Services
Water is from a borehole; LPG for the central heating, with oil for the AGA; drainage to a septic tank; and mains electricity is connected.
Tenure
The property is Freehold and is offered with vacant possession upon completion.
Council Tax
Council Tax is payable to the East Riding of Yorkshire Council. The property is shown on the Council Tax Property Bandings List in Valuation Band 'F'.
EPC
This property's energy rating is F(25).
VIEWING
Strictly by appointment with the sole agents.
FREE VALUATION
If you are looking to sell your own property, we will be very happy to provide you with a free, no obligation market appraisal and valuation. We offer very competitive fees and an outstanding personal service that is rated 5 star by our fully verified clients.
Flooded in the last 5 years: No.
Construction materials used: Brick and block.
Water source: Direct mains water.
Electricity source: National Grid.
Sewerage arrangements: Septic Tank.
Heating Supply: LPG central heating.
Does the property have required access (easements, servitudes, or wayleaves)?
No.
Do any public rights of way affect your your property or its grounds?
No.
Brochures
Brochure 1- COUNCIL TAXA payment made to your local authority in order to pay for local services like schools, libraries, and refuse collection. The amount you pay depends on the value of the property.Read more about council Tax in our glossary page.
- Band: F
- PARKINGDetails of how and where vehicles can be parked, and any associated costs.Read more about parking in our glossary page.
- Off street
- GARDENA property has access to an outdoor space, which could be private or shared.
- Yes
- ACCESSIBILITYHow a property has been adapted to meet the needs of vulnerable or disabled individuals.Read more about accessibility in our glossary page.
- Ask agent
Summerlands, Kellythorpe, YO25
Add an important place to see how long it'd take to get there from our property listings.
__mins driving to your place
Get an instant, personalised result:
- Show sellers you’re serious
- Secure viewings faster with agents
- No impact on your credit score
Your mortgage
Notes
Staying secure when looking for property
Ensure you're up to date with our latest advice on how to avoid fraud or scams when looking for property online.
Visit our security centre to find out moreDisclaimer - Property reference dah_1762907814. The information displayed about this property comprises a property advertisement. Rightmove.co.uk makes no warranty as to the accuracy or completeness of the advertisement or any linked or associated information, and Rightmove has no control over the content. This property advertisement does not constitute property particulars. The information is provided and maintained by Dee Atkinson & Harrison, Driffield. Please contact the selling agent or developer directly to obtain any information which may be available under the terms of The Energy Performance of Buildings (Certificates and Inspections) (England and Wales) Regulations 2007 or the Home Report if in relation to a residential property in Scotland.
*This is the average speed from the provider with the fastest broadband package available at this postcode. The average speed displayed is based on the download speeds of at least 50% of customers at peak time (8pm to 10pm). Fibre/cable services at the postcode are subject to availability and may differ between properties within a postcode. Speeds can be affected by a range of technical and environmental factors. The speed at the property may be lower than that listed above. You can check the estimated speed and confirm availability to a property prior to purchasing on the broadband provider's website. Providers may increase charges. The information is provided and maintained by Decision Technologies Limited. **This is indicative only and based on a 2-person household with multiple devices and simultaneous usage. Broadband performance is affected by multiple factors including number of occupants and devices, simultaneous usage, router range etc. For more information speak to your broadband provider.
Map data ©OpenStreetMap contributors.









