
27-29 Whitehorse Street, Baldock, Hertfordshire SG7 6QF
- PROPERTY TYPE
Commercial Property
- SIZE
Ask agent
Key features
- Town Centre Location
- Freehold
- EPC Rating – D
- Ground Floor Retail Space
- 1 Parking Space & Rear Outdoor Area
- Planning Permission for First Floor Flat
- Guide Price: £250,000 - £300,000
- For sale by online auction
- Unless previously sold or withdrawn prior
- Tuesday 11th November 2025
Description
FOR SALE BY ONLINE AUCTION TUESDAY 11TH NOVEMBER 2025
TO REGISTER FOR LEGAL PACKS AND BIDDING INSTRUCTIONS PLEASE VISIT OUR WEBSITE
Prime Town Centre Retail Opportunity with Planning Permission for two bedroom apartment
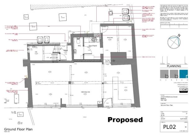
A rare opportunity to acquire a freehold property in a central town centre location with associated parking. Currently arranged as a lock-up shop at ground floor with a stair up to associated storage and kitchen / toilet facilities over part of the first floor. There is a separate and generous stair accessed from the rear of the property leading to the other part of the first floor which has independent offices, with further kitchen and toilet facilities.
There is planning permission dated July 2025 to convert the whole of the first floor into generously proportioned residential accommodation whilst retaining reconfigured retail accommodation at ground floor. Under the granted Planning consent, the first floor would be transformed into a spacious apartment with open plan kitchen / dining / living space together with two generous bedrooms and a large family bathroom. The apartment and commercial spaces are fully separated but together, could offer and excellent life / work arrangement.
Additional benefits include one parking space and some outdoor space to the rear, making this an ideal investment or owner-occupier property in a prime town centre location.
Ground Floor Lock-up retail shop (currently formed from two original dwellings), kitchen and toilet facilities, first-floor storage area, independent access to the first-floor offices
First Floor Two separate sections currently:
Side A: Open-plan layout with stairs from rear, kitchen, and toilet off the landing
Side B: Two rooms and a toilet, separated by a solid wall
Outside One allocated parking space, some outdoor space to the rear.
Planning Change of use of former first floor office into residential, including internal alterations to form first floor residential unit and to facilitate relocation of retail ancillary space to ground floor has been approved by North Herts Council under reference 25/01333/FP.
VAT Please note that VAT is applicable to this lot.
Tenure: Freehold
EPC Rating: D
Administration Fee: £1200 inc VAT payable on exchange of contracts.
Buyer's Premium Fee: 1.25% inc VAT of the purchase price, payable on exchange of contracts.
Disbursements: Please see the legal pack for any disbursements listed that may become payable by the purchaser on completion.
27-29 Whitehorse Street, Baldock, Hertfordshire SG7 6QF
NEAREST STATIONS
Distances are straight line measurements from the centre of the postcode- Baldock Station0.2 miles
- Letchworth Station1.9 miles
- Arlesey Station4.1 miles


Notes
Disclaimer - Property reference 202510101452sq_9jtu_copy_2025-10-31_154915. The information displayed about this property comprises a property advertisement. Rightmove.co.uk makes no warranty as to the accuracy or completeness of the advertisement or any linked or associated information, and Rightmove has no control over the content. This property advertisement does not constitute property particulars. The information is provided and maintained by Auction House, East Anglia. Please contact the selling agent or developer directly to obtain any information which may be available under the terms of The Energy Performance of Buildings (Certificates and Inspections) (England and Wales) Regulations 2007 or the Home Report if in relation to a residential property in Scotland.
Auction Fees: The purchase of this property may include associated fees not listed here, as it is to be sold via auction. To find out more about the fees associated with this property please call Auction House, East Anglia on 01603 361653.
*Guide Price: An indication of a seller's minimum expectation at auction and given as a Guide Price or a range of Guide Prices. This is not necessarily the figure a property will sell for and is subject to change prior to the auction.
Reserve Price: Each auction property will be subject to a Reserve Price below which the property cannot be sold at auction. Normally the Reserve Price will be set within the range of Guide Prices or no more than 10% above a single Guide Price.
Map data ©OpenStreetMap contributors.






