
Market Street, Chorley
- PROPERTY TYPE
Commercial Property
- BEDROOMS
2
- BATHROOMS
1
- SIZE
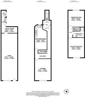
1,690 sq ft
157 sq m
Key features
- Investment Opportunity
- Dual Income
- Commercial Unit
- 2 Bedroom Apartment
- Town Centre
- Must Be Viewed
- EPC Rating C
- Approx 1690 SQ.FT
Description
Ben Rose Estate Agents are pleased to present to the market this exceptional dual income investment opportunity - a fully tenanted, mixed-use property comprising a ground floor commercial unit and a two-bedroom self-contained flat above. Ideally positioned on a popular main street in Chorley Town Centre, the property offers strong, immediate rental returns with secure long-term tenants already in place, making it an attractive and low-maintenance addition to any investment portfolio.
The ground floor newsagents currently generates £950 per calendar month and comprises a spacious retail area with a separate store room. To the rear, there is a practical utility room with sink and a separate WC, offering convenience for day-to-day operation.
The self-contained two-bedroom apartment is accessed via an external staircase at the rear, leading to a private entrance on the first floor. The flat offers well-proportioned accommodation throughout, including a generously sized lounge, a modern kitchen/diner, two double bedrooms, and a contemporary three-piece shower room. The apartment currently generates £760 per calendar month.
Early viewing is highly recommended to avoid missing out on this attractive property offering excellent potential and future versatility.
Brochures
Market Street, ChorleyBrochureEnergy Performance Certificates
EE RatingMarket Street, Chorley
NEAREST STATIONS
Distances are straight line measurements from the centre of the postcode- Chorley Station0.2 miles
- Buckshaw Parkway1.9 miles
- Euxton Balshaw Lane Station2.2 miles
Notes
Disclaimer - Property reference 34278395. The information displayed about this property comprises a property advertisement. Rightmove.co.uk makes no warranty as to the accuracy or completeness of the advertisement or any linked or associated information, and Rightmove has no control over the content. This property advertisement does not constitute property particulars. The information is provided and maintained by Ben Rose, Chorley. Please contact the selling agent or developer directly to obtain any information which may be available under the terms of The Energy Performance of Buildings (Certificates and Inspections) (England and Wales) Regulations 2007 or the Home Report if in relation to a residential property in Scotland.
Map data ©OpenStreetMap contributors.






