
Exeter Road, Birmingham, B29

- PROPERTY TYPE
Terraced
- BEDROOMS
4
- BATHROOMS
3
- SIZE
Ask agent
- TENUREDescribes how you own a property. There are different types of tenure - freehold, leasehold, and commonhold.Read more about tenure in our glossary page.
Freehold
Key features
- FOUR DOUBLE BEDROOMS
- THREE BATHROOMS INCLUDING EN-SUITE
- LARGE OPEN PLAN KITCHEN DINER
- EXTENDED AND WELL PRESENTED THROUGHOUT
- PRIME STUDENT LOCATION IN SELLY OAK
- WALKING DISTANCE TO UNIVERSITY OF BIRMINGHAM
- CLOSE TO TRAIN STATION AND LOCAL AMENITIES
- EXCELLENT INVESTMENT OPPORTUNITY WITH STRONG RENTAL POTENTIAL
Description
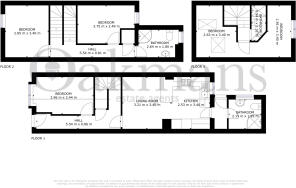
This well-presented property offers generous accommodation across three floors. On the ground floor, there is a double bedroom to the front, a modern open-plan kitchen diner to the rear-perfect for socialising and entertaining-and a contemporary bathroom. The first floor comprises two further double bedrooms and a second bathroom, while the property has been thoughtfully extended into the loft, providing an additional double bedroom with en-suite bathroom.
The property also benefits from a low-maintenance rear garden, ideal for tenants, and is located within walking distance to the University of Birmingham, Selly Oak Train Station, and a range of local amenities, bars, restaurants, and supermarkets along Bristol Road.
This fantastic property makes an ideal investment opportunity, offering strong rental potential in one of Birmingham’s most popular student locations.
Call Oakmans Estate Agents today to arrange your viewing!
- COUNCIL TAXA payment made to your local authority in order to pay for local services like schools, libraries, and refuse collection. The amount you pay depends on the value of the property.Read more about council Tax in our glossary page.
- Band: B
- PARKINGDetails of how and where vehicles can be parked, and any associated costs.Read more about parking in our glossary page.
- Ask agent
- GARDENA property has access to an outdoor space, which could be private or shared.
- Yes
- ACCESSIBILITYHow a property has been adapted to meet the needs of vulnerable or disabled individuals.Read more about accessibility in our glossary page.
- Ask agent
Exeter Road, Birmingham, B29
Add an important place to see how long it'd take to get there from our property listings.
__mins driving to your place
Get an instant, personalised result:
- Show sellers you’re serious
- Secure viewings faster with agents
- No impact on your credit score


Your mortgage
Notes
Staying secure when looking for property
Ensure you're up to date with our latest advice on how to avoid fraud or scams when looking for property online.
Visit our security centre to find out moreDisclaimer - Property reference SOK240969. The information displayed about this property comprises a property advertisement. Rightmove.co.uk makes no warranty as to the accuracy or completeness of the advertisement or any linked or associated information, and Rightmove has no control over the content. This property advertisement does not constitute property particulars. The information is provided and maintained by Oakmans Estate Agents, Birmingham. Please contact the selling agent or developer directly to obtain any information which may be available under the terms of The Energy Performance of Buildings (Certificates and Inspections) (England and Wales) Regulations 2007 or the Home Report if in relation to a residential property in Scotland.
*This is the average speed from the provider with the fastest broadband package available at this postcode. The average speed displayed is based on the download speeds of at least 50% of customers at peak time (8pm to 10pm). Fibre/cable services at the postcode are subject to availability and may differ between properties within a postcode. Speeds can be affected by a range of technical and environmental factors. The speed at the property may be lower than that listed above. You can check the estimated speed and confirm availability to a property prior to purchasing on the broadband provider's website. Providers may increase charges. The information is provided and maintained by Decision Technologies Limited. **This is indicative only and based on a 2-person household with multiple devices and simultaneous usage. Broadband performance is affected by multiple factors including number of occupants and devices, simultaneous usage, router range etc. For more information speak to your broadband provider.
Map data ©OpenStreetMap contributors.





