
Tyne Road East, Stanley, County Durham, DH9 6PZ

- PROPERTY TYPE
Semi-Detached
- BEDROOMS
3
- SIZE
Ask developer
- TENUREDescribes how you own a property. There are different types of tenure - freehold, leasehold, and commonhold.Read more about tenure in our glossary page.
Freehold
Key features
- WAS £189,995 | NOW £179,995
- Ask us about our exclusive plot-specific offers, tailored just for you.
- Block-paved driveway, turf to the front and rear gardens, full fencing and gate, outside tap, vehicle charging point
- Semi-detached
- Driveway
- Front and rear gardens
- South facing garden
- High-quality specifications included as standard from well-known brands
- Personalise your home with our optional extras (subject to build stage)
- 10-Year Warranty (first 2 years with Gleeson and a further 8 years with NHBC)
Description
WAS £189,995 | NOW £179,995
Upgraded specification, including a block-paved driveway, turf to the front and rear gardens, full fencing and gate, outside tap and a vehicle charging point.
The Glin is a three bedroom semi-detached home with a spacious kitchen-diner and separate living room. The open-plan kitchen-diner is the ideal space for a family and perfect for entertaining, while the French doors from the living room into the garden offer a seamless outdoor-indoor living experience. The space continues upstairs where you will find three bedrooms and a family bathroom finished with Porcelanosa tiling as standard.
All images, videos, virtual tours, photographs, dimensions, and layouts are for illustrative purposes only and are indicative of the house type. For further information, please refer to the image disclaimer within the footer of the Gleeson Homes website or consult with the development’s Sales Executive.
Council Tax Band: TBC
Tenure: Freehold
EPC Potential Energy Efficiency: TBC
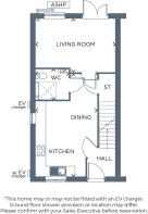
Room Dimensions
- Kitchen / Dining - 19'5" x 11'8" (5.93m x 3.56m)
- Living Room - 15'1" x 10'4" (4.59m x 3.11m)
- WC - 6'3" x 5'10" (1.91m x 1.77m)
- Bedroom 1 - 15'1" x 9'0" (4.59m x 2.75m)
- Bedroom 2 - 13'11" x 7'0" (4.24m x 2.14m)
- Bedroom 3 - 10'5" x 7'8" (3.18m x 2.35m)
- Bathroom - 8'1" x 6'3" (2.48m x 1.90m)
- COUNCIL TAXA payment made to your local authority in order to pay for local services like schools, libraries, and refuse collection. The amount you pay depends on the value of the property.Read more about council Tax in our glossary page.
- Band: TBC
- PARKINGDetails of how and where vehicles can be parked, and any associated costs.Read more about parking in our glossary page.
- Yes
- GARDENA property has access to an outdoor space, which could be private or shared.
- Yes
- ACCESSIBILITYHow a property has been adapted to meet the needs of vulnerable or disabled individuals.Read more about accessibility in our glossary page.
- Ask developer
Energy performance certificate - ask developer
Tyne Road East, Stanley, County Durham, DH9 6PZ
Add an important place to see how long it'd take to get there from our property listings.
__mins driving to your place
Get an instant, personalised result:
- Show sellers you’re serious
- Secure viewings faster with agents
- No impact on your credit score
About Gleeson Homes (Tyne and Wear)
Our stunning new show home is now open!
Visit us to explore this beautiful home in person.
Ask us about our exclusive plot-specific offers, tailored just for you.
A new development of 2, 3 and 4 bedroom homes and 2 bedroom bungalows. Nestled in the heart of Stanley, Rivers Walk combines modern living with the charm of a vibrant community. This development is perfect for families and professionals alike, offering easy access to local amenities, top-rated schools, and excellent transport links. Embrace the warmth of a close-knit community while enjoying the scenic beauty of the surrounding countryside.
Upgraded specification as standard, block-paved driveway, turf to front and rear gardens, full fencing and gate, outside tap and vehicle charging point.
Your mortgage
Notes
Staying secure when looking for property
Ensure you're up to date with our latest advice on how to avoid fraud or scams when looking for property online.
Visit our security centre to find out moreDisclaimer - Property reference 3_051. The information displayed about this property comprises a property advertisement. Rightmove.co.uk makes no warranty as to the accuracy or completeness of the advertisement or any linked or associated information, and Rightmove has no control over the content. This property advertisement does not constitute property particulars. The information is provided and maintained by Gleeson Homes (Tyne and Wear). Please contact the selling agent or developer directly to obtain any information which may be available under the terms of The Energy Performance of Buildings (Certificates and Inspections) (England and Wales) Regulations 2007 or the Home Report if in relation to a residential property in Scotland.
*This is the average speed from the provider with the fastest broadband package available at this postcode. The average speed displayed is based on the download speeds of at least 50% of customers at peak time (8pm to 10pm). Fibre/cable services at the postcode are subject to availability and may differ between properties within a postcode. Speeds can be affected by a range of technical and environmental factors. The speed at the property may be lower than that listed above. You can check the estimated speed and confirm availability to a property prior to purchasing on the broadband provider's website. Providers may increase charges. The information is provided and maintained by Decision Technologies Limited. **This is indicative only and based on a 2-person household with multiple devices and simultaneous usage. Broadband performance is affected by multiple factors including number of occupants and devices, simultaneous usage, router range etc. For more information speak to your broadband provider.
Map data ©OpenStreetMap contributors.






