Yates Street, Stockport
- PROPERTY TYPE
Plot
- BEDROOMS
2
- SIZE
2,196 sq ft
204 sq m
Key features
- Fantastic Development/ Building Opportunity
- Freehold Title
- Planning Permission granted - S106 finalised
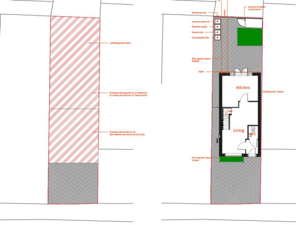
- Plans for a Two Bedroomed Detached
- Extremely Popular Location
- Site spans x sqft
Description
We are delighted to introduce to the market this Fantastic opportunity for those looking to invest in a prime piece of freehold land. The land is sold with planning permission for the construction of a two-bedroom detached home, with all S106 agreements finalised, allowing for a seamless transition into the building phase. This makes it an ideal prospect for developers or individuals seeking to create their dream residence in a highly sought-after area.
Being just a stones throw from Stockport Town Centre, the land offers a fantastic investment for such a project. Furthermore, the excellent transport links via the M60 ensure that commuting to nearby cities is both convenient and efficient, making this location particularly appealing for families and professionals alike.
Contact our office on to register your interest and to arrange an accompanied viewing. Freehold.
Brochures
Yates Street, StockportBrochureYates Street, Stockport
NEAREST STATIONS
Distances are straight line measurements from the centre of the postcode- Brinnington Station1.0 miles
- Stockport Station1.2 miles
- Bredbury Station1.4 miles
Notes
Disclaimer - Property reference 34280228. The information displayed about this property comprises a property advertisement. Rightmove.co.uk makes no warranty as to the accuracy or completeness of the advertisement or any linked or associated information, and Rightmove has no control over the content. This property advertisement does not constitute property particulars. The information is provided and maintained by Property One, Stockport. Please contact the selling agent or developer directly to obtain any information which may be available under the terms of The Energy Performance of Buildings (Certificates and Inspections) (England and Wales) Regulations 2007 or the Home Report if in relation to a residential property in Scotland.
Map data ©OpenStreetMap contributors.





