
Parkside, Birmingham, West Midlands, B32

- PROPERTY TYPE
Semi-Detached
- BEDROOMS
3
- BATHROOMS
1
- SIZE
Ask agent
- TENUREDescribes how you own a property. There are different types of tenure - freehold, leasehold, and commonhold.Read more about tenure in our glossary page.
Ask agent
Key features
- NO UPWARD CHAIN
- MODERN FITTED KITCHEN
- CALL OAKMANS TODAY
Description
Oakmans offer a well presented, three bedroom family home situated on the highly popular, Parkside. This property boasts no upward chain and further benefits from having a newly fitted kitchen, new carpets and decorations throughout and being within close proximity to a variety of amenities and transport links.
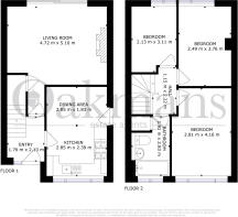
Parkside would make a fantastic first time/ family home and briefly comprises entrance hall, modern fitted kitchen and dining area and large lounge on the ground floor. On the first floor there is three generously sized bedrooms and family bathroom.
In addition to the newly fitted kitchen, there has also been a new roof.
The property is within close proximity to the QE hospitals, Harborne high street and transport links taking you to the above as well as Birmingham city centre.
Property type: Semi-detached house
Tenure: Freehold
Council Tax Band: B
EPC Rating: Flat 1: C
Construction Type: Standard construction
Parking Arrangements: Driveway to front
Broadband: Fibre (FTTP)
Mobile Signal Coverage: No known issues
Water Supply: Mains
Sewerage: Mains
Electric: Mains
Heating Supply: Gas
Building Safety Issues: No
Special Conditions: None
Flood Risk or Previous Flooding: No
Mine Shafts/Coal Fields/Erosion: No
Restrictions: No
Rights and Easements: No
Planning Permissions: No
Local Developments: No
Call Oakmans today!
Anti-money Laundering Checks (AML)
Regulations require us to conduct identity and AML checks and gather information about every buyer's financial circumstances. These checks are essential in fulfilling our Customer Due Diligence obligations, which must be done before any property can be marked as sold subject to contract. The rules are set by law and enforced by trading standards.
We will start these checks once you have made a provisionally agreeable offer on a property. The cost is £100 (plus VAT). This fee covers the expense of obtaining relevant data and any necessary manual checks and monitoring. It's paid in advance via our onboarding system, Kotini, and is non-refundable.
- COUNCIL TAXA payment made to your local authority in order to pay for local services like schools, libraries, and refuse collection. The amount you pay depends on the value of the property.Read more about council Tax in our glossary page.
- Band: TBC
- PARKINGDetails of how and where vehicles can be parked, and any associated costs.Read more about parking in our glossary page.
- Yes
- GARDENA property has access to an outdoor space, which could be private or shared.
- Yes
- ACCESSIBILITYHow a property has been adapted to meet the needs of vulnerable or disabled individuals.Read more about accessibility in our glossary page.
- Ask agent
Energy performance certificate - ask agent
Parkside, Birmingham, West Midlands, B32
Add an important place to see how long it'd take to get there from our property listings.
__mins driving to your place
Get an instant, personalised result:
- Show sellers you’re serious
- Secure viewings faster with agents
- No impact on your credit score


Your mortgage
Notes
Staying secure when looking for property
Ensure you're up to date with our latest advice on how to avoid fraud or scams when looking for property online.
Visit our security centre to find out moreDisclaimer - Property reference HBN251501. The information displayed about this property comprises a property advertisement. Rightmove.co.uk makes no warranty as to the accuracy or completeness of the advertisement or any linked or associated information, and Rightmove has no control over the content. This property advertisement does not constitute property particulars. The information is provided and maintained by Oakmans Estate Agents, Harborne. Please contact the selling agent or developer directly to obtain any information which may be available under the terms of The Energy Performance of Buildings (Certificates and Inspections) (England and Wales) Regulations 2007 or the Home Report if in relation to a residential property in Scotland.
*This is the average speed from the provider with the fastest broadband package available at this postcode. The average speed displayed is based on the download speeds of at least 50% of customers at peak time (8pm to 10pm). Fibre/cable services at the postcode are subject to availability and may differ between properties within a postcode. Speeds can be affected by a range of technical and environmental factors. The speed at the property may be lower than that listed above. You can check the estimated speed and confirm availability to a property prior to purchasing on the broadband provider's website. Providers may increase charges. The information is provided and maintained by Decision Technologies Limited. **This is indicative only and based on a 2-person household with multiple devices and simultaneous usage. Broadband performance is affected by multiple factors including number of occupants and devices, simultaneous usage, router range etc. For more information speak to your broadband provider.
Map data ©OpenStreetMap contributors.





