Alexandra Road, opposite Porth beach
- PROPERTY TYPE
Land
- BEDROOMS
7
- BATHROOMS
7
- SIZE
Ask agent
Key features
- PRIME WATERSIDE LOCATION OPPOSITE PORTH BEACH
- FULL PLANNING FOR TWO DETACHED FAMILY HOMES
- ELEVATED POSITION WITH STUNNING HIGH-TIDE SEA VIEWS
- ARCHITECTURALLY STRIKING, HIGH-PERFORMANCE HOME DESIGNS
- IMMEDIATE START POSSIBLE, SOME DEMOLITION WORKS ALREADY STARTED
- APPROXIMATELY 2 MILES FROM NEWQUAY TOWN CENTRE
- EXCEPTIONAL INVESTMENT OR LUXURY PRIMARY RESIDENCE OPPORTUNITY
- RENOWNED COASTAL HOTSPOT AREA WITH STUNNING BEACH AND COASTLINE
- NO ONGOING CHAIN FOR HASSLE FREE PURCHASE
- ALL MAINS SERVICES ON SITE
Description
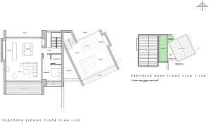
LUXURY REDEVELOPMENT OPPORTUNITY: TWO FULLY CONSENTED BEACHSIDE PLOTS DESIGNED TO MAXIMISE THE STUNNING COASTAL VIEWS. HIGH-END DESIGN THROUGHOUT, CREATING TWO DETACHED LUXURY HOMES BY REDEVELOPING WITHIN THE EXISTING GROUNDS OF THIS EXCEPTIONAL SITE.
An exceptional and rare opportunity has arisen to acquire this luxury waterside site with full planning permission to construct two stunning beachside, family-sized detached homes in one of Newquay’s most sought-after coastal locations. Morganna occupies a generous coastal plot, currently home to a property that will make way for redevelopment, offering the chance to create two high-end, architecturally striking homes with a focus on performance and design. Positioned directly opposite the iconic Porth Beach, the site benefits from elevated, uninterrupted high-tide sea views, providing a truly enviable coastal outlook.
The approved planning consent, under application number PA24/06058, has been carefully designed to maximise the site’s unique position, allowing for two exceptional homes that are likely to achieve strong resale values. Initial demolition works have already commenced, allowing the lucky purchaser to begin development without delay.
Porth continues to be one of Newquay’s most desirable coastal hotspots, situated just two miles from the vibrant town centre and blessed with one of the finest beaches and coastline on the North Cornish coast. With local schools and everyday amenities within easy reach, it is no surprise that both house hunters and holidaymakers are drawn to this charming coastal enclave.
Full planning details and documents can be accessed via the Cornwall Council online planning portal using the application number PA24/06058.
All enquiries via sole agents: Newquay Property Centre.
No Chain.
FIND ME USING WHAT3WORDS: relished.archive.slate
EPC Rating: C
Parking - Garage
Triple Garage
Parking - Driveway
Disclaimer
DMCC Act: We have not tested any fixtures, fittings or services, so cannot verify their condition, please check via your solicitor/surveyor. References to tenure are based on information supplied by the Vendor, again check via your solicitor. Items shown in photographs are not included unless specifically mentioned in the sales particulars. Before travelling to view, check if the property is available and book an appointment. All measurements are approximate. Referrals: We recommend conveyancing, financial services, and surveys to sellers/buyers, you are free to make your own choices, and do not have to accept a recommendation. If a recommendation is accepted, we receive referral fees ranging from £80 - £200 (FS) £150 + VAT - £210 + VAT (conveyancing) & £100 inc VAT (surveys).
Energy Performance Certificates
EPC 1Alexandra Road, opposite Porth beach
NEAREST STATIONS
Distances are straight line measurements from the centre of the postcode- Newquay Station1.2 miles
- Quintrell Downs Station1.9 miles
- St. Columb Road Station5.4 miles
Notes
Disclaimer - Property reference c6fc666a-34e4-453a-90fc-c61d832ef63b. The information displayed about this property comprises a property advertisement. Rightmove.co.uk makes no warranty as to the accuracy or completeness of the advertisement or any linked or associated information, and Rightmove has no control over the content. This property advertisement does not constitute property particulars. The information is provided and maintained by Newquay Property Centre, Newquay. Please contact the selling agent or developer directly to obtain any information which may be available under the terms of The Energy Performance of Buildings (Certificates and Inspections) (England and Wales) Regulations 2007 or the Home Report if in relation to a residential property in Scotland.
Map data ©OpenStreetMap contributors.







