Greystones Surgery Newbridge NP11
- PROPERTY TYPE
Commercial Property
- SIZE
Ask agent
Key features
- SUPERB COMMERCIAL PREMISES
- FREEHOLD
Description
Its super location is surrounded by greenery, allotments, and is a stroll away from town amenities, main road links, and the railway station for Cardiff and Newport.
Enjoying good private parking it has ample room for commercial vehicles or clients.
Inside is light and airy with so much space for your business to grow.
Formerly a medical centre it provides,
Communal waiting rooms, a reception area, office space, surgery rooms, a kitchen, a shower room, wet rooms, WCs, management offices, storage areas.
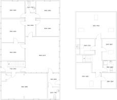
See the floorplan for a full breakdown and lay out. You will notice how well the accommodation flows.
It will be offered as a freehold, with a commercial permit allowing you full autonomy for your business.
Viewings are currently being scheduled from the premarketing promotion.
Greystones Surgery Newbridge NP11
NEAREST STATIONS
Distances are straight line measurements from the centre of the postcode- Newbridge Station0.3 miles
- Llanhilleth Station2.2 miles
- Crosskeys Station3.5 miles
Notes
Disclaimer - Property reference GREYSTONESSURGERY. The information displayed about this property comprises a property advertisement. Rightmove.co.uk makes no warranty as to the accuracy or completeness of the advertisement or any linked or associated information, and Rightmove has no control over the content. This property advertisement does not constitute property particulars. The information is provided and maintained by Cariad Property, Newbridge. Please contact the selling agent or developer directly to obtain any information which may be available under the terms of The Energy Performance of Buildings (Certificates and Inspections) (England and Wales) Regulations 2007 or the Home Report if in relation to a residential property in Scotland.
Map data ©OpenStreetMap contributors.






