
Land at Kensington Avenue, Royton, Oldham
- PROPERTY TYPE
Plot
- SIZE
Ask agent
Key features
- TO BE SOLD UNDER AUCTION TERMS
- PLANNING PERMISSION GRANTED
- PLANNING FOR 3 BED DETACHED
- HIGHLY SOUGHT AFTER LOCATION
- GREAT RETURNS
Description
TO BE SOLD BY ONLINE AUCTION ON 12TH NOVEMBER UNLESS SOLD PRIOR UNDER AUCTION TERMS.
Land at 12 Kensington Avenue, Royton, Oldham OL2 5SA
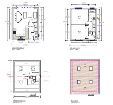
Land with Planning for a Three-Bedroom Detached Home
An excellent opportunity to acquire a parcel of land with full planning permission for the construction of a contemporary three-bedroom detached home, arranged over three floors. The approved design offers open-plan living space, three bedrooms, and two bathrooms – perfect for modern family living. Planning ref - FUL/351219/23
The site comes with a Drainage & SuDS Strategy with sustainable drainage design and a Coal Mining Risk Assessment confirming suitability for development.
Beautifully positioned close to Tandle Hill Country Park, the site enjoys a peaceful setting within a sought-after residential area of Royton. Local amenities, schools, and transport links are all nearby, with Oldham, Rochdale, and Manchester easily accessible via the A627(M), M60, and M62 motorways.
Once completed, the property is expected to achieve a resale value in the region of £325,000- £350,000 making this a superb self-build or investment opportunity in one of Royton’s most desirable locations.
Land at Kensington Avenue, Royton, Oldham
NEAREST STATIONS
Distances are straight line measurements from the centre of the postcode- Shaw & Crompton Tram Stop1.8 miles
- Derker Tram Stop2.2 miles
- Castleton Station2.2 miles
Notes
Disclaimer - Property reference EM-163837. The information displayed about this property comprises a property advertisement. Rightmove.co.uk makes no warranty as to the accuracy or completeness of the advertisement or any linked or associated information, and Rightmove has no control over the content. This property advertisement does not constitute property particulars. The information is provided and maintained by Edward Mellor Ltd, Auction. Please contact the selling agent or developer directly to obtain any information which may be available under the terms of The Energy Performance of Buildings (Certificates and Inspections) (England and Wales) Regulations 2007 or the Home Report if in relation to a residential property in Scotland.
Auction Fees: The purchase of this property may include associated fees not listed here, as it is to be sold via auction. To find out more about the fees associated with this property please call Edward Mellor Ltd, Auction on 0161 524 2443.
*Guide Price: An indication of a seller's minimum expectation at auction and given as a Guide Price or a range of Guide Prices. This is not necessarily the figure a property will sell for and is subject to change prior to the auction.
Reserve Price: Each auction property will be subject to a Reserve Price below which the property cannot be sold at auction. Normally the Reserve Price will be set within the range of Guide Prices or no more than 10% above a single Guide Price.
Map data ©OpenStreetMap contributors.







