East Street, Hunton, Maidstone, Kent, ME15

- PROPERTY TYPE
Detached
- BEDROOMS
5
- SIZE
Ask agent
- TENUREDescribes how you own a property. There are different types of tenure - freehold, leasehold, and commonhold.Read more about tenure in our glossary page.
Freehold
Key features
- Beautifully presented spacious modern house
- Swimming pool and tennis court
- Stunning far-reaching views
- Orchards
- 5 bedrooms
- Solar Panels
- High Speed Broadband enabled
Description
Nestled in a plot of over four acres in the Kent countryside, this beautifully appointed modern country home is designed with both family life and entertaining in mind. The property offers a wealth of versatile living spaces, refined finishes, a garden with stunning far-reaching views, a vast terrace to entertain, orchards, fruit cages and vegetable beds for the green fingered buyer.
The entrance vestibule houses a practical storage bench seat and leads to the study. There is an inner hallway with doors to the dining room and sitting room which flows into the light filled garden room with two sets of bi-fold doors that effortlessly bring the outdoors in. There is a good size kitchen/breakfast room with patio doors opening directly onto the garden - perfect for morning coffees or alfresco dining. Adjacent to the kitchen, a utility room offers practicality along with a separate WC and garden access. There is also a guest cloakroom and understairs storage on the ground floor.
Upstairs offers flexible accommodation for family and guests; all the bedrooms have glorious Southerly views, the principal with a generous ensuite. There are three additional double bedrooms on the first floor which are served by a family bathroom and an additional shower room. On the second floor there is a charming attic room currently used as a children’s playroom.
The current owners have maintained the property to an exceptionally high standard, combining comfort, convenience, and security throughout. Zoned lighting has been installed to create flexible ambience in living areas, while underfloor heating has been added in key areas for year-round warmth. The current owners have also recently upgraded to high-speed broadband.
FEATURES
- Kitchen/breakfast room with granite work tops, tiled flooring and underfloor heating, integrated larder style fridge, wine fridge, dishwasher and microwave, butler sink, electric range cooker, ample base and wall units, storage cupboard and patio doors to garden
- Utility room with integrated larder style freezer, double Belfast sink, plumbing and space for a washer/dryer and storage space, separate WC with vanity basin and door
to garden
- Guest cloakroom with WC, vanity basin with storage
- Dining room with beams, wood burner, engineered oak flooring and views to the garden
- Sitting room and garden room featuring triple aspect
and two sets of bi-fold doors opening into the garden
- Study with solid oak flooring, built in desk area and front aspect
- Principal bedroom with far reaching views, ensuite with spacious walk-in shower, bath, WC, bidet, vanity basin and storage, under floor heating
- Family bathroom featuring luxurious corner bath, heated towel rail, WC, vanity unit with storage and access
to eaves storage, under floor heating
- Three double bedrooms, one with built in wardrobe
- Shower room with large walk in shower, WC, vanity basin with storage and heated towel rail, under floor heating
- Attic bedroom five, currently used as a children’s playroom, this features three Velux windows, and access to the loft space with additional storage
OUTSIDE
Court Lodge sits within just under 4.4 acres of land made up of gardens, paddock and bluebell woodland. The beautiful south facing garden houses many mature trees and flower beds, and beyond are far reaching Southerly and Westerly views. The outside space is truly a garden of Kent, with an orchard comprising cobnuts, plums, brown turkey figs, apples, quince, pear and a greengage tree.
There is a polytunnel and greenhouse for growing all year round, a potting shed complete with sink, and many fruit cages and raised vegetable beds.
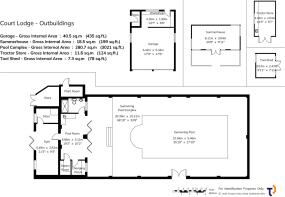
The impressive leisure complex features an 11-metre saltwater swimming pool, complete with an electric cover and a retractable roof that opens to reveal half the pool and an adjoining sun terrace. From the poolside, bi-fold doors
lead into a kitchenette (including a microwave, sink, fridge and fitted cupboards), a changing room, a steam room, and a bathroom with a double shower, WC, and vanity unit. Further inside, you’ll find a gym, also enjoying access to the outdoors through additional bi-fold doors that open onto a small patio. Continuing the leisure theme, the property also benefits from a hard-surface tennis court.
Additional outbuildings include a charming summer house, and a double garage with electric doors, incorporating a workshop and a separate storage room - currently used by the owners for storing and freezing their plentiful fruit harvests. Further facilities include a tool shed, a dedicated shed housing the inverter and 10kw of batteries powered by the 16 solar panels on the pool-house roof that provide up to half of the electricity needs for the house, and a pump room for the swimming pool’s maintenance and operation.
Court Lodge is set in a rural location within a fifteen minute walk of Hunton’s village hall, 12th century St Mary’s parish church and primary school. Coxheath, Marden and other outlying villages offer a good range of day-to-day shops, sports clubs and amenities. Alternatively, Maidstone provides comprehensive shopping and facilities, with a Sainsbury’s supermarket in Staplehurst.
A wealth of leisure and tourist attractions nearby include Leeds and Sissinghurst Castles, walking, cycling and fishing at Bedgebury Forest, leisure centres and gyms at Maidstone, walking along the Medway Towpath or at the 450-acre Mote Park.
As well as Hunton Primary School, further schools catering for children of all ages include Yalding Primary School, Sutton Valence Preparatory and Senior Schools, Mascalls Academy in Paddock Wood and numerous secondary and grammar schools in Maidstone, Tonbridge and Tunbridge Wells.
There are good road links nearby with the M20 providing access east to the Channel Tunnel services and the coastal ports, and west to the M25 for Gatwick, Heathrow and Stansted Airports.
Marden Station offers services to London Bridge, Cannon Street and Charing Cross with journeys from under an hour. Marden also offers services to Ashford International for trains to London St. Pancras via the high-speed service. Alternatively, there are further services to London from Maidstone East and West.
Marden Station 3.3 miles
Maidstone 5.5 miles
M20 Motorway 7.5 miles
London 41 miles
(All distances are approximate)
Brochures
Particulars- COUNCIL TAXA payment made to your local authority in order to pay for local services like schools, libraries, and refuse collection. The amount you pay depends on the value of the property.Read more about council Tax in our glossary page.
- Band: G
- PARKINGDetails of how and where vehicles can be parked, and any associated costs.Read more about parking in our glossary page.
- Yes
- GARDENA property has access to an outdoor space, which could be private or shared.
- Yes
- ACCESSIBILITYHow a property has been adapted to meet the needs of vulnerable or disabled individuals.Read more about accessibility in our glossary page.
- Ask agent
East Street, Hunton, Maidstone, Kent, ME15
Add an important place to see how long it'd take to get there from our property listings.
__mins driving to your place
Explore area BETA
Maidstone
Get to know this area with AI-generated guides about local green spaces, transport links, restaurants and more.
Get an instant, personalised result:
- Show sellers you’re serious
- Secure viewings faster with agents
- No impact on your credit score
Your mortgage
Notes
Staying secure when looking for property
Ensure you're up to date with our latest advice on how to avoid fraud or scams when looking for property online.
Visit our security centre to find out moreDisclaimer - Property reference CRA250136. The information displayed about this property comprises a property advertisement. Rightmove.co.uk makes no warranty as to the accuracy or completeness of the advertisement or any linked or associated information, and Rightmove has no control over the content. This property advertisement does not constitute property particulars. The information is provided and maintained by Jackson-Stops, Kent And East Sussex. Please contact the selling agent or developer directly to obtain any information which may be available under the terms of The Energy Performance of Buildings (Certificates and Inspections) (England and Wales) Regulations 2007 or the Home Report if in relation to a residential property in Scotland.
*This is the average speed from the provider with the fastest broadband package available at this postcode. The average speed displayed is based on the download speeds of at least 50% of customers at peak time (8pm to 10pm). Fibre/cable services at the postcode are subject to availability and may differ between properties within a postcode. Speeds can be affected by a range of technical and environmental factors. The speed at the property may be lower than that listed above. You can check the estimated speed and confirm availability to a property prior to purchasing on the broadband provider's website. Providers may increase charges. The information is provided and maintained by Decision Technologies Limited. **This is indicative only and based on a 2-person household with multiple devices and simultaneous usage. Broadband performance is affected by multiple factors including number of occupants and devices, simultaneous usage, router range etc. For more information speak to your broadband provider.
Map data ©OpenStreetMap contributors.





