Sypsies, Butchers Cross, Mayfield, East Sussex, TN20 6JN

- PROPERTY TYPE
Detached
- BEDROOMS
6
- BATHROOMS
5
- SIZE
Ask agent
- TENUREDescribes how you own a property. There are different types of tenure - freehold, leasehold, and commonhold.Read more about tenure in our glossary page.
Freehold
Key features
- Substantial Grade II Listed House and Circa 3 Acres of Land
- 6 Bedrooms, 5 Bathrooms (inc 3 en-suite)
- Linked One Bed Annexe
- Over 4000 sq ft of Spacious Accommodation
- Detached Garage/Workshop
- Requires Full Refurbishment
Description
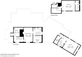
An impressive and substantial Grade II listed house, offering over 4000 sq ft of spacious and impressive, characterful accommodation over three floors, to include a linked one bedroom, ground floor annexe and circa 3 acres of land. There is also a substantial, detached garage/workshop which offers significant potential for further uses, subject to any necessary planning consents. The property requires full refurbishment.
Benefitting from six bedrooms, five bathrooms (three en-suite), six reception rooms, double garage, and outbuildings. The accommodation is over 4,000sq ft, has an in and out gated driveway, and enjoys far-reaching views from the rear garden across open fields and woodland.
The property is located in Five Ashes, a small village enjoying a local public house, children's nursery, primary School and the renowned Skippers Hill Preparatory School.
Historical Mayfield High Street is nearby, with further facilities, leisure venues and highly regarded schools. The property is well located also, for Heathfield (3 miles) and vibrant Tunbridge Wells (11 miles) with it's excellent connections to London.
VIEWING SLOT: Group Viewing - Saturday 15th November 3pm - 3.30pm - Please Call The Office To Attend.
Tenure
Freehold
Terms
Legal Pack
To review the legal documents and to view the auction information click on the buttons at the bottom of this advert or visit our website tcpa.co.uk
UNCONDITIONAL LOT Exchange and administration fee information: (plus fees)
Buyers Administration Fee Applies upon the fall of the hammer, the Purchaser shall pay a 10% deposit (subject to minimum of £5,000, whichever is the greater) and a Buyers Administration Fee of £1200 + VAT and contracts are exchanged. The purchaser is legally bound to buy and the vendor is legally bound to sell the Property/Lot. The auction conditions require a full legal completion 28 days following the auction (unless otherwise stated in the legal pack or on the sales details).
In addition to the purchase price, buyers may be required to pay additional fees, costs and charges - please refer to the legal pack.
Registration Process
To register to bid on the property, find the property on the Town & Country Property Auctions website. Click onto the property, follow the link to “Log in/ register to bid”. You will then be directed to create an auction passport account with our online-bidding platform provider Essential Information Group.
Brochures
Legal DocumentsOnline Bidding- COUNCIL TAXA payment made to your local authority in order to pay for local services like schools, libraries, and refuse collection. The amount you pay depends on the value of the property.Read more about council Tax in our glossary page.
- Band: H
- PARKINGDetails of how and where vehicles can be parked, and any associated costs.Read more about parking in our glossary page.
- Yes
- GARDENA property has access to an outdoor space, which could be private or shared.
- Yes
- ACCESSIBILITYHow a property has been adapted to meet the needs of vulnerable or disabled individuals.Read more about accessibility in our glossary page.
- Ask agent
Sypsies, Butchers Cross, Mayfield, East Sussex, TN20 6JN
Add an important place to see how long it'd take to get there from our property listings.
__mins driving to your place
Get an instant, personalised result:
- Show sellers you’re serious
- Secure viewings faster with agents
- No impact on your credit score

Your mortgage
Notes
Staying secure when looking for property
Ensure you're up to date with our latest advice on how to avoid fraud or scams when looking for property online.
Visit our security centre to find out moreDisclaimer - Property reference 316999. The information displayed about this property comprises a property advertisement. Rightmove.co.uk makes no warranty as to the accuracy or completeness of the advertisement or any linked or associated information, and Rightmove has no control over the content. This property advertisement does not constitute property particulars. The information is provided and maintained by Town and Country Property Auctions, London. Please contact the selling agent or developer directly to obtain any information which may be available under the terms of The Energy Performance of Buildings (Certificates and Inspections) (England and Wales) Regulations 2007 or the Home Report if in relation to a residential property in Scotland.
Auction Fees: The purchase of this property may include associated fees not listed here, as it is to be sold via auction. To find out more about the fees associated with this property please call Town and Country Property Auctions, London on 020 3337 0600.
*Guide Price: An indication of a seller's minimum expectation at auction and given as a Guide Price or a range of Guide Prices. This is not necessarily the figure a property will sell for and is subject to change prior to the auction.
Reserve Price: Each auction property will be subject to a Reserve Price below which the property cannot be sold at auction. Normally the Reserve Price will be set within the range of Guide Prices or no more than 10% above a single Guide Price.
*This is the average speed from the provider with the fastest broadband package available at this postcode. The average speed displayed is based on the download speeds of at least 50% of customers at peak time (8pm to 10pm). Fibre/cable services at the postcode are subject to availability and may differ between properties within a postcode. Speeds can be affected by a range of technical and environmental factors. The speed at the property may be lower than that listed above. You can check the estimated speed and confirm availability to a property prior to purchasing on the broadband provider's website. Providers may increase charges. The information is provided and maintained by Decision Technologies Limited. **This is indicative only and based on a 2-person household with multiple devices and simultaneous usage. Broadband performance is affected by multiple factors including number of occupants and devices, simultaneous usage, router range etc. For more information speak to your broadband provider.
Map data ©OpenStreetMap contributors.





