Stanton Avenue, Northampton

- PROPERTY TYPE
Semi-Detached
- BEDROOMS
2
- BATHROOMS
2
- SIZE
Ask agent
- TENUREDescribes how you own a property. There are different types of tenure - freehold, leasehold, and commonhold.Read more about tenure in our glossary page.
Freehold
Key features
- NO UPPER CHAIN
- Spinney Hill Location
- Double Garage & Off Road Parking
- Extended & Loft Conversion
- Spacious Accommodation Throughout
- Close To Local Amenities & Road Links
Description
This home has been extended and has a loft conversion creating brilliant living accommodation throughout.
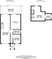
The porch entrance is ideal for storage and leads into the hallway along with the rest of the ground floor accommodation. The extended lounge offers ample living space and could be used as a lounge/diner if preferred. There are sliding doors which flow into the generous conservatory creating an additional reception room with views over the rear garden. The kitchen is a lovely size with plenty of cupboards and workspace on offer whilst boasting a dining area too. Continuing through the downstairs you have a shower room and bedroom two.
Stairs rise to the first floor where you will find the master bedroom accompanied with an ensuite comprising a bath with shower over, w.c and wash hand basin.
Externally the rear garden has been landscaped with a low maintenance finish. Well balanced with lawn, gravelled areas, feature shrub beds and access into the double garage. To the front there is a driveway providing off road parking.
Lounge / Diner - 9.58m x 3.02m (31'05 x 9'11 ) -
Kitchen - 5.54m x 2.87m (18'02 x 9'05 ) -
Conservatory - 6.25m x 2.34m (20'06 x 7'08 ) -
Shower Room -
Bedroom One - 4.50m x 4.80m (max) (14'09 x 15'09 (max)) -
Ensuite -
Bedroom Two - 3.02m x 2.26m (9'11 x 7'05 ) -
Brochures
Stanton Avenue, Northampton- COUNCIL TAXA payment made to your local authority in order to pay for local services like schools, libraries, and refuse collection. The amount you pay depends on the value of the property.Read more about council Tax in our glossary page.
- Ask agent
- PARKINGDetails of how and where vehicles can be parked, and any associated costs.Read more about parking in our glossary page.
- Yes
- GARDENA property has access to an outdoor space, which could be private or shared.
- Yes
- ACCESSIBILITYHow a property has been adapted to meet the needs of vulnerable or disabled individuals.Read more about accessibility in our glossary page.
- Ask agent
Energy performance certificate - ask agent
Stanton Avenue, Northampton
Add an important place to see how long it'd take to get there from our property listings.
__mins driving to your place
Get an instant, personalised result:
- Show sellers you’re serious
- Secure viewings faster with agents
- No impact on your credit score
Your mortgage
Notes
Staying secure when looking for property
Ensure you're up to date with our latest advice on how to avoid fraud or scams when looking for property online.
Visit our security centre to find out moreDisclaimer - Property reference 34281879. The information displayed about this property comprises a property advertisement. Rightmove.co.uk makes no warranty as to the accuracy or completeness of the advertisement or any linked or associated information, and Rightmove has no control over the content. This property advertisement does not constitute property particulars. The information is provided and maintained by Oscar James, Northampton. Please contact the selling agent or developer directly to obtain any information which may be available under the terms of The Energy Performance of Buildings (Certificates and Inspections) (England and Wales) Regulations 2007 or the Home Report if in relation to a residential property in Scotland.
*This is the average speed from the provider with the fastest broadband package available at this postcode. The average speed displayed is based on the download speeds of at least 50% of customers at peak time (8pm to 10pm). Fibre/cable services at the postcode are subject to availability and may differ between properties within a postcode. Speeds can be affected by a range of technical and environmental factors. The speed at the property may be lower than that listed above. You can check the estimated speed and confirm availability to a property prior to purchasing on the broadband provider's website. Providers may increase charges. The information is provided and maintained by Decision Technologies Limited. **This is indicative only and based on a 2-person household with multiple devices and simultaneous usage. Broadband performance is affected by multiple factors including number of occupants and devices, simultaneous usage, router range etc. For more information speak to your broadband provider.
Map data ©OpenStreetMap contributors.




