
Phillip Street, Hoole, CH2

- PROPERTY TYPE
Terraced
- BEDROOMS
2
- BATHROOMS
1
- SIZE
818 sq ft
76 sq m
- TENUREDescribes how you own a property. There are different types of tenure - freehold, leasehold, and commonhold.Read more about tenure in our glossary page.
Freehold
Key features
- Lovely Terraced house
- Two bedrooms
- Large Family Bathroom
- Lounge/Dining Room
- Close proximity to great local amenities
- Desirable location
Description
Location location location! This lovely terraced house provides a great opportunity for its next buyer! Well maintained and presented throughout, this property boasts the best of both worlds, quietly tucked away at the end of Phillip Street, yet a stone’s throw from the centre of Hoole!
Upon entering you are greeted with an entrance hall, having a door leading to the lounge. A fantastic space, the lounge situated to the front of the property is and flooded with natural light. The dining room leading off from the lounge has ample space for a dining table and chairs with French doors to the rear elevation leading to the walled courtyard. A staircase from the dining area leads you to the first floor. The kitchen to the rear has been fitted with an arrangement of wall and base units, with integral appliances creating a seamless finish. To the first floor there is a landing, two double bedrooms and the large family bathroom compromising of a bath, wash basin and WC.
To the rear there is a walled courtyard garden, an easy to maintain space laid with paving. There is also pedestrian access to the rear.
This home comes with the complete package and of course, that most important location, within the centre of Hoole where the award-winning restaurants, shops and bars are just a stone’s throw away.
EPC Rating: D
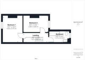
Hall (3.05m x 0.94m)
Lounge (3.14m x 3.16m)
Dining Room (3.83m x 4.24m)
Kitchen (5.13m x 1.64m)
Landing (3.87m x 1.47m)
Bedroom 1 (3.15m x 4.3m)
Bedroom 2 (3.83m x 2.69m)
Bathroom (3.13m x 1.77m)
Disclaimer
ANTI MONEY LAUNDERING REGULATIONS Intending purchasers will be asked to produce identification documentation before we can confirm the sale in writing. There is an administration charge of £30.00 per person payable by buyers and sellers, as we must electronically verify the identity of all in order to satisfy Government requirements regarding customer due diligence. We would ask for your co-operation in order that there will be no delay in agreeing the sale. MATERIAL INFORMATION REPORT The Material Information Report for this property can be viewed on the Rightmove listing. Alternatively, a copy can be requested from our office which will be sent via email. EXTRA SERVICES Mortgage referrals, conveyancing referral and surveying referrals will be offered by Carman Friend Estate Agents. If a buyer or seller should proceed with any of these services, then a commission fee will be paid to Carman Friend Ltd upon completion.
Brochures
Material Information Report- COUNCIL TAXA payment made to your local authority in order to pay for local services like schools, libraries, and refuse collection. The amount you pay depends on the value of the property.Read more about council Tax in our glossary page.
- Band: B
- PARKINGDetails of how and where vehicles can be parked, and any associated costs.Read more about parking in our glossary page.
- Ask agent
- GARDENA property has access to an outdoor space, which could be private or shared.
- Private garden
- ACCESSIBILITYHow a property has been adapted to meet the needs of vulnerable or disabled individuals.Read more about accessibility in our glossary page.
- Ask agent
Phillip Street, Hoole, CH2
Add an important place to see how long it'd take to get there from our property listings.
__mins driving to your place
Get an instant, personalised result:
- Show sellers you’re serious
- Secure viewings faster with agents
- No impact on your credit score
Your mortgage
Notes
Staying secure when looking for property
Ensure you're up to date with our latest advice on how to avoid fraud or scams when looking for property online.
Visit our security centre to find out moreDisclaimer - Property reference 6a3e281a-12ed-4d23-b43a-d3a30778f0fd. The information displayed about this property comprises a property advertisement. Rightmove.co.uk makes no warranty as to the accuracy or completeness of the advertisement or any linked or associated information, and Rightmove has no control over the content. This property advertisement does not constitute property particulars. The information is provided and maintained by Carman Friend, Chester. Please contact the selling agent or developer directly to obtain any information which may be available under the terms of The Energy Performance of Buildings (Certificates and Inspections) (England and Wales) Regulations 2007 or the Home Report if in relation to a residential property in Scotland.
*This is the average speed from the provider with the fastest broadband package available at this postcode. The average speed displayed is based on the download speeds of at least 50% of customers at peak time (8pm to 10pm). Fibre/cable services at the postcode are subject to availability and may differ between properties within a postcode. Speeds can be affected by a range of technical and environmental factors. The speed at the property may be lower than that listed above. You can check the estimated speed and confirm availability to a property prior to purchasing on the broadband provider's website. Providers may increase charges. The information is provided and maintained by Decision Technologies Limited. **This is indicative only and based on a 2-person household with multiple devices and simultaneous usage. Broadband performance is affected by multiple factors including number of occupants and devices, simultaneous usage, router range etc. For more information speak to your broadband provider.
Map data ©OpenStreetMap contributors.






