Unit 3, Clos Marion, Cardiff, CF10 4LJ

- PROPERTY TYPE
Terraced
- SIZE
4,609 sq ft
428 sq m
- TENUREDescribes how you own a property. There are different types of tenure - freehold, leasehold, and commonhold.Read more about tenure in our glossary page.
Freehold
Description
Freehold commercial industrial unit approximately 4500 sq ft occupying a generous plot and 17 parking spaces in Cardiff. Sold with vacant possession.
Description
A modern industrial unit constructed with a steel portal frame and lower brick under a pitched roof. A lot of investment has been put into the building and significant improvements made since the current owners acquired it in 2017. The unit benefits from vehicular access via an electric roller shutter door and a separate pedestrian entrance to front. Internally, the accommodation is configured providing open-plan warehouse/storage space on the ground floor with ancillary offices, along with first-floor offices including reception area, boardroom/meeting rooms, kitchenette, and WC facilities.
We understand that the property is fitted with mains services including three-phase electricity, gas heating, water, and drainage. Externally, the unit is set within a secure fenced compound with gated access, a concrete yard/loading area, and allocated parking with an informed 17 parking spaces. The unit is suitable for B1 (business), B2 (general industrial), or B8 (storage and distribution) uses, subject to planning consents. Currently occupied as Barber Blades, a barber supplies distribution company. Please note there will be some fitted units and storage racking that will remain especially in the main warehouse areas.
The property located within Charnwood Park, a modern and established business estate located approximately 2 miles south-east of Cardiff City Centre. The area is in close proximity to Cardiff Docks, and major industrial estates such as Ocean Park and Portmanmoor Road. Excellent transport links are provided via the nearby A4232 southern link road, connecting to Rover Way and the A48(M), with easy access to Junctions 29, 30, and 34 of the M4 motorway. Nearby occupiers include SIG Plc, Severn Insulation, TradeChoice Carpet & Flooring, and Capital Plastics. Local amenities include schools, bus and train stations nearby.
We are informed of the current rateable value (1st April 2023 to present) being £24,000. Previous 2nd March 2021 to 31st March 2023 £20,500. Please confirm via Cardiff county council business rates.
We understand that the sale is not elected for VAT however we recommend confirming this with your legal representative.
For any further information or clarification please refer to the legal pack once available.
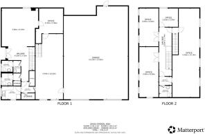
Accommodation
GF - Warehouse/Storage, Office/Ancillary (incl. reception, WC, kitchen)
FF - Offices/Meeting Rooms
Informed Freehold please refer to legal pack for verification of tenure
Additional Fees
Buyer’s Premium – 1.2% with a minimum of 1,200.00 (inc of VAT) payable on exchange of contracts. Please refer to the legal pack for any further disbursements to be paid by the purchaser on completion.
Each property sold is subject to a Reserve Price. The Reserve Price, which is agreed between the seller and the auctioneer just prior to the auction, will be within + or - 10% of the Guide Price. The Guide Price is issued solely as a guide so that a buyer can consider whether or not to pursue their interest. Both the Guide Price and the Reserve Price can be subject to change up to and including the day of the auction.
Further Information
Auctioneers Office, Seel and Co
Viewing
Viewing by appointment with Seel and Co
Brochures
Legal DocumentsOnline Bidding- COUNCIL TAXA payment made to your local authority in order to pay for local services like schools, libraries, and refuse collection. The amount you pay depends on the value of the property.Read more about council Tax in our glossary page.
- Ask agent
- PARKINGDetails of how and where vehicles can be parked, and any associated costs.Read more about parking in our glossary page.
- Yes
- GARDENA property has access to an outdoor space, which could be private or shared.
- Yes
- ACCESSIBILITYHow a property has been adapted to meet the needs of vulnerable or disabled individuals.Read more about accessibility in our glossary page.
- Ask agent
Energy performance certificate - ask agent
Unit 3, Clos Marion, Cardiff, CF10 4LJ
Add an important place to see how long it'd take to get there from our property listings.
__mins driving to your place
Get an instant, personalised result:
- Show sellers you’re serious
- Secure viewings faster with agents
- No impact on your credit score
Your mortgage
Notes
Staying secure when looking for property
Ensure you're up to date with our latest advice on how to avoid fraud or scams when looking for property online.
Visit our security centre to find out moreDisclaimer - Property reference 314982. The information displayed about this property comprises a property advertisement. Rightmove.co.uk makes no warranty as to the accuracy or completeness of the advertisement or any linked or associated information, and Rightmove has no control over the content. This property advertisement does not constitute property particulars. The information is provided and maintained by Seel & Co Ltd, Cardiff - Auctions. Please contact the selling agent or developer directly to obtain any information which may be available under the terms of The Energy Performance of Buildings (Certificates and Inspections) (England and Wales) Regulations 2007 or the Home Report if in relation to a residential property in Scotland.
Auction Fees: The purchase of this property may include associated fees not listed here, as it is to be sold via auction. To find out more about the fees associated with this property please call Seel & Co Ltd, Cardiff - Auctions on 029 2271 6399.
*Guide Price: An indication of a seller's minimum expectation at auction and given as a Guide Price or a range of Guide Prices. This is not necessarily the figure a property will sell for and is subject to change prior to the auction.
Reserve Price: Each auction property will be subject to a Reserve Price below which the property cannot be sold at auction. Normally the Reserve Price will be set within the range of Guide Prices or no more than 10% above a single Guide Price.
*This is the average speed from the provider with the fastest broadband package available at this postcode. The average speed displayed is based on the download speeds of at least 50% of customers at peak time (8pm to 10pm). Fibre/cable services at the postcode are subject to availability and may differ between properties within a postcode. Speeds can be affected by a range of technical and environmental factors. The speed at the property may be lower than that listed above. You can check the estimated speed and confirm availability to a property prior to purchasing on the broadband provider's website. Providers may increase charges. The information is provided and maintained by Decision Technologies Limited. **This is indicative only and based on a 2-person household with multiple devices and simultaneous usage. Broadband performance is affected by multiple factors including number of occupants and devices, simultaneous usage, router range etc. For more information speak to your broadband provider.
Map data ©OpenStreetMap contributors.




