
42 Trondra Place, Glasgow, G34

- PROPERTY TYPE
Semi-Detached
- BEDROOMS
4
- BATHROOMS
2
- SIZE
Ask agent
- TENUREDescribes how you own a property. There are different types of tenure - freehold, leasehold, and commonhold.Read more about tenure in our glossary page.
Ask agent
Key features
- Significantly extended family home
- Large dining kitchen + utility room
- Upgraded and in walk-in condition
- 3/4 bedrooms
- Re-fitted main bathroom
- Gas central heating and upgraded double glazing
- Southerly facing rear garden
- Ample off-street driveway parking
- Quiet, yet highly convenient location
Description
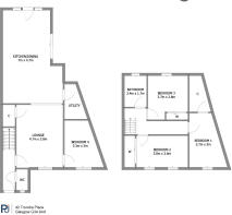
The home benefits from a single rear extension and a double-storey side extension, creating exceptionally flexible and spacious accommodation ideal for modern family living. Notable features include a contemporary fitted kitchen, guest W.C., and a gas-fired central heating system. In recent years, the main bathroom has been stylishly refitted, and most of the windows have been replaced. Additional enhancements such as solar panels and a CCTV system further improve the property’s efficiency and security.
Internally, the layout is centred around a superb reception room which flows seamlessly into the impressive extended kitchen - a bright and welcoming open-plan space perfect for entertaining. The kitchen is fitted with an extensive range of wall and base units, offering excellent storage and preparation space, along with a full suite of integrated appliances. An adjoining utility room provides additional practicality. The ground floor also features a versatile fourth bedroom, ideal for use as a home office, guest room, or playroom.
Upstairs, the property offers a spacious principal bedroom with walk-in wardrobe, two further well-proportioned double bedrooms with built in storage, and a sleek modern family bathroom. A generous loft area provides additional storage.
Externally, the front of the property benefits from ample driveway parking, while the fully enclosed rear garden enjoys a southerly aspect and is mainly laid to lawn - perfect for outdoor relaxation and family gatherings.
Trondra Place is conveniently located for easy access to a host of amenities including shops, supermarkets, and schooling at both primary and secondary levels. The property is a short walk away from The Fort shopping centre which provides a host of retail shops, restaurants and The Vue cinema. There is also excellent road and public transport links allowing easy access throughout Glasgow and the central belt, with Glasgow city centre less than a ten-minute drive away.
The Energy Performance rating on this property is Band B
- COUNCIL TAXA payment made to your local authority in order to pay for local services like schools, libraries, and refuse collection. The amount you pay depends on the value of the property.Read more about council Tax in our glossary page.
- Ask agent
- PARKINGDetails of how and where vehicles can be parked, and any associated costs.Read more about parking in our glossary page.
- Driveway
- GARDENA property has access to an outdoor space, which could be private or shared.
- Yes
- ACCESSIBILITYHow a property has been adapted to meet the needs of vulnerable or disabled individuals.Read more about accessibility in our glossary page.
- Ask agent
Energy performance certificate - ask agent
42 Trondra Place, Glasgow, G34
Add an important place to see how long it'd take to get there from our property listings.
__mins driving to your place
Get an instant, personalised result:
- Show sellers you’re serious
- Secure viewings faster with agents
- No impact on your credit score
Your mortgage
Notes
Staying secure when looking for property
Ensure you're up to date with our latest advice on how to avoid fraud or scams when looking for property online.
Visit our security centre to find out moreDisclaimer - Property reference 71bec49c-8183-de4d-d8e3-68d120c90da4. The information displayed about this property comprises a property advertisement. Rightmove.co.uk makes no warranty as to the accuracy or completeness of the advertisement or any linked or associated information, and Rightmove has no control over the content. This property advertisement does not constitute property particulars. The information is provided and maintained by Pacitti Jones, Dennistoun. Please contact the selling agent or developer directly to obtain any information which may be available under the terms of The Energy Performance of Buildings (Certificates and Inspections) (England and Wales) Regulations 2007 or the Home Report if in relation to a residential property in Scotland.
*This is the average speed from the provider with the fastest broadband package available at this postcode. The average speed displayed is based on the download speeds of at least 50% of customers at peak time (8pm to 10pm). Fibre/cable services at the postcode are subject to availability and may differ between properties within a postcode. Speeds can be affected by a range of technical and environmental factors. The speed at the property may be lower than that listed above. You can check the estimated speed and confirm availability to a property prior to purchasing on the broadband provider's website. Providers may increase charges. The information is provided and maintained by Decision Technologies Limited. **This is indicative only and based on a 2-person household with multiple devices and simultaneous usage. Broadband performance is affected by multiple factors including number of occupants and devices, simultaneous usage, router range etc. For more information speak to your broadband provider.
Map data ©OpenStreetMap contributors.





