
Willoughby Close, Headley Park, BRISTOL, BS13

Letting details
- Let available date:
- 22/11/2025
- Deposit:
- £2,019A deposit provides security for a landlord against damage, or unpaid rent by a tenant.Read more about deposit in our glossary page.
- Min. Tenancy:
- Ask agent How long the landlord offers to let the property for.Read more about tenancy length in our glossary page.
- Let type:
- Long term
- Furnish type:
- Unfurnished
- Council Tax:
- Ask agent
- PROPERTY TYPE
Semi-Detached
- BEDROOMS
3
- BATHROOMS
1
- SIZE
Ask agent
Key features
- Semi-Detached Home
- Three Bedrooms
- Contemporary Kitchen/Diner
- Modern Family Bathroom
- Light & Spacious Reception Room
- South Facing Rear Garden
- Off-Street Parking
- Well Presented & Immaculate Condition Throughout
- EPC - C
- Council Tax - C
Description
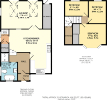
The ground floor of this beautifully presented home is comprised of a porch, a sizeable entrance hallway, a modern bathroom with separate walk-in shower and stand-alone bath tub, a utility, a light and airy reception room and a contemporary kitchen/diner featuring exposed brickwork, integrated appliances and contrasting taupe and white gloss wall and base units.
Multipurpose tilt and turn door/windows from the reception room or a door from the utility provides access to a south facing rear garden, mainly laid to lawn but also features brick paving and a decked seating area. The garden also offers two large storage cupboards.
The first floor hosts a generous bay-fronted master bedroom benefitting from mirrored sliding wardrobes and two more bedrooms.
Further benefits to this property include a smart security system and off-street parking on the driveway.
This family home is situated on Willoughby Close, a quiet cul-de-sac in Headley Park. There is easy access into Bristol City Centre and the South Bristol Link road; a substantial benefit for the area. Local amenities such as shopping and leisure facilities are in abundance at the popular Imperial Retail Park located only a 5 minute drive away. A vast array of well-respected schools and open green spaces are nearby including Manor Woods Valley and Hengrove Park.
Broadband ( Source OfCom ) – Standard, Ultrafast
Mobile – ( Source Ofcom ) – Likely
- COUNCIL TAXA payment made to your local authority in order to pay for local services like schools, libraries, and refuse collection. The amount you pay depends on the value of the property.Read more about council Tax in our glossary page.
- Band: TBC
- PARKINGDetails of how and where vehicles can be parked, and any associated costs.Read more about parking in our glossary page.
- Yes
- GARDENA property has access to an outdoor space, which could be private or shared.
- Yes
- ACCESSIBILITYHow a property has been adapted to meet the needs of vulnerable or disabled individuals.Read more about accessibility in our glossary page.
- Ask agent
Willoughby Close, Headley Park, BRISTOL, BS13
Add an important place to see how long it'd take to get there from our property listings.
__mins driving to your place
Notes
Staying secure when looking for property
Ensure you're up to date with our latest advice on how to avoid fraud or scams when looking for property online.
Visit our security centre to find out moreDisclaimer - Property reference SOU210585_L. The information displayed about this property comprises a property advertisement. Rightmove.co.uk makes no warranty as to the accuracy or completeness of the advertisement or any linked or associated information, and Rightmove has no control over the content. This property advertisement does not constitute property particulars. The information is provided and maintained by CJ Hole, Southville. Please contact the selling agent or developer directly to obtain any information which may be available under the terms of The Energy Performance of Buildings (Certificates and Inspections) (England and Wales) Regulations 2007 or the Home Report if in relation to a residential property in Scotland.
*This is the average speed from the provider with the fastest broadband package available at this postcode. The average speed displayed is based on the download speeds of at least 50% of customers at peak time (8pm to 10pm). Fibre/cable services at the postcode are subject to availability and may differ between properties within a postcode. Speeds can be affected by a range of technical and environmental factors. The speed at the property may be lower than that listed above. You can check the estimated speed and confirm availability to a property prior to purchasing on the broadband provider's website. Providers may increase charges. The information is provided and maintained by Decision Technologies Limited. **This is indicative only and based on a 2-person household with multiple devices and simultaneous usage. Broadband performance is affected by multiple factors including number of occupants and devices, simultaneous usage, router range etc. For more information speak to your broadband provider.
Map data ©OpenStreetMap contributors.







