Land lying to the South East of High Street, Wednesfield, Wolverhampton WV11 1SZ
- PROPERTY TYPE
Mixed Use
- SIZE
Ask agent
Key features
- Auction: 27.11.2025 09:00
- 25/00342/OUT planning for the creation of a mixed use scheme
- Four apartments and two commercial units
- Central location
- EPC Rating: N/A
Description
For sale on 27 November 2025
Our national property auction will be broadcast online with live auctioneers. To bid by proxy, online, or by phone, please submit your registration form no later than 5pm the day before the auction.
The auction will commence at 09:00.
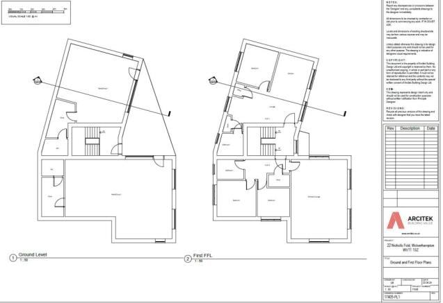
A freehold parcel of land located to the rear of 20 High Street, Wednesfield, and is accessed along Nicholls Fold.
The site benefits from planning permission for the creation of a mixed use development comprising of retail shops to the ground floor, 2 x two bedroomed and 2 x one bedroomed apartments at first and second floor. The site is currently used for car parking owing to the the proximity to the High Street.
Interested parties are advised to inspect the legal pack and the City Of Wolverhampton council planning portal 25/00342/OUT.
Draft Sales Details These sales details are awaiting vendor approval.
Tenure: Freehold
EPC Rating: N/A
Terms:
Auction Details:
The sale of this property will take place on the stated date by way of Auction Event and is being sold under an Unconditional sale type.
Binding contracts of sale will be exchanged at the point of sale.
All sales are subject to SDL Property Auctions Buyers Terms. Properties located in Scotland will be subject to applicable Scottish law.
Auction Deposit and Fees:
The following deposits and non- refundable auctioneers fees apply:
• 5% deposit (subject to a minimum of £5,000)
• Buyers Fee of 3.6% of the purchase price (subject to a minimum of £3,000 inc. VAT).
The Buyers Fee does not contribute to the purchase price, however it will be taken into account when calculating the Stamp Duty Land Tax for the property (known as Land and Buildings Transaction Tax for properties located in Scotland), because it forms part of the chargeable consideration for the property.
There may be additional fees listed in the Special Conditions of Sale, which will be available to view within the Legal Pack. You must read the Legal Pack carefully before bidding.
Additional Information:
For full details about all auction methods and sale types please refer to the Auction Conduct Guide which can be viewed on the SDL Property Auctions home page.
This guide includes details on the auction registration process, your payment obligations and how to view the Legal Pack (and any applicable Home Report for residential Scottish properties).
Guide Price & Reserve Price:
Each property sold is subject to a Reserve Price. The Reserve Price will be within + or - 10% of the Guide Price. The Guide Price is issued solely as a guide so that a buyer can consider whether or not to pursue their interest. A full definition can be found within the Buyers Terms.
Land lying to the South East of High Street, Wednesfield, Wolverhampton WV11 1SZ
NEAREST STATIONS
Distances are straight line measurements from the centre of the postcode- Wolverhampton Station1.8 miles
- The Royal Tram Stop1.9 miles
- Priestfield Tram Stop2.0 miles
Notes
Disclaimer - Property reference 202510201412sq_pzh1. The information displayed about this property comprises a property advertisement. Rightmove.co.uk makes no warranty as to the accuracy or completeness of the advertisement or any linked or associated information, and Rightmove has no control over the content. This property advertisement does not constitute property particulars. The information is provided and maintained by SDL Property Auctions, Nationwide. Please contact the selling agent or developer directly to obtain any information which may be available under the terms of The Energy Performance of Buildings (Certificates and Inspections) (England and Wales) Regulations 2007 or the Home Report if in relation to a residential property in Scotland.
Auction Fees: The purchase of this property may include associated fees not listed here, as it is to be sold via auction. To find out more about the fees associated with this property please call SDL Property Auctions, Nationwide on 08000 465454.
*Guide Price: An indication of a seller's minimum expectation at auction and given as a Guide Price or a range of Guide Prices. This is not necessarily the figure a property will sell for and is subject to change prior to the auction.
Reserve Price: Each auction property will be subject to a Reserve Price below which the property cannot be sold at auction. Normally the Reserve Price will be set within the range of Guide Prices or no more than 10% above a single Guide Price.
Map data ©OpenStreetMap contributors.




