The Broadway, Loughton
- SIZE AVAILABLE
11,400 sq ft
1,059 sq m
- SECTOR
Shop to lease
Lease details
- Lease available date:
- Ask agent
Key features
- Lock-up shop with ancillary upper parts
- Triple-fronted
- Totalling approx 11,400 sq ft
- Includes rear access/parking
- Broadway location
Description
Location - Situated prominently on Debden Broadway, in Loughton, Essex, which comprises a variety of local businesses and multiple occupiers such as Iceland, Greggs and Superdrug. The premises are situated less than 0.3 miles (482 ft) from Debden Tube Station which is on the Central Line and provides a regular service into Central London. Access to the motorway network is via Junction 5 (southbound only) of the M11 at Debden and Junction 26 of the M25 at Waltham Abbey.
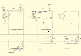
Description - Comprising a lock-up shop which was occupied by The Original Factory Shop for many years. To the rear of the shop is a yard which provides parking and access to the back of the shop. The premises would be suitable for a variety of uses and are more particularly described as follows:
Ground floor:
Sales area: 5,563 sq ft (516.9 sq m).
Office: 252 sq ft (23.4 sq m).
First floor:
Ancillary: 4,874 sq ft (452.8 sq m).
Second floor:
Staff room: 432 sq ft (40.1 sq m).
Kitchenette: 176 sq ft (16.4 sq m).
Ancillary: 103 sq ft (9.6 sq m).
Total: 11,400 sq ft (1,059.1 sq m).
Staff & customer toilet facilities available.
All measurements quoted are approximate only and on the basis of Net Internal Area.
Terms - Available on a new full repairing and insuring lease, on terms to be agreed, at a rent of £76,000 per annum.
Business Rates - Epping Forest District Council have informed us of the following:
2023 Rateable Value: £47,000
2025/26 UBR: 0.499 P/£
2025/26 Rates Payable: £23,453
Interested are advised to confirm current rate liability with the Local Authority.
Legal Costs - To be met by the ingoing tenant.
Viewings - Strictly via agents Clarke Hillyer, tel .
Epc - The premises have an Energy Performance Certificate rating of C.
Energy Performance Certificates
EE RatingBrochures
The Broadway, Loughton
NEAREST STATIONS
Distances are straight line measurements from the centre of the postcode- Debden Station0.2 miles
- Loughton Station1.3 miles
- Theydon Bois Station1.7 miles
Notes
Disclaimer - Property reference 33653334. The information displayed about this property comprises a property advertisement. Rightmove.co.uk makes no warranty as to the accuracy or completeness of the advertisement or any linked or associated information, and Rightmove has no control over the content. This property advertisement does not constitute property particulars. The information is provided and maintained by Clarke Hillyer Limited, Loughton. Please contact the selling agent or developer directly to obtain any information which may be available under the terms of The Energy Performance of Buildings (Certificates and Inspections) (England and Wales) Regulations 2007 or the Home Report if in relation to a residential property in Scotland.
Map data ©OpenStreetMap contributors.





