
Buckby, Milton Keynes

- PROPERTY TYPE
Terraced
- BEDROOMS
3
- BATHROOMS
2
- SIZE
Ask agent
- TENUREDescribes how you own a property. There are different types of tenure - freehold, leasehold, and commonhold.Read more about tenure in our glossary page.
Freehold
Key features
- Recently refurbished throughout with brand new carpets
- Spacious three-bedroom terraced home offering excellent living space
- Modern kitchen and updated bathroom
- Private garden and covered car port for off-road parking
- Prime central Milton Keynes location near MK Hospital and city centre
- Ideal first-time buy or investment opportunity
Description
The property boasts generously proportioned living spaces, including a bright and airy lounge ideal for family life and entertaining, alongside a modern fitted kitchen with plenty of storage and workspace. Upstairs, you’ll find three well-sized bedrooms, offering ample flexibility for families, guests, or a home office setup. The contemporary bathroom has been updated to a high standard, complementing the overall sense of comfort and practicality that runs throughout the home.
Outside, the property benefits from a good-sized private garden, perfect for summer gatherings, play space, or simply relaxing outdoors. There’s also a covered car port providing off-road parking – a real bonus in this central location.
Tinkers Bridge is a highly convenient residential area known for its community feel and outstanding accessibility. You’re just a short distance from Milton Keynes University Hospital, Central Milton Keynes shopping and business district, and the MK1 Retail and Leisure Park with its restaurants, cinema, and stadium. Excellent transport links make commuting easy, with nearby road connections to the M1 and A5, and Milton Keynes Central Station offering fast rail services to London and beyond. The area also enjoys green spaces, play parks, and picturesque canal walks, making it ideal for families and professionals alike.
This well-presented home offers an exceptional balance of value, location, and space—a truly smart purchase for anyone looking to secure a home or investment in one of Milton Keynes’ most accessible central neighbourhoods.
Please note: this property is non-standard construction
Click here for our virtual tour link ;
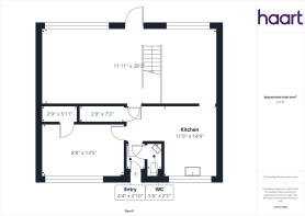
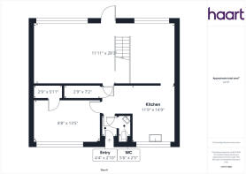
Separate WC
Kitchen
Lounge/Diner
Store Room
Bedroom
Bedroom Two
Bedroom Three
Bathroom
Disclaimer
haart Estate Agents also offer a professional, ARLA accredited Lettings and Management Service. If you are considering renting your property in order to purchase, are looking at buy to let or would like a free review of your current portfolio then please call the Lettings Branch Manager on the number shown above.
haart Estate Agents is the seller's agent for this property. Your conveyancer is legally responsible for ensuring any purchase agreement fully protects your position. We make detailed enquiries of the seller to ensure the information provided is as accurate as possible. Please inform us if you become aware of any information being inaccurate.
Brochures
Material InformationBrochure- COUNCIL TAXA payment made to your local authority in order to pay for local services like schools, libraries, and refuse collection. The amount you pay depends on the value of the property.Read more about council Tax in our glossary page.
- Ask agent
- PARKINGDetails of how and where vehicles can be parked, and any associated costs.Read more about parking in our glossary page.
- Yes
- GARDENA property has access to an outdoor space, which could be private or shared.
- Yes
- ACCESSIBILITYHow a property has been adapted to meet the needs of vulnerable or disabled individuals.Read more about accessibility in our glossary page.
- Ask agent
Buckby, Milton Keynes
Add an important place to see how long it'd take to get there from our property listings.
__mins driving to your place
Get an instant, personalised result:
- Show sellers you’re serious
- Secure viewings faster with agents
- No impact on your credit score
Your mortgage
Notes
Staying secure when looking for property
Ensure you're up to date with our latest advice on how to avoid fraud or scams when looking for property online.
Visit our security centre to find out moreDisclaimer - Property reference 0179_HRT017917819. The information displayed about this property comprises a property advertisement. Rightmove.co.uk makes no warranty as to the accuracy or completeness of the advertisement or any linked or associated information, and Rightmove has no control over the content. This property advertisement does not constitute property particulars. The information is provided and maintained by haart, Milton Keynes. Please contact the selling agent or developer directly to obtain any information which may be available under the terms of The Energy Performance of Buildings (Certificates and Inspections) (England and Wales) Regulations 2007 or the Home Report if in relation to a residential property in Scotland.
*This is the average speed from the provider with the fastest broadband package available at this postcode. The average speed displayed is based on the download speeds of at least 50% of customers at peak time (8pm to 10pm). Fibre/cable services at the postcode are subject to availability and may differ between properties within a postcode. Speeds can be affected by a range of technical and environmental factors. The speed at the property may be lower than that listed above. You can check the estimated speed and confirm availability to a property prior to purchasing on the broadband provider's website. Providers may increase charges. The information is provided and maintained by Decision Technologies Limited. **This is indicative only and based on a 2-person household with multiple devices and simultaneous usage. Broadband performance is affected by multiple factors including number of occupants and devices, simultaneous usage, router range etc. For more information speak to your broadband provider.
Map data ©OpenStreetMap contributors.







