Barn conversion for sale
Barn Conversion Opportunity. Mount Castle Lane, Lenham

- PROPERTY TYPE
Barn Conversion
- SIZE
Ask agent
- TENUREDescribes how you own a property. There are different types of tenure - freehold, leasehold, and commonhold.Read more about tenure in our glossary page.
Freehold
Key features
- £400,000 - £450,000 Guide Price
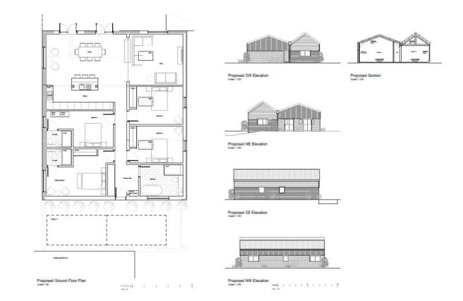
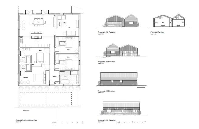
- Substantial Barn Conversion Opportunity with Prior Planning Granted
- Designs to Create a Single Storey, Four-Bedroom Attached Residence
- In-Excess of Two Acres of Sprawling Grounds
- Idyllic, Rural Hamlet Setting
- Detached Four Bedroom Cottage with Two-Bedroom Annex is Available. Call For More Details
- Excellent Road and Rail Networks
- Highly Regarded Schooling Options
Description
Fine & Country are delighted to present Mount Castle Barn, with Prior Approval Granted and with designs for a stunning single-storey, four-bedroom attached barn conversion, set within over two acres of private grounds. Tucked away in a tranquil hamlet at the end of Mount Castle Lane, the property will enjoy far-reaching countryside views and an exceptional sense of space. This represents an inspiring opportunity to create a bespoke contemporary residence in a truly peaceful rural setting.
The barn presents an ideal opportunity for those wishing to design and create their own home within an established and characterful setting. Its single-storey design lends itself beautifully to bright, open-plan living, featuring generous proportions and a seamless connection to the surrounding landscape.
Nestled at the foot of the Kentish North Downs, the location combines rural tranquility with exceptional accessibility. The nearby villages of Lenham and Charing provide everyday amenities and mainline rail connections, while Ashford International, just over ten miles away, offers high-speed services to London.
Please note, the adjacent Mount Castle Cottage, a four bedroom detached residence with a two-bedrooms annex, set in approximately one acre of grounds, can be purchased with Mount Castle Barn or separately. Please contact Fine & Country for further details.
Brochures
Barn Conversion Opportunity. Mount Castle Lane, Le- COUNCIL TAXA payment made to your local authority in order to pay for local services like schools, libraries, and refuse collection. The amount you pay depends on the value of the property.Read more about council Tax in our glossary page.
- Ask agent
- PARKINGDetails of how and where vehicles can be parked, and any associated costs.Read more about parking in our glossary page.
- Ask agent
- GARDENA property has access to an outdoor space, which could be private or shared.
- Yes
- ACCESSIBILITYHow a property has been adapted to meet the needs of vulnerable or disabled individuals.Read more about accessibility in our glossary page.
- Ask agent
Energy performance certificate - ask agent
Barn Conversion Opportunity. Mount Castle Lane, Lenham
Add an important place to see how long it'd take to get there from our property listings.
__mins driving to your place
Get an instant, personalised result:
- Show sellers you’re serious
- Secure viewings faster with agents
- No impact on your credit score
Your mortgage
Notes
Staying secure when looking for property
Ensure you're up to date with our latest advice on how to avoid fraud or scams when looking for property online.
Visit our security centre to find out moreDisclaimer - Property reference 34284492. The information displayed about this property comprises a property advertisement. Rightmove.co.uk makes no warranty as to the accuracy or completeness of the advertisement or any linked or associated information, and Rightmove has no control over the content. This property advertisement does not constitute property particulars. The information is provided and maintained by Fine & Country, Maidstone, Malling & The Weald. Please contact the selling agent or developer directly to obtain any information which may be available under the terms of The Energy Performance of Buildings (Certificates and Inspections) (England and Wales) Regulations 2007 or the Home Report if in relation to a residential property in Scotland.
*This is the average speed from the provider with the fastest broadband package available at this postcode. The average speed displayed is based on the download speeds of at least 50% of customers at peak time (8pm to 10pm). Fibre/cable services at the postcode are subject to availability and may differ between properties within a postcode. Speeds can be affected by a range of technical and environmental factors. The speed at the property may be lower than that listed above. You can check the estimated speed and confirm availability to a property prior to purchasing on the broadband provider's website. Providers may increase charges. The information is provided and maintained by Decision Technologies Limited. **This is indicative only and based on a 2-person household with multiple devices and simultaneous usage. Broadband performance is affected by multiple factors including number of occupants and devices, simultaneous usage, router range etc. For more information speak to your broadband provider.
Map data ©OpenStreetMap contributors.




