Victoria Road, Portslade, Brighton

- PROPERTY TYPE
Terraced
- BEDROOMS
3
- BATHROOMS
1
- SIZE
Ask agent
- TENUREDescribes how you own a property. There are different types of tenure - freehold, leasehold, and commonhold.Read more about tenure in our glossary page.
Freehold
Key features
- Three bedrooms plus additional loft room
- Separate living and dining rooms
- Kitchen with utility area and sun room
- South facing rear garden
- Popular location opposite Victoria Park
- In need of modernisation throughout
Description
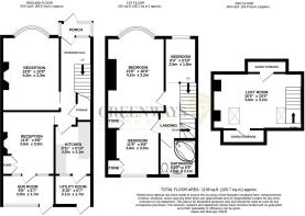
Porch - 1.78m x 0.79m (5'10 x 2'7 ) - Enclosed entrance porch with UPVC double glazed windows and door, leading through to the main hallway.
Entrance Hall - 4.83m x 1.80m (15'10 x 5'11) - Hallway with doors to all ground floor rooms, wood front door with glazed side window, and an understairs storage cupboard.
Living Room - 4.17m x 3.25m (13'8 x 10'8) - Bright and spacious room with a large double glazed bay window overlooking Victoria Road and the park opposite. Feature fireplace and radiator.
Dining Room - 3.58m x 2.95m (11'9 x 9'8) - Period-style fireplace, radiator, and access through to the sun room via glazed doors and windows.
Sun Room - 2.95m x 1.70m (9'8 x 5'7) - Light-filled space with window and door opening onto the rear garden
Kitchen - 2.54m x 2.11m (8'4 x 6'11) - Fitted with a range of wall and base units, work surfaces and sink unit, with window to the side and door leading through to the utility area.
Utility Area - 2.29m x 1.70m (7'6 x 5'7) - Practical space for laundry and storage, with door providing access to the rear garden.
Landing - Spacious landing area giving access to all first-floor rooms.
Bedroom One - 4.24m x 3.28m (13'11 x 10'9) - Generous double bedroom with large bay window to the front enjoying views over Victoria Road and the park. Feature fireplace and radiator.
Bedroom Two - 3.58m x 2.95m (11'9 x 9'8) - Good-sized double bedroom with southerly aspect window overlooking the rear garden. Radiator.
Bedroom Three/Study - 2.57m x 1.85m (8'5 x 6'1) - Single bedroom or ideal study with window overlooking the front and staircase leading to the upper floor.
Bathroom - 2.06m x 1.93m (6'9 x 6'4) - Comprising a corner bath, wash basin, WC, and window to the rear.
Loft Area - 5.18m x 3.10m (17 x 10'2) - Converted loft room with two south-facing Velux windows and eaves storage cupboards.
Rear Garden - 20.73m x 5.18m (68' x 17' ) - A delightful south-facing rear garden with both decked and paved seating areas, fenced borders, and plenty of space for planting or entertaining.
Front Drive - 6.30m x 5.00m max (20'8 x 16'5 max) - Block-paved driveway providing off-road parking for two vehicles and access to the main entrance.
Other Information - Tenure: Freehold
Parking: Driveway and On Street
Local Authority: Brighton and Hove
Council Tax Band: C
Brochures
Victoria Road, Portslade, BrightonBrochure- COUNCIL TAXA payment made to your local authority in order to pay for local services like schools, libraries, and refuse collection. The amount you pay depends on the value of the property.Read more about council Tax in our glossary page.
- Band: C
- PARKINGDetails of how and where vehicles can be parked, and any associated costs.Read more about parking in our glossary page.
- Driveway
- GARDENA property has access to an outdoor space, which could be private or shared.
- Yes
- ACCESSIBILITYHow a property has been adapted to meet the needs of vulnerable or disabled individuals.Read more about accessibility in our glossary page.
- Ask agent
Energy performance certificate - ask agent
Victoria Road, Portslade, Brighton
Add an important place to see how long it'd take to get there from our property listings.
__mins driving to your place
Get an instant, personalised result:
- Show sellers you’re serious
- Secure viewings faster with agents
- No impact on your credit score
Your mortgage
Notes
Staying secure when looking for property
Ensure you're up to date with our latest advice on how to avoid fraud or scams when looking for property online.
Visit our security centre to find out moreDisclaimer - Property reference 34284880. The information displayed about this property comprises a property advertisement. Rightmove.co.uk makes no warranty as to the accuracy or completeness of the advertisement or any linked or associated information, and Rightmove has no control over the content. This property advertisement does not constitute property particulars. The information is provided and maintained by Greenways Property, Shoreham-by-Sea. Please contact the selling agent or developer directly to obtain any information which may be available under the terms of The Energy Performance of Buildings (Certificates and Inspections) (England and Wales) Regulations 2007 or the Home Report if in relation to a residential property in Scotland.
*This is the average speed from the provider with the fastest broadband package available at this postcode. The average speed displayed is based on the download speeds of at least 50% of customers at peak time (8pm to 10pm). Fibre/cable services at the postcode are subject to availability and may differ between properties within a postcode. Speeds can be affected by a range of technical and environmental factors. The speed at the property may be lower than that listed above. You can check the estimated speed and confirm availability to a property prior to purchasing on the broadband provider's website. Providers may increase charges. The information is provided and maintained by Decision Technologies Limited. **This is indicative only and based on a 2-person household with multiple devices and simultaneous usage. Broadband performance is affected by multiple factors including number of occupants and devices, simultaneous usage, router range etc. For more information speak to your broadband provider.
Map data ©OpenStreetMap contributors.





