Office to lease
9 Tulloch Street, Dingwall, IV15 9JZ
- SIZE
Ask agent
- SECTOR
Office to lease
Lease details
- Lease available date:
- Ask agent
Key features
- Central location within town centre
- Open Plan layout suitable for a range of occupiers
- Available to let from £900 per annum (May Sell)
- NIA 198.3 sq m (2135 sq ft)
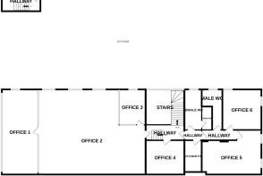
Description
The subjects comprise a first-floor office with independent access from ground floor level. Internally the offices are laid out with a large open plan space to the front with cellular office spaces and ancillary kitchenette/toilet facilities to the rear.
Brochures
9 Tulloch Street, Dingwall, IV15 9JZ
NEAREST STATIONS
Distances are straight line measurements from the centre of the postcode- Dingwall Station0.2 miles
- Conon Bridge Station2.4 miles
Notes
Disclaimer - Property reference 13740. The information displayed about this property comprises a property advertisement. Rightmove.co.uk makes no warranty as to the accuracy or completeness of the advertisement or any linked or associated information, and Rightmove has no control over the content. This property advertisement does not constitute property particulars. The information is provided and maintained by ALLIED SURVEYORS SCOTLAND, Inverness. Please contact the selling agent or developer directly to obtain any information which may be available under the terms of The Energy Performance of Buildings (Certificates and Inspections) (England and Wales) Regulations 2007 or the Home Report if in relation to a residential property in Scotland.
Map data ©OpenStreetMap contributors.





