Light industrial facility to lease
New Industrial Units, Galgate Mill, Chapel Lane, Galgate, Lancaster, LA2 0PR
- SIZE AVAILABLE
906-2,061 sq ft
84-191 sq m
- SECTOR
Light industrial facility to lease
Lease details
- Lease available date:
- Now
Key features
- Brand New Industrial Units
- Sizes Ranging from 906 Sq Ft - 2,061 Sq Ft
- Much Sought After Location
- Excellent Access to Junction 33 M6 Motorway
- Completion Due Spring 2026
- Ideal for both Start up & Established Businesses
- Landlord Seeking 5 Year Lease Terms
- All Prices are Exclusive but Liable to VAT
- Early Reservation Strongly Recommended
- Close Proximity to Lancaster University
Description
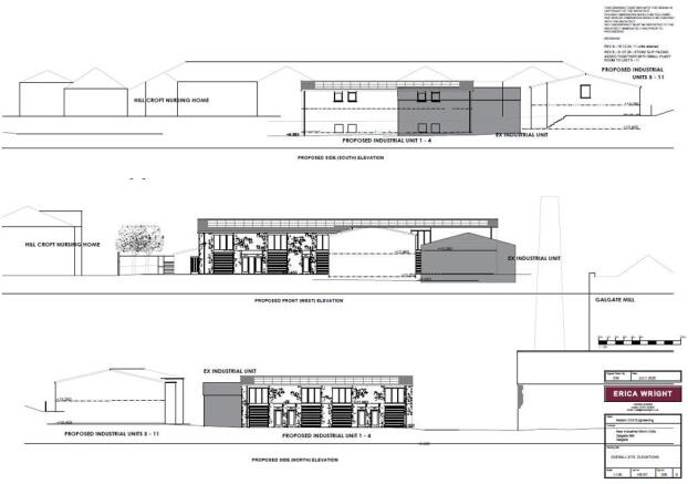
The development is situated in Galgate to the rear of Galgate Mill on an established industrial site of varying uses.
This location is absolutely ideal for any businesses associated with or wanting to be associated with Lancaster University being only a short distance away. Also well placed for access to the M6 motorway network.
Description
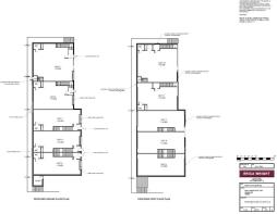
TO LET - Brand new industrial units in course of construction by well known local construction company Askam Civil Engineering Limited. Range of different sizes from 906 square feet to 2,061 square feet offering great potential for businesses requiring a new start or existing businesses requiring expansion space. Erection of 9 units in total in 2 blocks with class classification B2/E(g) situated on an established industrial estate to the rear of Galgate Mill itself.
Ideally placed for access to Lancaster University, the M6 motorway network and Lancaster city centre.
Accommodation Text
Range of different sized units from 906 square feet to 2,061 square feet with several units around 1,400 square feet.
These units are due for completion in Spring 2026 with the possibility of some units being available as early as January 2026 but entirely dependent on the weather and the supply of utilities.
Units 1 to 4 each 906 square feet and each asking rent £12,500 per annum exclusive plus vat.
Unit 5 is 2,061 square feet with asking rent £24,500 per annum exclusive plus vat.
Unit 6 is 1,494 square feet with asking rent £20,000 per annum exclusive plus vat.
Unit 7 is 1,389 square feet with asking rent £19,500 per annum exclusive plus vat.
Unit 8 is 1,417 square feet with asking rent £20,000 per annum exclusive plus vat.
Unit 9 is 1,444 square feet with asking rent £20,000 per annum exclusive plus vat.
Services
Mains electricity, water and drainage will be connected.
Rateable Value
Not yet assessed.
Use Class
Industrial Units.
Service Charge
There will be a Service Charge to cover general maintenance of the site and insurance of the buildings.
It will be the tenant's own responsibility to insure any contents of their building and cover any public liability insurance.
Lease Terms
The landlord will be looking for minimum 5 year lease.
VAT
The premises will be elected for VAT so VAT will be payable in addition to the rent.
Legal Costs
Each party to be responsible for their own legal costs.
Brochures
New Industrial Units, Galgate Mill, Chapel Lane, Galgate, Lancaster, LA2 0PR
NEAREST STATIONS
Distances are straight line measurements from the centre of the postcode- Lancaster Station3.8 miles
Notes
Disclaimer - Property reference 18198497LH. The information displayed about this property comprises a property advertisement. Rightmove.co.uk makes no warranty as to the accuracy or completeness of the advertisement or any linked or associated information, and Rightmove has no control over the content. This property advertisement does not constitute property particulars. The information is provided and maintained by Fisher Wrathall Commercial, Lancaster. Please contact the selling agent or developer directly to obtain any information which may be available under the terms of The Energy Performance of Buildings (Certificates and Inspections) (England and Wales) Regulations 2007 or the Home Report if in relation to a residential property in Scotland.
Map data ©OpenStreetMap contributors.






