
Westermains Avenue, Kirkintilloch, G66

- PROPERTY TYPE
House
- BEDROOMS
4
- BATHROOMS
2
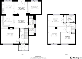
- SIZE
1,475 sq ft
137 sq m
- TENUREDescribes how you own a property. There are different types of tenure - freehold, leasehold, and commonhold.Read more about tenure in our glossary page.
Freehold
Description
This fantastic semi-detached villa, which has been tastefully extended, is located on the ever-popular Westermains Avenue, a highly regarded residential address within the catchment area for local schooling, including Lenzie Academy and nearby St Ninian’s. The property is also conveniently positioned close to a range of local amenities and offers excellent family-sized accommodation.
Internally, the property is immaculately maintained and the accommodation extends to an entrance hallway with staircase off to the upper landing. The front-facing lounge features a fireplace and a large window to the front, making this a bright and airy room. There is a superb living/dining room with patio doors leading out to the sunny rear gardens. The dining area flows through to the fitted kitchen, which is equipped with wall and floor-mounted units housing a range of integrated appliances. The kitchen also provides a further dining space, ideal for casual dining. Off the second living room is a fantastic home office that could comfortably be used as a fourth bedroom if required. Completing the ground floor is a modern fitted shower room and a handy utility space.
The upper landing provides access to three well-proportioned bedrooms, one of which benefits from integrated storage. The accommodation is completed by a three-piece family bathroom with white suite.
The specification of the property includes gas central heating and double glazing. Externally, there are private gardens to both the front and rear. The rear garden features a level lawn, gravelled sections, a raised deck, and a fantastic summer house. To the front, a driveway provides off-street parking.
Westermains Avenue is a highly regarded and sought-after address in Kirkintilloch and is conveniently placed for easy access to a host of amenities and nearby Cowgate, including shops, supermarkets, bars, and restaurants. In addition, there are ample recreational facilities close by, including several golf courses, a rugby club, and tennis courts. The property lies within the school catchment area for Lenzie Academy. Nearby Lenzie train station provides a twice-hourly service to and from Glasgow Queen Street, and there are excellent road links close by, including the recently opened Lenzie Bypass, which allows swift access to Glasgow City Centre and the Central Belt motorway network.
EPC Rating: C
- COUNCIL TAXA payment made to your local authority in order to pay for local services like schools, libraries, and refuse collection. The amount you pay depends on the value of the property.Read more about council Tax in our glossary page.
- Band: E
- PARKINGDetails of how and where vehicles can be parked, and any associated costs.Read more about parking in our glossary page.
- Yes
- GARDENA property has access to an outdoor space, which could be private or shared.
- Private garden
- ACCESSIBILITYHow a property has been adapted to meet the needs of vulnerable or disabled individuals.Read more about accessibility in our glossary page.
- Ask agent
Westermains Avenue, Kirkintilloch, G66
Add an important place to see how long it'd take to get there from our property listings.
__mins driving to your place
Get an instant, personalised result:
- Show sellers you’re serious
- Secure viewings faster with agents
- No impact on your credit score
Your mortgage
Notes
Staying secure when looking for property
Ensure you're up to date with our latest advice on how to avoid fraud or scams when looking for property online.
Visit our security centre to find out moreDisclaimer - Property reference a0e5b850-7e08-46ea-b0aa-54527f6f4b12. The information displayed about this property comprises a property advertisement. Rightmove.co.uk makes no warranty as to the accuracy or completeness of the advertisement or any linked or associated information, and Rightmove has no control over the content. This property advertisement does not constitute property particulars. The information is provided and maintained by Clyde Property, Bearsden. Please contact the selling agent or developer directly to obtain any information which may be available under the terms of The Energy Performance of Buildings (Certificates and Inspections) (England and Wales) Regulations 2007 or the Home Report if in relation to a residential property in Scotland.
*This is the average speed from the provider with the fastest broadband package available at this postcode. The average speed displayed is based on the download speeds of at least 50% of customers at peak time (8pm to 10pm). Fibre/cable services at the postcode are subject to availability and may differ between properties within a postcode. Speeds can be affected by a range of technical and environmental factors. The speed at the property may be lower than that listed above. You can check the estimated speed and confirm availability to a property prior to purchasing on the broadband provider's website. Providers may increase charges. The information is provided and maintained by Decision Technologies Limited. **This is indicative only and based on a 2-person household with multiple devices and simultaneous usage. Broadband performance is affected by multiple factors including number of occupants and devices, simultaneous usage, router range etc. For more information speak to your broadband provider.
Map data ©OpenStreetMap contributors.








