
Primrose Lane, Newcastle upon Tyne, Tyne and Wear, NE13 9ET

- PROPERTY TYPE
Detached
- BEDROOMS
4
- SIZE
Ask developer
- TENUREDescribes how you own a property. There are different types of tenure - freehold, leasehold, and commonhold.Read more about tenure in our glossary page.
Freehold
Key features
- Open plan kitchen/dining room with bi-fold doors
- En suite to bedroom 1
- Separate study
- Front-aspect living room
- Integral garage
- Energy efficient
- Downstairs WC
- Handy storage cupboards
Description
Four bedrooms, two bathrooms and a study are a good start for a new family home. The Cullen adds an integral garage, a kitchen/dining room with bi-fold doors to the garden and a peaceful separate living room to the living accommodation. This appealing new home gives you work-at-home flexibility, an optional guest bedroom, or simply space for the family to grow into.
Additional Information
- Tenure: Freehold
- Council tax band: Not made available by local authority until post-occupation
Parking - Single Garage
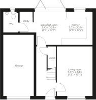
Room Dimensions
- Kitchen - 3.03 x 3.23 metre
- Breakfast room - 2.43 x 3.23 metre
- Living room - 3.47 x 4.84 metre
- Bedroom 1 - 3.47 x 4.46 metre
- Bedroom 2 - 4.02 x 2.81 metre
- Bedroom 3 - 3.13 x 3.67 metre
- Bedroom 4 - 2.76 x 3.43 metre
- Study - 2.6 x 2.34 metre
- COUNCIL TAXA payment made to your local authority in order to pay for local services like schools, libraries, and refuse collection. The amount you pay depends on the value of the property.Read more about council Tax in our glossary page.
- Ask developer
- PARKINGDetails of how and where vehicles can be parked, and any associated costs.Read more about parking in our glossary page.
- Yes
- GARDENA property has access to an outdoor space, which could be private or shared.
- Yes
- ACCESSIBILITYHow a property has been adapted to meet the needs of vulnerable or disabled individuals.Read more about accessibility in our glossary page.
- Ask developer
Energy performance certificate - ask developer
- Choice of 5 bedroom homes
- Great community atmosphere
- Located in the sought-after Newcastle Gresat Park
- Ideal balance between countryside tranquillity and busy city living
Primrose Lane, Newcastle upon Tyne, Tyne and Wear, NE13 9ET
Add an important place to see how long it'd take to get there from our property listings.
__mins driving to your place
Get an instant, personalised result:
- Show sellers you’re serious
- Secure viewings faster with agents
- No impact on your credit score
About Charles Church
Welcome to The Woodlands – modern new houses for sale, Newcastle
Discover The Woodlands, a collection of four and five-bedroom Charles Church homes in a highly sought-after setting. Designed for modern living, these homes combine thoughtful layouts with high-quality finishes, all within a location that perfectly balances rural tranquillity and vibrant city life.
Stylish new build homes in Newcastle
Set next to generous open spaces, this development offers a peaceful, friendly environment to call home. With leafy surroundings and walking routes close by, residents can enjoy a sense of escape while benefiting from easy access to local attractions, retail options and Newcastle’s welcoming, well-established city atmosphere.
New build homes with excellent transport links to Newcastle
The Woodlands offers superb road connections into Newcastle, with the city centre just a short journey away. Its location near major rail routes makes travelling across northern England simple. Nearby public transport links, including buses, trains, and the Metro, ensure convenient access for work, study, and leisure across the region.
Everything you need on your doorstep
Located in a well-connected part of Newcastle, daily essentials are close at hand. From supermarkets, local shops and community facilities, everything you need is within easy reach. Families will enjoy access to nearby schools and established amenities, making day-to-day life simple.
Explore the outdoors in Newcastle
Whether you’re unwinding after a busy day or planning adventures, The Woodlands is perfectly placed for outdoor enjoyment. With open green spaces nearby, Havannah Nature Reserve right on your doorstep and Northumberland National Park just a short drive away, residents can enjoy scenic walking routes, fresh air and views that offer a peaceful break from city living.
Ready to make your move?
To explore our new houses for sale in Newcastle upon Tyne and start your new build journey, speak to one of our friendly sales executives today.
This development offers the following schemes:
- New Build Boost
- Part Exchange
- Home Change
- Own New Rate Reducer
Schemes are available on selected plots only, subject to status, terms and conditions apply. Contact the development for latest information.
Affordability
Notes
Staying secure when looking for property
Ensure you're up to date with our latest advice on how to avoid fraud or scams when looking for property online.
Visit our security centre to find out moreDisclaimer - Property reference 4_466. The information displayed about this property comprises a property advertisement. Rightmove.co.uk makes no warranty as to the accuracy or completeness of the advertisement or any linked or associated information, and Rightmove has no control over the content. This property advertisement does not constitute property particulars. The information is provided and maintained by Charles Church. Please contact the selling agent or developer directly to obtain any information which may be available under the terms of The Energy Performance of Buildings (Certificates and Inspections) (England and Wales) Regulations 2007 or the Home Report if in relation to a residential property in Scotland.
*This is the average speed from the provider with the fastest broadband package available at this postcode. The average speed displayed is based on the download speeds of at least 50% of customers at peak time (8pm to 10pm). Fibre/cable services at the postcode are subject to availability and may differ between properties within a postcode. Speeds can be affected by a range of technical and environmental factors. The speed at the property may be lower than that listed above. You can check the estimated speed and confirm availability to a property prior to purchasing on the broadband provider's website. Providers may increase charges. The information is provided and maintained by Decision Technologies Limited. **This is indicative only and based on a 2-person household with multiple devices and simultaneous usage. Broadband performance is affected by multiple factors including number of occupants and devices, simultaneous usage, router range etc. For more information speak to your broadband provider.
Map data ©OpenStreetMap contributors.






