Main Road, Sproatley, Hull, HU11 4PA

- PROPERTY TYPE
End of Terrace
- BEDROOMS
3
- BATHROOMS
1
- SIZE
Ask agent
- TENUREDescribes how you own a property. There are different types of tenure - freehold, leasehold, and commonhold.Read more about tenure in our glossary page.
Freehold
Description
Butchers Cottage is a double-fronted historic character cottage in village of Sproatley. The accommodation briefly comprises Entrance Hall/Reception Room, Sitting Room, Dining Room, Kitchen, Three Bedrooms and Bathroom. Externally, the property benefits from an enclosed courtyard seating area. The property is turn-key ready for a family home or rental property. Viewing is highly recommended. Benefits from gas central heating and double glazing.
Location
Sproatley offers the perfect balance of village living with convenient access to Hull city centre, making it ideal for commuters. Meanwhile, the nearby coastal resorts provide the ultimate weekend escape, allowing you to embrace the best of both worlds: rural charm and coastal adventures!
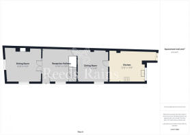
Accommodation
Entrance Hallway / Reception Room - 12'12" x 12'10" (3.96m x 3.92m)
Leading to two reception rooms and staircase to first floor. Window to front. Radiator. Double doors into sitting room.
Sitting Room - 12'10" x 13'1" (3.90m x 4.00m)
Windows to front and side elevations. Feature fireplace with log burner stove. Radiator.
Dining Room - 11'10" x 12'11" (3.60m x 3.94m)
Exposed brick fireplace with imitation gas fuelled stove. Leading to:
Kitchen - 11'8" x 13'6" (3.55m x 4.12m)
Range of shaker-style wall and base units, work surfaces and splashback tiling. Rangemaster cooker with extractor fan above. Window to side. Slate tiling to floor. Plumbing for washing machine and single sink with mixer tap. Storage room. Door to exterior.
First Floor Landing
A central landing leading to three bedrooms and bathroom. Window to rear.
Bedroom 1 - 3.98m x 3.48m to wardrobes
Fitted wardrobes. Windows to front and side. Radiator.
Bedroom 2 - 9'8" x 9'5" (2.95m x 2.86m)
Window to front. Radiator. Storage cupboard housing gas boiler.
Bathroom
Tiled bathroom. Freestanding double-ended bath with waterfall shower over. Victorian-style pedestal wash hand basin with low flush WC. Tiled flooring. Radiator.
Bedroom 3 - 7'7" x 12'11" (2.30m x 3.93m)
Window to front. Fitted wardrobes. Radiator.
Exterior
Courtyard-style seating area with raised decking and fully encloses. Gate to access the front of the property.
Auctioneer Comments
Alternative (Modern) method of Auction meaning - At the fall of the gavel or acceptance of an offer by the Seller, the Buyer will enter an exclusivity agreement with the seller. The buyer shall pay a non-refundable exclusivity fee to the value of 2.5% + VAT of the sales price or £3,500 plus VAT whichever is the greater. This symbolises the start of an exclusivity period of sale which will require an exchange of contracts to take place within 28 days of the buyer's solicitor receiving the contract pack. Completion of the sale must then take place within a further 28 days of the date of exchange of contracts. This is paid to reserve the property to the buyer during the Reservation Period and is paid in addition to the purchase price. This is considered within calculations for Stamp Duty Land Tax.
Full details and terms of exclusivity can be obtained from Auction House Hull & East Yorkshire.
Council Tax
Council Tax Band 'A' Payable to East Riding of Yorkshire Council.
EPC
D.
Services
Mains water, drainage gas and electricity are believed to be connected but have not been tested.
Tenure
Freehold with vacant possession on completion.
Viewing
Strictly by appointment only with the auctioneers on or Reeds Rains on .
Disbursements
An exclusivity agreement of 3% inc. VAT of the purchase price, subject to a minimum of £4200 inc VAT, payable on acceptance of an offer.
Method of Sale
The property will be offered for sale by modern auction method. The auction date will be confirmed when the legal pack has been received. For further legal information relating to this lot, please log on to auctionhouse.co.uk/hullandeastyorkshire.
Conditions of Sale
The property will be sold subject to conditions of sale, copies of which will be available for inspection at the auctioneer’s offices, with the solicitors and on-line at auctionhouse.co.uk/hullandeastyorkshire prior to the date of the auction.
Guide Price
Guides are provided as an indication of each seller's minimum expectation. They are not necessarily figures that a property will sell for and may change at any time prior to the auction. Each property will be offered subject to a Reserve (a figure below which the Auctioneer cannot sell the property during the auction), which we expect will be set within the Guide Range or no more than 10% above a single-figure guide.
Online bidding
If you want to bid on this property, copy and paste the link below into your URL bar or into a Google search, and it will take you to a video that explains the process: youtube.com/watch?v=ImXr4HXR36c
Solicitor
HNW Law, Suite 17, The Cadcam Centre, High Force Road, Riverside Park, Middlesbrough, TS2 1RH, Ref: Rachel Williamson, Tel:
- COUNCIL TAXA payment made to your local authority in order to pay for local services like schools, libraries, and refuse collection. The amount you pay depends on the value of the property.Read more about council Tax in our glossary page.
- Band: A
- PARKINGDetails of how and where vehicles can be parked, and any associated costs.Read more about parking in our glossary page.
- Ask agent
- GARDENA property has access to an outdoor space, which could be private or shared.
- Ask agent
- ACCESSIBILITYHow a property has been adapted to meet the needs of vulnerable or disabled individuals.Read more about accessibility in our glossary page.
- Ask agent
Energy performance certificate - ask agent
Main Road, Sproatley, Hull, HU11 4PA
Add an important place to see how long it'd take to get there from our property listings.
__mins driving to your place
Get an instant, personalised result:
- Show sellers you’re serious
- Secure viewings faster with agents
- No impact on your credit score
Your mortgage
Notes
Staying secure when looking for property
Ensure you're up to date with our latest advice on how to avoid fraud or scams when looking for property online.
Visit our security centre to find out moreDisclaimer - Property reference dah_1189089995. The information displayed about this property comprises a property advertisement. Rightmove.co.uk makes no warranty as to the accuracy or completeness of the advertisement or any linked or associated information, and Rightmove has no control over the content. This property advertisement does not constitute property particulars. The information is provided and maintained by Auction House, Driffield. Please contact the selling agent or developer directly to obtain any information which may be available under the terms of The Energy Performance of Buildings (Certificates and Inspections) (England and Wales) Regulations 2007 or the Home Report if in relation to a residential property in Scotland.
Auction Fees: The purchase of this property may include associated fees not listed here, as it is to be sold via auction. To find out more about the fees associated with this property please call Auction House, Driffield on 01377 310913.
*Guide Price: An indication of a seller's minimum expectation at auction and given as a Guide Price or a range of Guide Prices. This is not necessarily the figure a property will sell for and is subject to change prior to the auction.
Reserve Price: Each auction property will be subject to a Reserve Price below which the property cannot be sold at auction. Normally the Reserve Price will be set within the range of Guide Prices or no more than 10% above a single Guide Price.
*This is the average speed from the provider with the fastest broadband package available at this postcode. The average speed displayed is based on the download speeds of at least 50% of customers at peak time (8pm to 10pm). Fibre/cable services at the postcode are subject to availability and may differ between properties within a postcode. Speeds can be affected by a range of technical and environmental factors. The speed at the property may be lower than that listed above. You can check the estimated speed and confirm availability to a property prior to purchasing on the broadband provider's website. Providers may increase charges. The information is provided and maintained by Decision Technologies Limited. **This is indicative only and based on a 2-person household with multiple devices and simultaneous usage. Broadband performance is affected by multiple factors including number of occupants and devices, simultaneous usage, router range etc. For more information speak to your broadband provider.
Map data ©OpenStreetMap contributors.





