Light industrial facility for sale
Yard at Fishleigh Rock, Umberleigh, Devon, EX37
- SIZE
Ask agent
- SECTOR
Light industrial facility for sale
- USE CLASSUse class orders: B1 Business, B2 General Industrial and B8 Storage and Distribution
B1, B2, B8
Description
LOCATION
The site has easy access onto the A377 which is within 5 miles of Barnstaple, giving access onto the A39 (Atlantic Highway), which gives further access into Cornwall as well as the North Devon area.
The Yard is located to the rear of the Texaco petrol filling station and 1 mile from Umberleigh where there is a railway station, primary school, church and the Rising Sun Inn which overlooks the River Taw.
Barnstaple is the commercial centre of North Devon and is linked directly to the M5 motorway at Junction 27 by the North Devon link road (the A361) which is mainly dual carriageway.
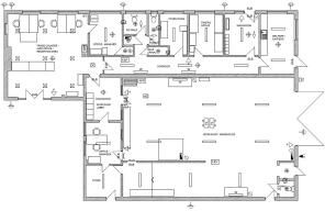
DESCRIPTION
The Yard is accessed via an asphalt driveway next to the Texaco petrol filling station with an adjoining asphalt car park with metal gates with parking for 6/8 vehicles.
At the entrance into the yard is a single storey office building of 25.00m x 5.23m. The office block has been refurbished with uPVC double glazed windows, LED lighting and central heating via a Worcester oil-fired boiler located in Office 1.
Reception of 7.21m x 6.65m with suspended ceiling with lighting panels and reception desk.
Office 1 of 3.62m x 2.85m.
Corridor giving access to further rooms including gents and ladies WC facilities and a store.
Office 2 of 3.60m x 2.38m.
Office 3 of 3.63m x 3.00m with window to rear overlooking the rear yard.
Washroom of 3.63m x 3.01m with uPVC double glazed door leading out onto the rear yard and a stainless-steel double wash hand basin.
Kitchen of 5.23m x 2.07m fitted out with wall and base units with inset stainless-steel sink unit in rolltop work surface. Fire exit leading onto the yard.
Adjoining workshop with a GIA of 18.38m x 10.50m with mono-pitch insulated profile metal clad roof, WC facilities and concrete floor. Warehouse of 15.12m x 10.50m with access via a metal double door with a width of 4.87m and a height of 3.8m. Reznor oil-fired warm air blower. LED strip lights and WC facility. Eaves height maximum of 4.82m and a minimum of 3.71m.
Office 1 of 3.62m x 3.10m interconnecting into the adjoining office block.
Office 2 of 3.63m x 3.09m.
Store of 3.25m x 2.95m.
Detached breeze block industrial unit of 11.84m x 5.52m with power, lighting, concrete floor and skylights providing good natural light. Eaves height of 4.26m max and a minimum of 3.40m. Metal double door with a height 2.50m and width of 2.63m.
The Yard extends to approximately 1.28 acres and is enclosed by palisade fencing with LED lighting and gives access to the warehouses. There is also gated access leading out onto the remainder of the land. In the centre of the yard is a canopy wash down bay with an interceptor.
At the bottom of the site is a further yard space measuring 1.5 acres which is accessed from the concrete yard with palisade gated access which is partially laid to hardcore and is enclosed by hedging and has further potential to be developed for further buildings or to be used as a compound, subject to obtaining necessary consents.
TENURE & POSSESSION
The freehold interest is offered for sale by private treaty at a guide price offers in excess of £300,000. Vacant possession available on completion.
BUSINESS RATES
According to the Valuation Office website the premises are assessed as the following: Rateable Value: £25,750. For verification purposes, interested parties are advised to make their own enquiries.
SERVICES
Mains electricity and water. Private sewerage system. The offices have central heating via an oil-fired boiler and there is a Reznor oil-fired warm air blower within the warehouse adjoining the office block.
Brochures
Yard at Fishleigh Rock, Umberleigh, Devon, EX37
NEAREST STATIONS
Distances are straight line measurements from the centre of the postcode- Chapleton Station1.1 miles
- Umberleigh Station1.3 miles
- Portsmouth Arms Station4.1 miles
Notes
Disclaimer - Property reference FishleighRock. The information displayed about this property comprises a property advertisement. Rightmove.co.uk makes no warranty as to the accuracy or completeness of the advertisement or any linked or associated information, and Rightmove has no control over the content. This property advertisement does not constitute property particulars. The information is provided and maintained by Carter Jonas LLP - Taunton, Taunton. Please contact the selling agent or developer directly to obtain any information which may be available under the terms of The Energy Performance of Buildings (Certificates and Inspections) (England and Wales) Regulations 2007 or the Home Report if in relation to a residential property in Scotland.
Map data ©OpenStreetMap contributors.





