Band Hall, Barn Street, Liskeard PL14 4BL
- SIZE
Ask agent
- SECTOR
Residential development for sale
Key features
- Auction: 27.11.2025 09:00
- Detached former band hall
- Planning permission granted
- Potential investment opportunity
- EPC Rating: G
Description
For sale on 27 November 2025
Our national property auction will be broadcast online with live auctioneers. To bid by proxy, online, or by phone, please submit your registration form no later than 5pm the day before the auction.
The auction will commence at 09:00.
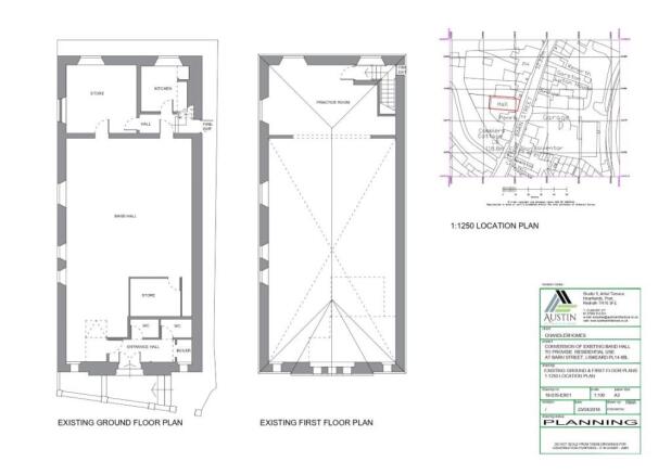
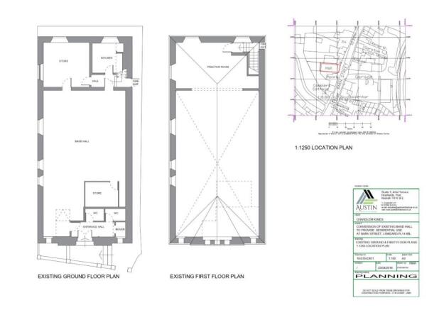
Historic building with planning permission to convert into apartments.
A detached former band hall in Liskeard with planning permission to convert into four apartments. Work on the conversion has started and we have been advised that most of the structural work has been completed, including installation of a first floor and supporting walls.
Details of the approved planning permission and its conditions can be found on the Cornwall Planning Portal using the reference PA20/06535.
A chance to purchase a detached Henry Rice former band hall. The property now has the added benefit of planning permission approved for its conversion into four apartments. There is the possibility to seek approval of adapting the planning permission for more flats within the building given the space on offer.
Accommodation: The accommodation, in brief, mainly consists of the main hall at ground floor level with a separate room to the rear of the building. Stairs rise from the rear hallway area to a mezzanine area, which was formerly used as a practice room, and opening overlooking the main hall.
Outside: Small area to the front, bordered by a low wall and pathway to the front door.
Measurements: Approximately 144 square metres internally (excluding the first-floor mezzanine).
Tenure: Freehold
EPC Rating: G
Terms:
Auction Details:
The sale of this property will take place on the stated date by way of Auction Event and is being sold under and Unconditional sale type.
Binding contracts of sale will be exchanged at the point of sale.
All sales are subject to SDL Property Auctions Buyers Terms. Properties located in Scotland will be subject to applicable Scottish law.
Auction Deposit and Fees:
The following deposits and non- refundable auctioneers fee apply:
• 10% deposit (subject to a minimum of £5,000)
• Buyers Fee of 1.8% of the purchase price (subject to a minimum of £2,400 inc. VAT)
The Buyers Fee does not contribute to the purchase price, however it will be taken into account when calculating the Stamp Duty Land Tax for the property (known as Land and Buildings Transaction Tax for properties located in Scotland), because it forms part of the chargeable consideration for the property.
There may be additional fees listed in the Special Conditions of Sale, which will be available to view within the Legal Pack. You must read the Legal Pack carefully before bidding.
Additional Information:
For full details about all auction methods and sale types please refer to the Auction Conduct Guide which can be viewed on the SDL Property Auctions home page.
This guide includes details on the auction registration process, your payment obligations and how to view the Legal Pack (and any applicable Home Report for residential Scottish properties).
Guide Price & Reserve Price:
Each property sold is subject to a Reserve Price. The Reserve Price will be within + or - 10% of the Guide Price. The Guide Price is issued solely as a guide so that a buyer can consider whether or not to pursue their interest. A full definition can be found within the Buyers Terms.
Band Hall, Barn Street, Liskeard PL14 4BL
NEAREST STATIONS
Distances are straight line measurements from the centre of the postcode- Liskeard Station0.4 miles
- Coombe Station0.9 miles
- St. Keyne Station2.1 miles
Notes
Disclaimer - Property reference 202509111550sq_6ehf. The information displayed about this property comprises a property advertisement. Rightmove.co.uk makes no warranty as to the accuracy or completeness of the advertisement or any linked or associated information, and Rightmove has no control over the content. This property advertisement does not constitute property particulars. The information is provided and maintained by SDL Property Auctions - Commercial, Nationwide. Please contact the selling agent or developer directly to obtain any information which may be available under the terms of The Energy Performance of Buildings (Certificates and Inspections) (England and Wales) Regulations 2007 or the Home Report if in relation to a residential property in Scotland.
Auction Fees: The purchase of this property may include associated fees not listed here, as it is to be sold via auction. To find out more about the fees associated with this property please call SDL Property Auctions - Commercial, Nationwide on 08000 465454.
*Guide Price: An indication of a seller's minimum expectation at auction and given as a Guide Price or a range of Guide Prices. This is not necessarily the figure a property will sell for and is subject to change prior to the auction.
Reserve Price: Each auction property will be subject to a Reserve Price below which the property cannot be sold at auction. Normally the Reserve Price will be set within the range of Guide Prices or no more than 10% above a single Guide Price.
Map data ©OpenStreetMap contributors.





