Commercial property for rent
Park Road, Dawlish
Letting details
- Let available date:
- Ask agent
- PROPERTY TYPE
Commercial Property
- SIZE
Ask agent
Key features
- Retail or office potential
- Large workspace
- Storage Room
- Kitchen area
- Great Location
- Available 2025
- Final interior construction and layout negotiable
Description
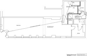
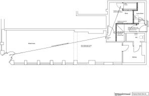
Frontage: 3.2m window + 1.2m door (inc frame)
The property front benefits from a large shop window, with window sill. The glazed door opens to:
Room 1: 4.4m x 4.9m max
The room is brightly lit. The room is currently laid out as a retail space with counter and a range of shelves and racking. This could be remodelled in a variety of ways to suit individual business needs. A stud wall with a wooden door through to:
Room 2:3.5m x 3.5m max
This smaller room, is currently used as a store room but could be adapted. A glazed internal window and door let in secondary light from the kitchen space. The room leads to three steps leading to:
Kitchen:2.6m x 1.7m
This room is fitted with a base unit and a worktop with a sink. A door leads to a courtyard, which provides access to the residential flats above. This room leads to:
W.C.: 1.7m x 0.8m
With a toilet and hand basin, the room provides facilities for the occupants.
Rent
A rent of £995 per month is payable in advance by standing order. This equates to an average of £230 per week.
Service charge
The tenant will be responsible for the electirc usage and to make a reasonable contribution towards the water consumption as a proportionate contribution to the buildings insurance.
The tenant is responsible for the necessary rates, upkeep of the property, in line with the lease agreement.
The electricity meter is situated in a cupboard in the communal lobby area. The tenant is responsible for paying their electricity charges promptly.
Lease:
A new 6-year FRI lease is available with an upwards only rent review at the end of the third year. The tenant shall have the option to terminate the lease after the third year by providing not less than 6 months prior written notice. The lease will be contracted outside of the Landlord and Tenant Act 1954.
If the lease is to be taken by a Limited Company, at least one director will be required to act as a guarantor to the lease for the duration of the term. A 3 months' rent deposit may also be required.
Rates:
Rateable Value: - tbc
We understand that qualifying businesses are likely to benefit from a rate reduction of up to 100% under the Small Business Rate Relief scheme. To see if you or these premises qualify for this discount, please contact Teignbridge District Council services. We are informed that mains water, drainage and electricity are installed to the premises.
Legal costs:
A contribution of £395 plus VAT is required towards the landlord's legal and administration costs in setting up the new lease.
Brochures
2 Park RoadEnergy Performance Certificates
EPCPark Road, Dawlish
NEAREST STATIONS
Distances are straight line measurements from the centre of the postcode- Dawlish Station0.3 miles
- Dawlish Warren Station1.7 miles
- Teignmouth Station2.5 miles
Notes
Disclaimer - Property reference UDLCC_690508. The information displayed about this property comprises a property advertisement. Rightmove.co.uk makes no warranty as to the accuracy or completeness of the advertisement or any linked or associated information, and Rightmove has no control over the content. This property advertisement does not constitute property particulars. The information is provided and maintained by Underhill Estate Agents, Dawlish. Please contact the selling agent or developer directly to obtain any information which may be available under the terms of The Energy Performance of Buildings (Certificates and Inspections) (England and Wales) Regulations 2007 or the Home Report if in relation to a residential property in Scotland.
Map data ©OpenStreetMap contributors.





