Linton, Maidstone, Kent
- PROPERTY TYPE
Land
- SIZE
Ask agent
Key features
- A substantial ex-farm site
- Includes a superb converted barn (c2021)
- Approval to develop a large barn into 2 substantial dwellings
- Further agricultural buildings
- Wetlands pond & Orchard
- Three private access routes into the site
- Freehold
- Sold with vacant possession
Description
Burford Farm is a former agricultural estate now entering a new chapter. A carefully envisioned collection of ex-agricultural buildings evolving into refined rural homes. At the heart of this transformation lies The Threshing Barn, a striking example of traditional Kentish architecture reimagined for contemporary living.
Planning approval has been granted for the conversion of the prominent Grain Store into two exceptional four-bedroom dwellings, a key step in establishing the site’s residential future. The wider farmstead includes The Granary, The Tool Shed, and other period buildings, each contributing to the site’s authentic rural character and offering scope for future restoration and reuse (subject to the existing, awaiting decisions and additional necessary consents).
A gravel driveway winds through the site, leading to a generous parking area, while a newly created wetland pond enhances biodiversity and softens the transition from farm to new homes.
Burford Farm represents a rare opportunity to be part of a landmark rural redevelopment in the heart of Kent.
Introduction to the site:
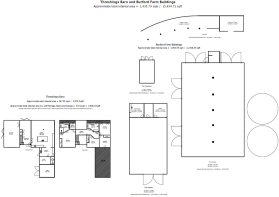
The Threshing Barn – A truly exceptional detached four-bedroom barn conversion, completed circa 2021 with meticulous attention to detail and craftsmanship.
The Grain Store – Two large four-bedroom semi-detached dwellings. Planning permission approved.
The Hay Barn – Five three-bedroom terraced dwellings. Refused
The Granary – Three-bedroom detached dwelling. Permission expired.
The Tool Shed – One-bedroom detached dwelling. Refused
The Implement Store – Two-bedroom detached dwelling. Permission expired.
The Orchard – Development potential, subject to planning permission.
The Wetlands – A landscaped ecological feature supporting local biodiversity.
Additional Information:
Tenure: Freehold
Utilities: On-site
Sale: The seller prefers to sell the site as a whole entity
Location:
Burford Farm lies along Redwall Lane — a country lane linking Linton Hill (A229) with Hunton Hill — around six miles south of Maidstone and just 1.5 miles from Coxheath village centre.
The nearby A229 provides excellent road links north to the M20 and M2 motorways and south towards the A21 and the south coast. Regular bus services operate from East Street, Hunton, with routes to Maidstone town centre.
For rail commuters, Maidstone East and Staplehurst stations both offer mainline services to London Victoria and Charing Cross.
A detailed site brochure and planning documentation are available on request from the Land Team.
EPC Rating: D
Linton, Maidstone, Kent
NEAREST STATIONS
Distances are straight line measurements from the centre of the postcode- East Farleigh Station2.8 miles
- Marden Station2.8 miles
- Yalding Station3.3 miles
Notes
Disclaimer - Property reference 37eb5716-53e4-4d48-9ff4-30181787ae61. The information displayed about this property comprises a property advertisement. Rightmove.co.uk makes no warranty as to the accuracy or completeness of the advertisement or any linked or associated information, and Rightmove has no control over the content. This property advertisement does not constitute property particulars. The information is provided and maintained by Allen Heritage, Shirley. Please contact the selling agent or developer directly to obtain any information which may be available under the terms of The Energy Performance of Buildings (Certificates and Inspections) (England and Wales) Regulations 2007 or the Home Report if in relation to a residential property in Scotland.
Map data ©OpenStreetMap contributors.








