Office to lease
Henley Street, Stratford-Upon-Avon CV37 6QW
- SIZE AVAILABLE
2,769 sq ft
257 sq m
- SECTOR
Office to lease
Lease details
- Lease available date:
- Ask agent
Key features
- 2,769 sq ft (257.42 m2)
- Ideal for Shared Workspace for Co Creation
- Suitable for Variety of Uses (STP)
- Central Stratford Located off Guild St
- Rent £44,304 pa + VAT.
Description
An opportunity to lease and run a building ideally suited to setting up a shared workspace for co creation and incubation of SME’s and the creative arts sectors. The owners of the building invite expressions of interest from potential tenants who could put the building to best use.
A description of the property is as follows: The unit is accessed either via the pedestrian walkway from the rear of Hobsons Tea Rooms on Stratford’s famous Henley Street or via the pay and display car park off Guild Street.
The building is a period red brick and traditional pitched tiled roof set over three stories with two access doors and several window openings to the front elevation. It is believed that the building dates back to the late eighteenth century as a burgage plot to 1 Henley Street, as the building was labelled as a malthouse on the 1885 ordnance survey map. The property was sympathetically refurbished in 2024/25 maintaining some main of the historical features of the building.
The property is accessed via a new glazed doorway at the North end of the building (nearest Guid Street) which leads into the following internal accommodation: There is a reception lobby area with a feature steel staircase located to the left-hand side and a vaulted ceiling giving an impressive first impression. There is ample space for a waiting area and reception desk with the staircase taking you to the basement area which features a brick floor with original timber panelled walls to the right-hand side, high level windows to the left-hand side and industrial lighting and galvanised conduit trunking. There is a main workspace, storage cupboard, disabled access WC with white cross bonded tiled walls and new sanitary wear. Beyond this area is access to a second staircase and then a breakout/kitchen room with white base units, grey worktop with sink and tap. From this staircase is the raised ground floor area which is mostly open plan with a kitchen/break out area to the far Southern end of the room along with a toilet.
The second floor is accessed via a staircase at the Northern end of the building and this floor features impressive, exposed timber trusses and a skylight to the Eastern roof elevation. There is industrial galvanized conduit with 13-amp double sockets and wire track lighting running through the timber trusses.
Location: - Heading South East into Stratford down the Birmingham Road enter Guild St and the public car park to the site is located on your right hand side just before the turning into Union Street.
Description: - An opportunity to lease and run a building ideally suited to setting up a shared workspace for co creation and incubation of SME’s and the creative arts sectors. The owners of the building invite expressions of interest from potential tenants who could put the building to best use.
A description of the property is as follows: The unit is accessed either via the pedestrian walkway from the rear of Hobsons Tea Rooms on Stratford’s famous Henley Street or via the pay and display car park off Guild Street.
The building is a period red brick and traditional pitched tiled roof set over three stories with two access doors and several window openings to the front elevation. It is believed that the building dates back to the late eighteenth century as a burgage plot to 1 Henley Street, as the building was labelled as a malthouse on the 1885 ordnance survey map. The property was sympathetically refurbished in 2024/25 maintaining some main of the historical features of the building.
The property is accessed via a new glazed doorway at the North end of the building (nearest Guid Street) which leads into the following internal accommodation: There is a reception lobby area with a feature steel staircase located to the left-hand side and a vaulted ceiling giving an impressive first impression. There is ample space for a waiting area and reception desk with the staircase taking you to the basement area which features a brick floor with original timber panelled walls to the right-hand side, high level windows to the left-hand side and industrial lighting and galvanised conduit trunking. There is a main workspace, storage cupboard, disabled access WC with white cross bonded tiled walls and new sanitary wear. Beyond this area is access to a second staircase and then a breakout/kitchen room with white base units, grey worktop with sink and tap. From this staircase is the raised ground floor area which is mostly open plan with a kitchen/break out area to the far Southern end of the room along with a toilet.
The second floor is accessed via a staircase at the Northern end of the building and this floor features impressive, exposed timber trusses and a skylight to the Eastern roof elevation. There is industrial galvanized conduit with 13-amp double sockets and wire track lighting running through the timber trusses.
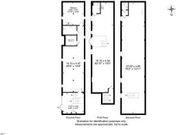
Floor Area: - 2,769 sq ft (257.42 m2) Net Internal Area (NIA)
Price: - £44,304 Per Annum
Tenure: - New Lease Available
Service Charge: - To be confirmed.
Rateable Value: - £8,400; source: .
Rates Payable: - The rates payable are calculated as a multiplier of the rateable value. If the rateable value is £12,000 or less, small businesses may be entitled to 100% rates relief providing the property is their only business premises. Any interested applicants should contact the local authority and verify the multiplier and check if any rates relief is available for their business.
Insurance: - Standard commercial terms are that the landlord insures the building and the tenant pays the landlord the cost of the buildings insurance annually. The tenant will be responsible for insuring their own stock, content and liabilities.
Legal Costs & Holding Deposit: - Each party pays their own legal costs. The landlord may request a holding deposit of £1000 once terms are agreed this will be deducted off the first payment of rent.
Deposit: - The landlord may ask the tenant to provide a deposit, this is typically the equivalent of three months worth of rent but could change and is subject of the tenant’s financial status.
Vat: - Value Added Tax at the prevailing rate is applicable on all costs shown in these
particulars apart from business rates.
Epc: - The Energy Performance Rating of the property is = B.
A full copy of this report is available from the agent’s office upon request.
Viewing: - Viewing strictly by prior appointment with sole agent:
Richard Johnson: - Westbridge Commercial Ltd
1st Floor Offices
3 Trinity Street
Stratford Upon Avon
CV37 6BL
Tel:
Gdpr: - You have requested a viewing of a property and therefore we will require certain pieces of personal information from you in order to provide a professional service to you and our client. Should you wish to take up a tenancy the process will involve collecting personal information about you or your company which will need to be shared with our client and Credit Safe or other credit referencing agencies. We will not share this information with any other third party without your consent. More information on how we hold and process your data is available on our website
- 2,769 sq ft (257.42 m2)
- Refurbished Building
- Suitable for Variety of Uses (STP)
- Central Stratford Located off Guild Street
- Rent £44,304 pa + VAT
- Ideal for Shared Workspace for Co Creation
- Period Features
- Next to Pay & Display Car Park
- Available Immediately
Brochures
Henley Street, Stratford-Upon-Avon CV37 6QW
NEAREST STATIONS
Distances are straight line measurements from the centre of the postcode- Stratford-upon-Avon Station0.3 miles
- Stratford-upon-Avon Parkway Station1.3 miles
- Wilmcote Station2.9 miles
Notes
Disclaimer - Property reference 34288484. The information displayed about this property comprises a property advertisement. Rightmove.co.uk makes no warranty as to the accuracy or completeness of the advertisement or any linked or associated information, and Rightmove has no control over the content. This property advertisement does not constitute property particulars. The information is provided and maintained by Westbridge Commercial Limited, Stratford Upon Avon. Please contact the selling agent or developer directly to obtain any information which may be available under the terms of The Energy Performance of Buildings (Certificates and Inspections) (England and Wales) Regulations 2007 or the Home Report if in relation to a residential property in Scotland.
Map data ©OpenStreetMap contributors.






