
Harden Place, Edinburgh, Midlothian

Letting details
- Let available date:
- Now
- Deposit:
- £2,400A deposit provides security for a landlord against damage, or unpaid rent by a tenant.Read more about deposit in our glossary page.
- Min. Tenancy:
- Ask agent How long the landlord offers to let the property for.Read more about tenancy length in our glossary page.
- Let type:
- Long term
- Furnish type:
- Furnished
- Council Tax:
- Ask agent
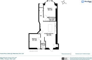
- PROPERTY TYPE
Apartment
- BEDROOMS
2
- BATHROOMS
1
- SIZE
807 sq ft
75 sq m
Description
This property would make a truly special home, boasting beautiful interiors and finishes throughout.
Accommodation comprises;
Open plan living space showcasing unique architecture and exposed steel beams. The flexible living space has been completed to an exquisite standard, with no detail overlooked. Modern kitchen with exclusively Smeg appliances and beautiful breakfasting bar for dining. From the living space, there is a private back door providing access to the rear communal garden.
Two large double bedrooms, one to the rear of the property and another to the front benefitting from a large bay window.
Property benefits from family bathroom with W.C. and a separate shower room finished in unlacquered brass.
Externally, there is a private front garden space, and well maintained rear communal garden. There is on street permit parking.
Polwarth is located just a short journey from the City Centre. With excellent transport links there are many local amenities in the area including shops, eateries and cafes. This property is also located just a short distance from Harrison Park and the canal, offering great outdoor green spaces.
Property lies in the catchment for Boroughmuir High School - voted in the top 3 schools in Sunday Times 2025. Internationally-recognised alternatives nearby, Waldorf (Edinburgh Steiner School) & Montesssori, within half a mile, as well as George Watsons.
No Pets
Deposit: £2,400
EPC: C
Council Tax: D
Landlord Registration: 1792497/230/13112
LARN1903047
EPC Rating: C
Council Tax Band: D
- COUNCIL TAXA payment made to your local authority in order to pay for local services like schools, libraries, and refuse collection. The amount you pay depends on the value of the property.Read more about council Tax in our glossary page.
- Band: D
- PARKINGDetails of how and where vehicles can be parked, and any associated costs.Read more about parking in our glossary page.
- Yes
- GARDENA property has access to an outdoor space, which could be private or shared.
- Ask agent
- ACCESSIBILITYHow a property has been adapted to meet the needs of vulnerable or disabled individuals.Read more about accessibility in our glossary page.
- Ask agent
Harden Place, Edinburgh, Midlothian
Add an important place to see how long it'd take to get there from our property listings.
__mins driving to your place
Notes
Staying secure when looking for property
Ensure you're up to date with our latest advice on how to avoid fraud or scams when looking for property online.
Visit our security centre to find out moreDisclaimer - Property reference CET250986_L. The information displayed about this property comprises a property advertisement. Rightmove.co.uk makes no warranty as to the accuracy or completeness of the advertisement or any linked or associated information, and Rightmove has no control over the content. This property advertisement does not constitute property particulars. The information is provided and maintained by Rettie, Edinburgh South. Please contact the selling agent or developer directly to obtain any information which may be available under the terms of The Energy Performance of Buildings (Certificates and Inspections) (England and Wales) Regulations 2007 or the Home Report if in relation to a residential property in Scotland.
*This is the average speed from the provider with the fastest broadband package available at this postcode. The average speed displayed is based on the download speeds of at least 50% of customers at peak time (8pm to 10pm). Fibre/cable services at the postcode are subject to availability and may differ between properties within a postcode. Speeds can be affected by a range of technical and environmental factors. The speed at the property may be lower than that listed above. You can check the estimated speed and confirm availability to a property prior to purchasing on the broadband provider's website. Providers may increase charges. The information is provided and maintained by Decision Technologies Limited. **This is indicative only and based on a 2-person household with multiple devices and simultaneous usage. Broadband performance is affected by multiple factors including number of occupants and devices, simultaneous usage, router range etc. For more information speak to your broadband provider.
Map data ©OpenStreetMap contributors.





