Lisbon, Ericeira, Portugal
- PROPERTY TYPE
Apartment
- BEDROOMS
3
- BATHROOMS
2
- SIZE
1,389 sq ft
129 sq m
Description
A unique opportunity to live near the sea in comfort and elegance.
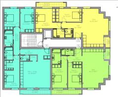
2nd Floor with 129 m2
Apartment Area - 123 m2
Balconies - 6 m2
Closed Garage - 22 m2
Finishings Map
1. Common Areas and Garage
1.1 Garage, Common Areas, and General Finishes
Garage walls and ceilings painted white or similar.
Smoothed cement garage floor.
The vehicle yards are enclosed enclosures with electric gates.
Gym on the garage floor.
TV and telephone distribution systems according to the plans.
Video intercom system.
Electric blinds. German Aluplast PVC thermal frames with double glazing. Water heating via heat pump. Air conditioning installation. Orona elevator, or other equivalent brand.
Page 1 of 3
Finishings Map
2. Unit Interiors
2.1 – Hallway
Flooring: AC5 laminate flooring, natural oak decor, single plank.
White baseboard.
Walls covered with sprayed stucco and painted with white plastic paint.
Plasterboard ceiling with recessed lighting and painted with white plastic paint.
Apartment entrance doors will be reinforced with a white finish
or other finish.
2.2 – Living Room
Flooring: AC5 laminate flooring, natural oak decor, single plank, or
other equivalent. White baseboard.
Walls covered with sprayed stucco and painted with white plastic paint.
Drywall ceiling with recessed lighting and painted with white plastic paint.
2.3 – Bedrooms
AC5 laminated floating flooring, natural oak decor, single plank or
another equivalent;
White baseboard.
Walls covered with sprayed stucco and painted with white plastic paint.
Drywall ceiling with recessed lighting and painted with white plastic paint.
Wardrobes with swing doors, white lacquered, interior with linen decor;
Frames, interior doors, and trim, white lacquered.
2.4 – Bathrooms
Ceramic tile flooring. Walls entirely or partially covered with ceramic or other tiles.
Drywall ceiling with recessed lighting and painted with fungicidal white paint.
Wall-hung vanity unit in white or other colors, with built-in ceramic sink
or countertop.
Page 2 of 3
Finishings Map
Sanitana brand wall-hung toilets, Glam line, or similar.
Bruma brand chrome single-lever mixer taps or similar.
Toilets with shower trays, tempered glass side protection, or bathtub
and mixer tap.
White lacquered frames, trim, and doors.
2.5 - Kitchen
AC5 laminate floating flooring, natural oak decor, single plank, or
other equivalent.
Stucco or drywall ceiling painted white. Kitchen cabinets with white lacquered doors and drawers or other finishes.
Compact quartz countertops with engraved drainer.
Single-lever mixer tap (Bruma) or equivalent.
Stainless steel dishwasher with a built-in sink.
White lacquered door frames, trim, and door.
Bosch dishwasher, washing machine, oven, range hood, or other equivalent.
2.6 - Balconies and Terraces
Ceramic tile floors, balcony railings (when necessary) in
lacquered aluminum or other finishes.
Final Notes:
This finish map may be changed for technical reasons or
due to manufacturing failures of components or materials selected herein, and may be
replaced with equivalent materials to be determined by the construction manager.
#ref: 147085
Lisbon, Ericeira, Portugal
NEAREST AIRPORTS
Distances are straight line measurements- Lisbon(International)20.0 miles
Advice on buying Portuguese property
Learn everything you need to know to successfully find and buy a property in Portugal.
Notes
This is a property advertisement provided and maintained by IAD, Porto (reference 147085) and does not constitute property particulars. Whilst we require advertisers to act with best practice and provide accurate information, we can only publish advertisements in good faith and have not verified any claims or statements or inspected any of the properties, locations or opportunities promoted. Rightmove does not own or control and is not responsible for the properties, opportunities, website content, products or services provided or promoted by third parties and makes no warranties or representations as to the accuracy, completeness, legality, performance or suitability of any of the foregoing. We therefore accept no liability arising from any reliance made by any reader or person to whom this information is made available to. You must perform your own research and seek independent professional advice before making any decision to purchase or invest in overseas property.




