Alan Moss Road, Loughborough, LE11

Letting details
- Let available date:
- 23/06/2026
- Deposit:
- £1,500A deposit provides security for a landlord against damage, or unpaid rent by a tenant.Read more about deposit in our glossary page.
- Min. Tenancy:
- 12 months How long the landlord offers to let the property for.Read more about tenancy length in our glossary page.
- Furnish type:
- Furnished
- Council Tax:
- Ask agent
- PROPERTY TYPE
House Share
- BEDROOMS
5
- BATHROOMS
2
- SIZE
Ask agent
Key features
- Student Property
- Five Bedrooms
- Two Shower Rooms
- Available From July 2025
Description
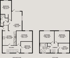
Lounge / Diner 4.7m (15'5) x 3.36m (11'0)
A spacious living room used as both lounge and dining area. This space is open to the kitchen and overlooks the rear garden. Some furniture included.
Kitchen 3.53m (11'7) x 3.39m (11'1)
A spacious kitchen with counters running either side of the room, open to the lounge/diner. Two fridges, a freezer, washing machine, oven and hob included, as well as a microwave, toaster and kettle.
Five Double Bedrooms
Five double bedrooms, two situated on the first floor and three on the ground floor. All come with necessary furniture.
Upstairs Shower Room 2.61m (8'7) x 2.39m (7'10)
A spacious shower room situated on the first floor including a large walk-in shower, sink and toilet.
Downstairs Shower Room 2.92m (9'7) x 1.9m (6'3)
A second shower room situated to the rear of the property on the ground floor. Comes with a walk-in shower, sink and toilet.
Storage / Lounge 2.81m (9'3) x 2.39m (7'10)
An extra room for multiple usage situated upstairs.
Garden
Accessed via the lounge/diner by french doors, a patio area with a stoned area for a second driveway.
Parking
Two driveways situated at the front and rear of the property with space for multiple cars. Further non-restricted on street parking available.
Utilities
Sorry, bills not included.
Heating
Gas-fired central heating.
Glazing
Modern, good quality, uPVC double glazing.
Brochures
9572.pdf- COUNCIL TAXA payment made to your local authority in order to pay for local services like schools, libraries, and refuse collection. The amount you pay depends on the value of the property.Read more about council Tax in our glossary page.
- Band: B
- PARKINGDetails of how and where vehicles can be parked, and any associated costs.Read more about parking in our glossary page.
- Yes
- GARDENA property has access to an outdoor space, which could be private or shared.
- Yes
- ACCESSIBILITYHow a property has been adapted to meet the needs of vulnerable or disabled individuals.Read more about accessibility in our glossary page.
- Ask agent
Alan Moss Road, Loughborough, LE11
Add an important place to see how long it'd take to get there from our property listings.
__mins driving to your place
Notes
Staying secure when looking for property
Ensure you're up to date with our latest advice on how to avoid fraud or scams when looking for property online.
Visit our security centre to find out moreDisclaimer - Property reference 9572. The information displayed about this property comprises a property advertisement. Rightmove.co.uk makes no warranty as to the accuracy or completeness of the advertisement or any linked or associated information, and Rightmove has no control over the content. This property advertisement does not constitute property particulars. The information is provided and maintained by Huntleys, Loughborough. Please contact the selling agent or developer directly to obtain any information which may be available under the terms of The Energy Performance of Buildings (Certificates and Inspections) (England and Wales) Regulations 2007 or the Home Report if in relation to a residential property in Scotland.
*This is the average speed from the provider with the fastest broadband package available at this postcode. The average speed displayed is based on the download speeds of at least 50% of customers at peak time (8pm to 10pm). Fibre/cable services at the postcode are subject to availability and may differ between properties within a postcode. Speeds can be affected by a range of technical and environmental factors. The speed at the property may be lower than that listed above. You can check the estimated speed and confirm availability to a property prior to purchasing on the broadband provider's website. Providers may increase charges. The information is provided and maintained by Decision Technologies Limited. **This is indicative only and based on a 2-person household with multiple devices and simultaneous usage. Broadband performance is affected by multiple factors including number of occupants and devices, simultaneous usage, router range etc. For more information speak to your broadband provider.
Map data ©OpenStreetMap contributors.




