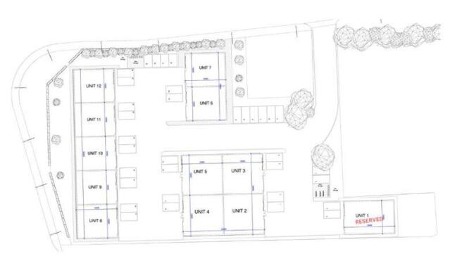
Unit 7 & 9, Olympus Business Park, Hayfield Lane / First Avenue, Finningley, Doncaster
- SIZE AVAILABLE
1,292 sq ft
120 sq m
- SECTOR
Light industrial facility to lease
Lease details
- Lease available date:
- Now
Key features
- NEW High quality business units
- Adjacent to Doncaster Sheffield Airport
- 120 m2 (1,291 ft2)
- 4m roller shutter door
- Eaves height: 5.44m,
- Ridge height: 8m
- Secure site
- Visitor & accessible parking & cycle storage
- Unit 7
Description
roller shutter doors
glazed front entrance
fire alarm
and emergency lighting,
external LED lighting to the service yard
Unit 7
Mezzanine floor
Full fibre broadband.
Security Alarm
CCTV
NOTE the solar panels on the roof are excluded, they serve the adjacent unit
Unit 9
A shell ready for fit out
Brochures
Unit 7 & 9, Olympus Business Park, Hayfield Lane / First Avenue, Finningley, Doncaster
NEAREST STATIONS
Distances are straight line measurements from the centre of the postcode- Kirk Sandall Station5.7 miles
Notes
Disclaimer - Property reference 2007LH. The information displayed about this property comprises a property advertisement. Rightmove.co.uk makes no warranty as to the accuracy or completeness of the advertisement or any linked or associated information, and Rightmove has no control over the content. This property advertisement does not constitute property particulars. The information is provided and maintained by CRAVEN WILDSMITH (COMMERCIAL) LIMITED, Doncaster. Please contact the selling agent or developer directly to obtain any information which may be available under the terms of The Energy Performance of Buildings (Certificates and Inspections) (England and Wales) Regulations 2007 or the Home Report if in relation to a residential property in Scotland.
Map data ©OpenStreetMap contributors.




