
Erpingham House, 22 Tombland, Norwich, Norfolk NR3 1RF
- PROPERTY TYPE
Commercial Property
- SIZE
Ask agent
Key features
- Vacant Grade II listed city centre building
- Extending to 3,677 sq/ft
- Guide price: £275,000
- For sale by online livestream auction
- Unless withdrawn prior
- 10:00am - Wednesday, 10th December 2025
Description
FOR SALE BY LIVESTREAM ONLINE AUCTION - 10:00AM, WEDNESDAY 10 DECEMBER 2025
TO REGISTER FOR LEGAL PACK AND BIDDING INSTRUCTIONS PLEASE VISIT OUR WEBSITE
Vacant Grade II listed city centre building extending to around 3,677 sq/ft
Known as Erpingham House, this prominent three storey mid terrace Grade II listed building is located within the city centre conservation area to the east side of Tombland with fine views of Norwich Cathedral to the rear.
The building’s most recent use was as a restaurant (previously let at £31,500 pa) which falls within Use Class E (Commercial, Business and Service). This class allows for a range of uses including retail, office, and indoor recreation. There is the potential to convert the upper floors to residential subject to the necessary consents being obtained.
According to the Valuation Office website, the restaurant and premises has a rateable value of £38,000 with effect from the 1st April 2023.
With a basement and attic there is accommodation over five floors and the building has a gross internal area of 341.55 sq/m (3,677 sq/ft).
First time to market since 1969 making this a rare opportunity.
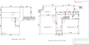
The existing building has three storeys plus rooms in the attic and was previously used as a restaurant across the ground, first and second floors.
Lower ground floor Three rooms
Ground floor Entrance hall, kitchen, two rooms, wc
First floor Landing, two rooms, two separate toilets
Second floor Landing, three rooms, two separate toilets
Third floor Three attic rooms
Outside Small side and rear yard area
Viewing Open viewings are arranged and the next are on Tuesday 2 December. To book an appointment please call the Norwich office.
Note A recent structural visual inspection report, measured survey report and desktop planning appraisal is included in the legal pack.
Tenure: Freehold
EPC Rating: C
Administration Fee: £1200 inc VAT payable on exchange of contracts.
Buyer's Premium Fee: £600 inc VAT payable on exchange of contracts.
Disbursements: Please see the legal pack for any disbursements listed that may become payable by the purchaser on completion.
Erpingham House, 22 Tombland, Norwich, Norfolk NR3 1RF
NEAREST STATIONS
Distances are straight line measurements from the centre of the postcode- Norwich Station0.4 miles
- Salhouse Station4.9 miles


Notes
Disclaimer - Property reference 202510291057sq_xaot. The information displayed about this property comprises a property advertisement. Rightmove.co.uk makes no warranty as to the accuracy or completeness of the advertisement or any linked or associated information, and Rightmove has no control over the content. This property advertisement does not constitute property particulars. The information is provided and maintained by Auction House, East Anglia. Please contact the selling agent or developer directly to obtain any information which may be available under the terms of The Energy Performance of Buildings (Certificates and Inspections) (England and Wales) Regulations 2007 or the Home Report if in relation to a residential property in Scotland.
Auction Fees: The purchase of this property may include associated fees not listed here, as it is to be sold via auction. To find out more about the fees associated with this property please call Auction House, East Anglia on 01603 361653.
*Guide Price: An indication of a seller's minimum expectation at auction and given as a Guide Price or a range of Guide Prices. This is not necessarily the figure a property will sell for and is subject to change prior to the auction.
Reserve Price: Each auction property will be subject to a Reserve Price below which the property cannot be sold at auction. Normally the Reserve Price will be set within the range of Guide Prices or no more than 10% above a single Guide Price.
Map data ©OpenStreetMap contributors.







