Limeside Road, Oldham

- PROPERTY TYPE
End of Terrace
- BEDROOMS
3
- BATHROOMS
2
- SIZE
Ask agent
Key features
- THREE BEDROOMS
- TWO RECEPTION ROOMS
- TWO BATHROOMS
- DRIVEWAY & GARAGE
- CLOSE TO LOCAL AMENITIES
- GREAT LOCATION
- INVESTMENT PROPERTY
- FIRST TIME BUYERS
- COUNCIL TAX BAND: A
- NO CHAIN
Description
We’re delighted to present this spacious three-bedroom terraced home, ideally located in the popular and well-connected area of Lime Side. Offering generous living space, excellent transport links, and proximity to highly regarded schools, this property is perfect for families, professionals, or first-time buyers.
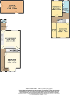
Inside, you’ll find a bright porch and welcoming hallway leading to a large front living room and a spacious seperate dining room, with the kitchen located in the rear extension — perfect for family living. The home benefits from the rear extension with a garden porch and downstairs toilet, providing access to the low-maintenance rear yard and garage/shed.
To the rear, there’s a garage and gated driveway, providing secure off-road parking and extra storage.
Upstairs features two double bedrooms, a single bedroom, and a family bathroom, all accessed from an open landing.
Key Features:
Three spacious bedrooms
Family Bathroom
Rear extension with downstairs toilet
Garage and gated driveway
Excellent transport links
Close to schools and local amenities
Ideal for families or first-time buyers
This property offers fantastic potential to make it your own — book your viewing today and discover all that this lovely Lime Side home has to offer!
Lounge -
Dining Room -
Utility -
Downstairs W/C -
Bedroom One -
Bedroom Two -
Bedroom Three -
Bathroom -
Brochures
Limeside Road, OldhamBrochure- COUNCIL TAXA payment made to your local authority in order to pay for local services like schools, libraries, and refuse collection. The amount you pay depends on the value of the property.Read more about council Tax in our glossary page.
- Band: A
- PARKINGDetails of how and where vehicles can be parked, and any associated costs.Read more about parking in our glossary page.
- Yes
- GARDENA property has access to an outdoor space, which could be private or shared.
- Yes
- ACCESSIBILITYHow a property has been adapted to meet the needs of vulnerable or disabled individuals.Read more about accessibility in our glossary page.
- Ask agent
Energy performance certificate - ask agent
Limeside Road, Oldham
Add an important place to see how long it'd take to get there from our property listings.
__mins driving to your place
Get an instant, personalised result:
- Show sellers you’re serious
- Secure viewings faster with agents
- No impact on your credit score
Your mortgage
Notes
Staying secure when looking for property
Ensure you're up to date with our latest advice on how to avoid fraud or scams when looking for property online.
Visit our security centre to find out moreDisclaimer - Property reference 34290267. The information displayed about this property comprises a property advertisement. Rightmove.co.uk makes no warranty as to the accuracy or completeness of the advertisement or any linked or associated information, and Rightmove has no control over the content. This property advertisement does not constitute property particulars. The information is provided and maintained by COUSINS ESTATE AGENTS, Failsworth. Please contact the selling agent or developer directly to obtain any information which may be available under the terms of The Energy Performance of Buildings (Certificates and Inspections) (England and Wales) Regulations 2007 or the Home Report if in relation to a residential property in Scotland.
*This is the average speed from the provider with the fastest broadband package available at this postcode. The average speed displayed is based on the download speeds of at least 50% of customers at peak time (8pm to 10pm). Fibre/cable services at the postcode are subject to availability and may differ between properties within a postcode. Speeds can be affected by a range of technical and environmental factors. The speed at the property may be lower than that listed above. You can check the estimated speed and confirm availability to a property prior to purchasing on the broadband provider's website. Providers may increase charges. The information is provided and maintained by Decision Technologies Limited. **This is indicative only and based on a 2-person household with multiple devices and simultaneous usage. Broadband performance is affected by multiple factors including number of occupants and devices, simultaneous usage, router range etc. For more information speak to your broadband provider.
Map data ©OpenStreetMap contributors.




