Pub to lease
The Railway Inn, Dartmouth Road, Churston Ferrers, Brixham, Devon, TQ5 0LL
- SIZE AVAILABLE
28,750 sq ft
2,671 sq m
- SECTOR
Pub to lease
Lease details
- Lease available date:
- Ask agent
Key features
- New free of tie lease opportunity
- Smart detached leasehold venue with 80 internal covers over bar and restaurant
- 120 external covers
- Six letting bedrooms and manager's flat
- C50 car parking spaces
- Successful going concern
- Main road location with lots of nearby development
Description
Available by way of a new 10 year free of tie lease on full repair and insure terms. Nil premium. Inventory of c£60,000 and TUPE will apply.
Location
Churston Ferrers along with neighbouring Galmpton have a last reported population of c6,500 residents and form a busy hub linking both Brixham and Kingswear/Dartmouth via ferry to the rest of Torbay. There is considerable local development and the growing population provide a greater customer base for this high visibility venue. In addition to the local customer base this is area for tourism with large holiday parks nearby and attractions to include the steam railway, Greenway (former holiday home of Agatha Christie), Quaywest water park and many waterside beach attractions and heritage.
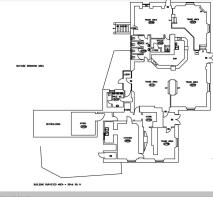
Accommodation
All areas are approximate and measured in accordance with the RICS Property Measurement (2nd Edition).
The public bar is approached via a customer lobby from the main car park (with gents toilets) and provides four separate areas around a central wooden bar servery. This offers a mix of lounge bar seating, formal and informal dining areas and overall space for 88 covers to include a raised dining area. Overall footprint for the trade area is 174sqmtrs (1873 sqft). Access to ladies WC's, office to rear of bar. Access to kitchens and lobby for letting accommodation.
The kitchens are extensive with main kitchen (5.9m x 3.5m) having full extraction. Preparation room (5.2m x 5m) with delivery access. Wash room (3.5m x 1.4m). Still room, rear lobby with service yard access, locker room, store room with walk in chiller, further stores and office in addition to garage/store (5.1m x 3.7m).
Separate access and lobby for guests with return door to main bar and stairway to letting rooms at first floor.
Beer cellar (4.2m x 3.2m). Ground level and accessed externally via the car park.
At first floor level there is a landing and hallway with storage cupboards and separate fire escape. The letting rooms are in good order, each having bath en suites with mixer tap showers.
Letting room 1: (4.3m x 3.5m excluding en suite). Double bedroom
Letting room 2: (4.4m x 3.9m including en suite). Double bedroom
Letting room 3: Lobby with access to bedroom (4.4m x 3.9m). Separate bathroom.
Letting room 4: Formerly a family suite with bedroom(5.4m x 3.6m) with doors off to bedroom (3.5m x 2.7m) and bathroom.
Letting room 5: Family room (6.2m x 5m including en suite).
Letting room 6: Family room with fitted kitchenette, bedroom and en suite (5.4m x 5m inclusive).
Manager's flat:
Lobby to lounge with kitchen (5.2m x 5.1m) through to bedroom (3.9m x 3.7m) with en suite shower room and WC.
External Area:
Main customer car park for 48 vehicles and patio beer garden with space for 8 x 6 seater benches. Further gravelled area with space for a further two benches. Extensive garden to side with space for 120 covers.
The Business:
Established going concern run under management as part of an independent pub group (unbranded). trade split food/drink/accommodation c55/30/15.
Available by way of a new 10 year lease with headline rent of £80,000 per annum and at nil premium. The current business will transfer and TUPE is applicable. Trade inventory to be included at c£60,000. Trading accounts available pending applicants provided proof of funds and background. A free of tie application form must be completed in all cases (available on request) with business plan to include forecast profit and loss.
The lease will be protected by Part II of the Landlord and Tenant Act 1954. The rent will subject to annual increases in line with the retail price index and five yearly rent reviews. The lease is assignable after the end of the first two years and will be let on fully repairing and insuring terms. Standard free of tie Heads of Terms are available on request. The first three months' rent and other contractual charges will be payable in advance and the deposit payable will be 25% of the rent. Please note all costs may be subject to VAT.
Planning
Sui Generis for pub use.
Rent / Price
£60,000 for trade inventory. Stock in addition at point of sale.
Service Charge
N/A
Business Rates
From the Valuation Office Agency website ( we understand that the current Rateable Value is £31,250. Current rates payable 49.9p in the pound. Government support in the sector prov40% discount on rates payable until March 2026. Council tax band C.
Services
We understand that mains electricity, gas, water and drainage are connected to the property however these services have not been tested by the agents. Interested parties should make their own enquiries.
EPC
C (61)
Legal Fees
Each party to be responsible for their own legal fees in relation to this transaction.
VAT
All figures quoted are exclusive of VAT if applicable.
Brochures
The Railway Inn, Dartmouth Road, Churston Ferrers, Brixham, Devon, TQ5 0LL
NEAREST STATIONS
Distances are straight line measurements from the centre of the postcode- Paignton Station2.7 miles
- Torquay Station4.5 miles
Notes
Disclaimer - Property reference 21572LH. The information displayed about this property comprises a property advertisement. Rightmove.co.uk makes no warranty as to the accuracy or completeness of the advertisement or any linked or associated information, and Rightmove has no control over the content. This property advertisement does not constitute property particulars. The information is provided and maintained by Vickery Holman, Leisure. Please contact the selling agent or developer directly to obtain any information which may be available under the terms of The Energy Performance of Buildings (Certificates and Inspections) (England and Wales) Regulations 2007 or the Home Report if in relation to a residential property in Scotland.
Map data ©OpenStreetMap contributors.





