
Whelp Street, Preston St. Mary
- PROPERTY TYPE
Land
- SIZE
Ask agent
Key features
- Detached dwelling
- Countryside location
- River fronting
- Serviced closeby
- 1 acre in size (sts)
- DC/25/01473
Description
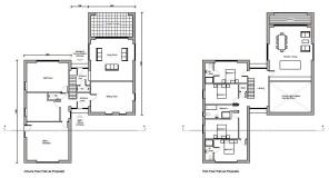
The plans that have been passed are for a four-bedroom detached dwelling including two en-suited bedrooms, with an open plan kitchen/dining room to first flooring leading onto a balcony, with a further reception to ground floor opening out onto the rear garden. A private driveway brings you to the front of the property with planning permission for a range for a range of outbuildings with the private rear garden leading down to the River Brett. Sitting on a quiet lane the property will occupy a wonderfully rural setting surrounded by rich countryside views on the outskirts of the thriving village community of Preston St Mary with the historic village of Lavenham beyond.
AGENTS NOTE: As mentioned earlier buyers should completely satisfy themselves with the planning permission that has been granted and their responsibilities before engaging with any costs. The current plans do have an office/ commercial use to some rooms downstairs and this should also be considered.
SERVICES: We understand that water has been connect to the site along with a septic tank that has been partially installed. We have been informed that power can be gained from the telegraph within the plot. NOTE: None of the services have been tested by the agent.
LOCAL AUTHORITY: Babergh and Mid Suffolk District Council, Endeavour House, 8 Russell Road, Ipswich, Suffolk. IP1 2BX ).
WHAT3WORDS: ///sharp.rekindle.sliding
VIEWING: Strictly by prior appointment only through DAVID BURR.
NOTICE: Whilst every effort has been made to ensure the accuracy of these sales details, they are for guidance purposes only and prospective purchasers or lessees are advised to seek their own professional advice as well as to satisfy themselves by inspection or otherwise as to their correctness. No representation or warranty whatsoever is made in relation to this property by David Burr or its employees nor do such sales details form part of any offer or contract.
Brochures
BrochureWhelp Street, Preston St. Mary
NEAREST STATIONS
Distances are straight line measurements from the centre of the postcode- Sudbury Station7.4 miles



Notes
Disclaimer - Property reference 100424029349. The information displayed about this property comprises a property advertisement. Rightmove.co.uk makes no warranty as to the accuracy or completeness of the advertisement or any linked or associated information, and Rightmove has no control over the content. This property advertisement does not constitute property particulars. The information is provided and maintained by David Burr Estate Agents, Long Melford. Please contact the selling agent or developer directly to obtain any information which may be available under the terms of The Energy Performance of Buildings (Certificates and Inspections) (England and Wales) Regulations 2007 or the Home Report if in relation to a residential property in Scotland.
Map data ©OpenStreetMap contributors.






