
1 Du Maurier Lane, Tattenhoe Park, Milton Keynes, Buckinghamshire, MK4 4RF

- PROPERTY TYPE
Detached
- BEDROOMS
4
- BATHROOMS
2
- SIZE
1,390 sq ft
129 sq m
- TENUREDescribes how you own a property. There are different types of tenure - freehold, leasehold, and commonhold.Read more about tenure in our glossary page.
Freehold
Key features
- Open plan kitchen/dining room with french doors leading to the rear garden
- Utility room located off of the kitchen for your everyday essentials
- Separate living room to relax and spend time with the family
- Downstairs W/C & cupboard for your convenience
- En-suite to bedroom 1
- Fourth bedroom is ideal for guests or to use as an office
- Well-appointed family bathroom with neutral wall tiling
- Garage and parking for two cars
- Two show homes open to view - arrange a visit now to see inside
- 10-year NHBC warranty
Description
Home 17 - The Redstart
A beautiful four bedroom detached home in which all the family will find space to call their own. The chef of the house will enjoy cooking up a storm in the kitchen, while the living room is ideal for cosy nights in. Bedroom four could become a home office or a playroom for the children.
Our new homes for sale at Tattenhoe Park include our superb collection of 3, 4 and 5-bedroom homes. All our new build houses at Countryside are carefully designed with modern living in mind and an excellent specification is available making our new homes your ideal choice.
Our sought-after new housing development offers access to a wide range of new facilities in and around Tattenhoe. The new builds are also close to a wealth of existing schools, shops, restaurants, sports centres, leisure facilities and open spaces, so you couldn't be better placed.
These new build homes for sale in Tattenhoe Park are perfect for growing families, downsizers and commuters.
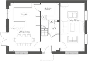
DIMENSIONS:
GROUND FLOOR:
KITCHEN
4.13m x 3.30m 13' 7" x 10' 10"
DINNG AREA
4.13m x 3.16m 13' 7" x 10' 5"
LIVING ROOM
3.23m x 6.46m 10' 7" x 21' 3"
FIRST FLOOR:
BEDROOM 1
3.25m x 3.83m 10' 8" x 12' 7"
BEDROOM 2
2.88m x 3.68m 9' 6" x 12' 1"
BEDROOM 3
2.85m x 2.69m 9' 4" x 8' 10"
BEDROOM 4
2.94m x 2.53m 9' 8" x 8' 4"
TOTAL INTERNAL AREA: 1390 SQ.FT
IMPORTANT INFORMATION:
Tenure - Freehold
Construction method - Timber Frame - Open Panel
Warranty provider - NHBC
Indicative EPC - A
Disclaimers:
The illustrations shown are computer generated impressions of how the property may look and are indicative only. External details or finishes may vary on individual plots and homes may be built in either detached or attached styles depending on the development layout. Exact specifications, window styles and whether a property is left or righthanded may differ from plot to plot. Please speak to our sales consultant for specific plot details.
The floorplan has been produced for illustrative purposes only. Room sizes shown are between arrow points as indicated on plan. The dimensions have tolerances of + or -50mm and should not be used other than for general guidance. If specific dimensions are required, enquiries should be made to the sales consultant. The floor plans shown are not to scale. Measurements are based on the original drawings. Slight variations may occur during construction.
The specification shown is correct at the time of production. Countryside is continually reviewing and updating the specification on all house/apartment types and therefore reserves the right to change specification details. Photographs depict typical Countryside interiors and may include optional upgrades. For full details regarding the current specification and finishes, please speak to our sales consultant.
- COUNCIL TAXA payment made to your local authority in order to pay for local services like schools, libraries, and refuse collection. The amount you pay depends on the value of the property.Read more about council Tax in our glossary page.
- Ask developer
- PARKINGDetails of how and where vehicles can be parked, and any associated costs.Read more about parking in our glossary page.
- Yes
- GARDENA property has access to an outdoor space, which could be private or shared.
- Yes
- ACCESSIBILITYHow a property has been adapted to meet the needs of vulnerable or disabled individuals.Read more about accessibility in our glossary page.
- Ask developer
Energy performance certificate - ask developer
- Set in a highly sought-after location to the south-west of Milton Keynes
- Bordering the beautiful Tattenhoe Valley Park
- Superb range of internal layouts to choose from
- Excellent specification available
1 Du Maurier Lane, Tattenhoe Park, Milton Keynes, Buckinghamshire, MK4 4RF
Add an important place to see how long it'd take to get there from our property listings.
__mins driving to your place
Get an instant, personalised result:
- Show sellers you’re serious
- Secure viewings faster with agents
- No impact on your credit score
About the development
About Countryside Homes - Central Home Counties
Countryside is a leading UK home builder and urban regeneration partner. We believe that where we live matters. We’re passionate about creating places people aspire to live, where they feel a true sense of belonging.
All our developments and homes carry a signature style and character, designed to work for the way people live today with materials that reflect our commitment to quality. Our exacting standards and sustainable credentials combine to create places that will stand the test of time. As a result we hold more Housing Design Awards than any other developer.
From the character of the homes we build to the planning of environments and the unique detailing of the landscape, our creative approach to place making creates places where people feel at home, providing a greater sense of belonging, spirit of neighbourhood and quality of life for everyone who lives in and around our developments.
We create places people love.
Your mortgage
Notes
Staying secure when looking for property
Ensure you're up to date with our latest advice on how to avoid fraud or scams when looking for property online.
Visit our security centre to find out moreDisclaimer - Property reference RedstartTattenhoeHome17. The information displayed about this property comprises a property advertisement. Rightmove.co.uk makes no warranty as to the accuracy or completeness of the advertisement or any linked or associated information, and Rightmove has no control over the content. This property advertisement does not constitute property particulars. The information is provided and maintained by Countryside Homes - Central Home Counties. Please contact the selling agent or developer directly to obtain any information which may be available under the terms of The Energy Performance of Buildings (Certificates and Inspections) (England and Wales) Regulations 2007 or the Home Report if in relation to a residential property in Scotland.
*This is the average speed from the provider with the fastest broadband package available at this postcode. The average speed displayed is based on the download speeds of at least 50% of customers at peak time (8pm to 10pm). Fibre/cable services at the postcode are subject to availability and may differ between properties within a postcode. Speeds can be affected by a range of technical and environmental factors. The speed at the property may be lower than that listed above. You can check the estimated speed and confirm availability to a property prior to purchasing on the broadband provider's website. Providers may increase charges. The information is provided and maintained by Decision Technologies Limited. **This is indicative only and based on a 2-person household with multiple devices and simultaneous usage. Broadband performance is affected by multiple factors including number of occupants and devices, simultaneous usage, router range etc. For more information speak to your broadband provider.
Map data ©OpenStreetMap contributors.






