
4 bedroom detached house for sale
Kingsway East, Dundee, Angus, DD4 7RH

- PROPERTY TYPE
Detached
- BEDROOMS
4
- SIZE
Ask developer
- TENUREDescribes how you own a property. There are different types of tenure - freehold, leasehold, and commonhold.Read more about tenure in our glossary page.
Ask developer
Key features
- Single integral garage with tiled roof
- Front aspect lounge with bright triple window
- Open plan kitchen/dining room
- Access from the kitchen/dining room to the rear garden
- Central cupboard storage from kitchen/dining room
- Separate rear door exit from utility room
- Cloakroom includes obscure opening window
- En suite shower room to bedroom 1
Description
Designed with families in mind, the Leith is a fantastic four-bedroom family home with a bright and modern open plan kitchen/dining room with French doors leading into the garden. The integral garage, downstairs WC, three handy storage cupboards and en suite to bedroom one mean it ticks all the boxes for practical family-living.
Additional Information
- Tenure: Heritable
- Council tax band: Not made available by local authority until post-occupation
Parking - Driveway
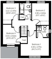
Room Dimensions
- Kitchen/Dining room - 5.06 x 2.94 metre
- Living room - 3.22 x 5.06 metre
- Bedroom One - 2.77 x 4.34 metre
- Bedroom Two - 2.6 x 3.38 metre
- Bedroom Three - 2.47 x 3.22 metre
- Bedroom Four - 2.62 x 3.03 metre
- COUNCIL TAXA payment made to your local authority in order to pay for local services like schools, libraries, and refuse collection. The amount you pay depends on the value of the property.Read more about council Tax in our glossary page.
- Ask developer
- PARKINGDetails of how and where vehicles can be parked, and any associated costs.Read more about parking in our glossary page.
- Yes
- GARDENA property has access to an outdoor space, which could be private or shared.
- Yes
- ACCESSIBILITYHow a property has been adapted to meet the needs of vulnerable or disabled individuals.Read more about accessibility in our glossary page.
- Ask developer
Energy performance certificate - ask developer
- Choice of 3 and 4 bedroom homes
- Excellent transport links
- Wide range of shops nearby
- Dundee airport a short distance away
Kingsway East, Dundee, Angus, DD4 7RH
Add an important place to see how long it'd take to get there from our property listings.
__mins driving to your place
Get an instant, personalised result:
- Show sellers you’re serious
- Secure viewings faster with agents
- No impact on your credit score
About Persimmon Homes North Scotland
Welcome to Stewarts Loan ? sustainable homes on the edge of Dundee
Discover our new houses for sale in Dundee, a well-connected development on the city?s eastern side. With a choice of energy-efficient three and four-bedroom homes, this is a great location for families, first-time buyers and professionals who want to enjoy all the benefits of life in Scotland?s sunniest city.
Want a modern new home in Dundee?
Set close to the Tay estuary, Stewarts Loan gives you green open space and easy access to everything this vibrant city has to offer ? from shops and restaurants to culture and heritage. Dundee is known for its waterfront attractions and thriving arts scene, while also offering plenty of local parks and coastal walks nearby.
Easy travel around Angus and beyond
Living here means you get great transport links. The development is close to the A92 coastal route to Aberdeen and Kingsway for the A90, while the Tay Road Bridge makes journeys south through Fife simple. Dundee Airport is only a short drive away, and the train station offers regular services to Aberdeen, Glasgow and Edinburgh.
Everyday essentials close by
You?ll find a wide range of shops, supermarkets and leisure facilities within a short distance of the development, as well as Dundee city centre, less than three miles away. And with schools, healthcare and entertainment all nearby, it?s the perfect place to put down roots.
This development offers the following schemes:
- Part Exchange your Home
- Home Change
- Own New Rate Reducer Scheme
Schemes are available on selected plots only, subject to status, terms and conditions apply. Contact the development for latest information.
Your mortgage
Notes
Staying secure when looking for property
Ensure you're up to date with our latest advice on how to avoid fraud or scams when looking for property online.
Visit our security centre to find out moreDisclaimer - Property reference 4_59. The information displayed about this property comprises a property advertisement. Rightmove.co.uk makes no warranty as to the accuracy or completeness of the advertisement or any linked or associated information, and Rightmove has no control over the content. This property advertisement does not constitute property particulars. The information is provided and maintained by Persimmon Homes North Scotland. Please contact the selling agent or developer directly to obtain any information which may be available under the terms of The Energy Performance of Buildings (Certificates and Inspections) (England and Wales) Regulations 2007 or the Home Report if in relation to a residential property in Scotland.
*This is the average speed from the provider with the fastest broadband package available at this postcode. The average speed displayed is based on the download speeds of at least 50% of customers at peak time (8pm to 10pm). Fibre/cable services at the postcode are subject to availability and may differ between properties within a postcode. Speeds can be affected by a range of technical and environmental factors. The speed at the property may be lower than that listed above. You can check the estimated speed and confirm availability to a property prior to purchasing on the broadband provider's website. Providers may increase charges. The information is provided and maintained by Decision Technologies Limited. **This is indicative only and based on a 2-person household with multiple devices and simultaneous usage. Broadband performance is affected by multiple factors including number of occupants and devices, simultaneous usage, router range etc. For more information speak to your broadband provider.
Map data ©OpenStreetMap contributors.






